
|
距離2019年春節只有一個多月的時間,過完年后又會到一年一度的建房旺季,現在大家越來越注重房子的外觀,對于千篇一律的造型有些排斥。家家戶戶都要建房,怎么樣讓自己的房子特立獨行,與眾不同呢?今天給大家介紹5款農村自建房別墅圖紙,外表典雅大氣,內部布局合理舒適,最主要的建造工藝還簡單方便。 戶型一
深色瓷磚和淺色真石漆的搭配,美觀又耐臟,經濟實用還無需花費太多精力圍護,這可以稱得上是外裝的最佳方案,主體造價25萬以內。
一些農村地區交通還不是非常方便,代步車出行成為必要,車庫設置讓農村生活更加現代化。二層設計了露臺、起居室、娛樂室,大大豐富了農村生活。 戶型二
這一款南北地區都可建造,外形簡單大方,經典秀美。宅基地東西長11.1米,南北寬10.8米,占地面積116.38平方米,完全符合國家宅基地面積規定。造價在23——26萬之間,也是多數家庭可以承擔的起的。
一層布局動靜分區,西邊為主要活動區域,右邊為休息空間,公衛設計在兩個臥室中間。二層設計4間臥室,滿足日常居住需求。 戶型三
外觀比較有特色的歐式風別墅,經典的弧形落地采光窗增添了整體建筑的時尚感,二樓的大露臺營造整個別墅的層次感。
入戶有一個門斗設計,下雨天仍然可以保護室內潔凈,入戶之后可以看到寬敞的餐廳。二層不僅有寬敞的露臺,還設計了小陽臺和小客廳,讓日常起居更加方便。 戶型四
不同于鄉村歐式的反復,重視建筑以磚和石為主要原料,外部造型簡潔大方,更加注重古韻古色。白墻青瓦,透露著大氣古樸,在綠意盈盈的山水之間,成就一幅最為動人的山水畫。
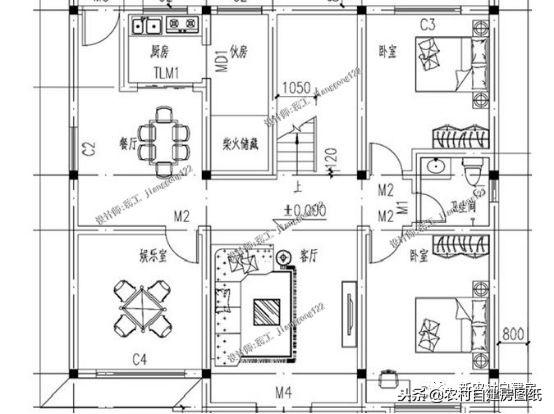
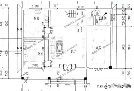
一層除了基本的功能房之外,兩點在于廚房的設計,分別單獨設計了伙房和柴火儲藏間,爸媽看了一定會贊不絕口。二層設計了儲藏室,客廳帶陽臺,采光通風更加通透。 戶型五
這是一款大開間小進深的三層別墅,開間11.4米,進深7.2米,占地面積86.6平方米,建筑面積255.4平方米,主題造價25—28萬之間。家里宅基地小,又想要建一棟比較氣派的別墅,這一棟三層別墅絕對是上上之選。
雖然每一層面積有限,但是將空間利用到了最大化,一層除了客廳、餐廳、廚房之外,設計了3間臥室。二層同樣設計三間臥室,有一個大客廳,客廳連接陽臺,休閑娛樂兩不誤。如果不喜歡倉庫的設計,可以改成儲物間、衣帽間等等。三層布局和二層基本差不多,只是將客廳的面積分了一半給陽臺,寬闊的陽臺平時可以曬太陽、打牌,BBQ都沒有問題。這樣的三層別墅三代人獨立居住,互不打擾完全沒有問題。 看完這5套別墅,是不是發現農村建房其實沒有想象的那么貴,將錢花在刀刃上,建廚最合適最好看的房子,才是農村自建房的真諦所在。 圖紙之家-專注農村別墅/自建房設計18年,集合國內200余位經驗豐富的設計師,被評為口碑最好的農村建筑設計公司! |

240平農村二層自建別墅設計圖紙,帶你體驗家的溫馨
占地:240平方米
最新三層農村別墅設計圖紙,推薦農村自建
占地:106平方米
多臥室復式二層別墅房屋設計圖,含外觀效果圖
占地:175平方米
100平方三層樓房設計圖及圖片,戶型設計簡約時尚
占地:100平方米
2026新款二層別墅房屋設計圖,帶外觀圖片
占地:138平方米
帶庭院的農村一層別墅圖紙設計,外觀時尚好看
占地:多戶型可選
簡約大氣四開間二層自建房設計圖,16x10米,經典耐看高顏值
占地:160平方米
最好看大氣的豪華三層樓房設計圖,客廳中空,旋轉樓梯
占地:340平方米
農村最漂亮平頂三層別墅設計圖,10.5乘11.5米
占地:119.35平方米
農村新中式別墅設計圖及效果圖,造價25萬左右
占地:95平方米
歐式復式型三層別墅施工設計圖紙及效果圖大全
占地:164平方米
160平方米新農村三層半別墅設計圖11X16米65萬以內
占地:160平方米
精致時尚一層雙拼別墅設計圖,造價實惠,起居互不打擾
占地:369.54平方米
新農村兄弟合建三層雙拼房屋設計方案圖,開間18米有全套圖紙
占地:237.21平方米
農村二層L戶型農村別墅!設計圖簡約時尚又大氣,住著超舒適
占地:170.55平方米
不帶廚房餐廳的二層別墅設計圖,農村建房很多人都這樣做
占地:124平方米左右
新款中式二層四合院住宅設計圖,農村自建帶露臺設計
占地:223平方米
250平方米農村三層別墅設計圖紙及效果圖大全,18.3x15米
占地:247平方米
120平農村三層自建房屋設計圖,旋轉樓梯復式別墅戶型方案
占地:119.23平方米
農村四間一層房屋設計圖,160平方米,用來養老正合適!
占地:160平方米
推薦:10套新農村自建房設計圖,2026年最新設計
閱讀次數:4825737次
100套鄉村別墅圖片大全,2026年最新設計
閱讀次數:2492203次
6款農村蓋一層平房的設計圖,10萬元就能建起來
閱讀次數:1852637次
這11個一層農村自建房別墅火爆了朋友圈!我最喜歡戶型十!你呢
閱讀次數:750268次
農村6萬元建一層小別墅圖,你敢相信嗎
閱讀次數:567686次
農村5萬塊就能自建房,6套普通房子設計圖分享,你沒看錯!
閱讀次數:419410次
8套農村漂亮三間平房圖片,非常適合在農村修建!
閱讀次數:411197次
農村自建房化糞池怎么做?附方案及施工過程
閱讀次數:391783次
農村一層三間平房設計圖,告別土氣養老房,讓人忍不住點贊
閱讀次數:350581次
新農村二層樓房圖片造價12萬,挑一套回家建房吧!
閱讀次數:349126次
