
|
現在回農村蓋房已經成為了一個趨勢,在外拼搏了數年,掙夠了錢,就回家蓋一棟實用的別墅,一家人幸福的生活在一起,這才是人生最終的追求,但是因為現在蓋房的人太多,一眼望去,都是一座座精致小別墅,小樓房,有些小伙伴們可能就不知道怎么下手,不想蓋跟別人一樣的房子,但自己又沒有圖紙,也不知道房屋內部結構怎么設計,不經感嘆道,好房難求!今天給大家推薦一款三層帶車庫,帶屋頂花園,樓中樓復式別墅,大小適中,很適合農村自建。
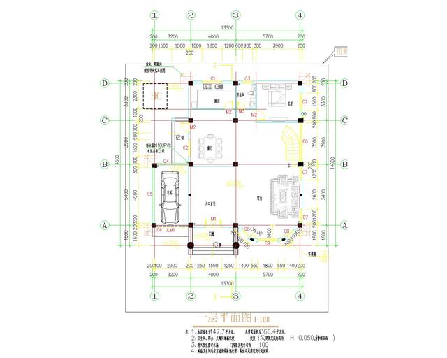
本戶型為歐式三層樓中樓別墅設計圖紙,帶車庫,帶屋頂花園,外觀效果圖時尚、精致,施工時可以建車庫,可以不建車庫,建車庫占地130平左右,不建車庫占地120平左右,大小適中,很適合農村自建。 占地面積:12.2m*13.5m(尺寸含左側獨立車庫),占地130平方米左右; 建筑高度:11.09米(不含屋頂)坡屋頂;
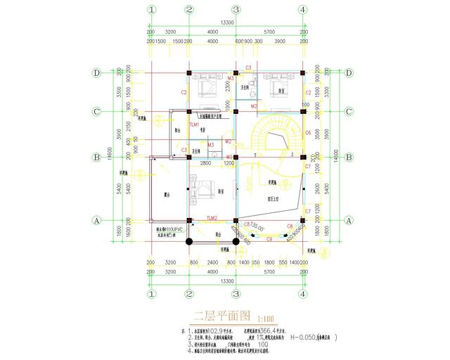
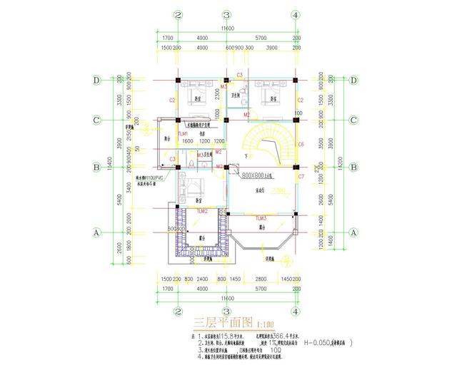
設計功能: 首層:門廳、客廳、臥室、廚房、餐廳、衛生間、車庫; 二層:主臥(帶衛生間)、臥室x2(小臥室可以做書房)、衛生間、露臺; 三層:休閑廳、臥室、露臺。
圖紙之家-專注農村別墅/自建房設計18年,集合國內200余位經驗豐富的設計師,被評為口碑最好的農村建筑設計公司! |

二層半別墅設計圖,占地150平米,帶露臺,地中海風格,內部布局
占地:150平方米
農村30萬別墅款式三層設計圖紙,帶地下儲藏室,挑空客廳
占地:110平方米
最新高端四層別墅外觀效果圖及全套設計圖,真土豪就這樣建
占地:174.08平方米
農村二間二層房子設計方案圖,造型小巧精致,10米乘12米
占地:110平方米
架空層設計的農村自建房別墅設計圖,既做車庫又做儲物間,太實
占地:230.62平方米
175平大客廳三層別墅房屋設計圖,含外觀造型現代,美觀
占地:175平方米
新農村自建房設計圖及效果圖大全,新農村住宅精選
占地:112平方米
農村三層自建房子圖紙設計方案,開間11米左右
占地:151.96平方米
帶地下室的一層別墅設計圖,農村自建很實用
占地:192平方米
農村13萬元二層小樓圖,簡單易建,造價低
占地:110平方米
面寬14.5米三層獨棟別墅設計圖,經典設計,大氣之作
占地:123.85平方米
農村自建房三間設計圖,花錢少效果好12米乘9米,經濟適用性價比
占地:108.9平方米
簡單實用農村自建房五間一層別墅設計圖,多款戶型
占地:多戶型可選
130平方米農村兩層別墅圖紙及效果圖12X11米
占地:133平方米
一層平屋頂自建房圖,簡單而舒適,既省錢不說還不愁沒地曬糧食
占地:106平方米
13x13米簡單二層帶閣樓最新別墅設計圖,精致美觀
占地:158.5平方米
中式二層對稱別墅設計圖,帶地下室設計,整體造價經濟
占地:171.6平方米
中國最好看的二層農村房子圖片及施工圖紙,20萬現代風格
占地:130平方米
占地180平豪華三層農村別墅自建房設計圖,歐式與現代相融合
占地:183.706平方米
造價33萬左右超漂亮的三層別墅圖紙設計圖,旋轉樓梯戶型設計
占地:121.59平方米
推薦:10套新農村自建房設計圖,2026年最新設計
閱讀次數:4825737次
100套鄉村別墅圖片大全,2026年最新設計
閱讀次數:2492203次
6款農村蓋一層平房的設計圖,10萬元就能建起來
閱讀次數:1852637次
這11個一層農村自建房別墅火爆了朋友圈!我最喜歡戶型十!你呢
閱讀次數:750268次
農村6萬元建一層小別墅圖,你敢相信嗎
閱讀次數:567686次
農村5萬塊就能自建房,6套普通房子設計圖分享,你沒看錯!
閱讀次數:419410次
8套農村漂亮三間平房圖片,非常適合在農村修建!
閱讀次數:411197次
農村自建房化糞池怎么做?附方案及施工過程
閱讀次數:391783次
農村一層三間平房設計圖,告別土氣養老房,讓人忍不住點贊
閱讀次數:350581次
新農村二層樓房圖片造價12萬,挑一套回家建房吧!
閱讀次數:349126次
