
|
60萬現代風格四層20×10米4廳10臥,茶室+挑空客廳+套房 這款四層自建別墅設計圖屬于現代風格,外觀采用明亮的白色為主色,線條分明清晰,采用大面積窗戶設計,室內光線充足,主體造價60萬,共設有4廳10臥,帶有茶室、挑空客廳、套房等特色功能,外立面設計不復雜,施工簡單,適合農村建房。
效果圖 層數:四層 開間:20米 進深:10米 首層占地面積:179.81平方米 總建筑面積:611.95平方米 結構形式:框架結構 主體造價:60萬 功能設計
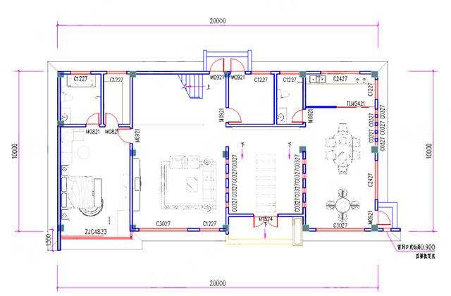
一層平面圖 一層:客廳、玄關、廚房、餐廳、茶室、臥室、衣柜、儲藏室、衛生間×2
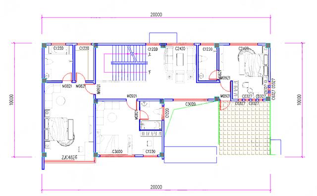
二層平面圖 二層:臥室×3、家庭廳、衛生間×3、衣柜、露臺
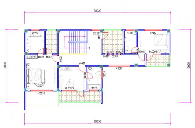
三層平面圖 三層:臥室×3、家庭廳、衛生間×3、衣柜
四層平面圖 四層:臥室×3、家庭廳、衛生間×3、露臺×4 圖紙之家-專注農村別墅/自建房設計18年,集合國內200余位經驗豐富的設計師,被評為口碑最好的農村建筑設計公司! |

農村新戶型房子設計圖二層,占地120平米,布局實用
占地:120.29平方米
農村中式二層4開間別墅圖紙設計方案圖,帶車庫戶型
占地:198平方米
120平方房子設計圖,農村120平建房設計圖推薦
占地:122平方米
農村三層歐式別墅豪宅戶型圖設計方案,復式中空客廳+旋轉樓梯
占地:134.84平方米
農村自建三間三層樓房設計圖,帶露臺,經典實用
占地:135平方米
新農村140平米樓房圖四層獨棟別墅設計圖,簡歐外觀風格設計
占地:141平方米
現代四合院別墅設計圖紙,二層戶型,外觀時尚漂亮
占地:287.97平方米
新徽派農村三層小別墅設計圖,白墻黛瓦中式風,12米乘11米
占地:115.46平方米
大氣農村三層歐式雙拼別墅全套施工圖紙,帶堂屋設計,外觀圖片
占地:196.056平方米
簡單的二層樓房圖片及設計方案,自建樓房必看
占地:140平方米
歐式小別墅設計圖紙帶效果圖,二層歐式小別墅設計方案展示
占地:166平方米
實用型二層別墅設計圖,簡單大方最耐看,16.5米乘11米
占地:150.94平方米
時尚四開間二層農村別墅,經典大氣,引領建房新潮流!
占地:159.6平方米
居家養老一層別墅設計圖,面寬20米,農村建一棟不吃虧
占地:259.7平方米
農村二層半新中式小別墅設計圖(帶閣樓層),二層半自建房戶型
占地:144平方米
造價便宜的二層雙拼別墅設計圖,造型簡約大氣,進深10米
占地:SP23059
新中式一層別墅設計圖紙,農村自建平房戶型方案圖
占地:183.7平方
農村自建四層百萬豪宅別墅設計圖,客廳中空
占地:170平方米
60多平三層現代風格別墅設計圖,小戶型平屋頂
占地:66.4平方米
2026新款新式農村50萬三層別墅圖片,帶地下室,美觀大氣
占地:130平方米左右
推薦:10套新農村自建房設計圖,2026年最新設計
閱讀次數:4825737次
100套鄉村別墅圖片大全,2026年最新設計
閱讀次數:2492203次
6款農村蓋一層平房的設計圖,10萬元就能建起來
閱讀次數:1852637次
這11個一層農村自建房別墅火爆了朋友圈!我最喜歡戶型十!你呢
閱讀次數:750268次
農村6萬元建一層小別墅圖,你敢相信嗎
閱讀次數:567686次
農村5萬塊就能自建房,6套普通房子設計圖分享,你沒看錯!
閱讀次數:419410次
8套農村漂亮三間平房圖片,非常適合在農村修建!
閱讀次數:411197次
農村自建房化糞池怎么做?附方案及施工過程
閱讀次數:391783次
農村一層三間平房設計圖,告別土氣養老房,讓人忍不住點贊
閱讀次數:350581次
新農村二層樓房圖片造價12萬,挑一套回家建房吧!
閱讀次數:349126次
