
|
農村自建房是百年大計,隨著時代的發展,建房要求也有了新的提高,不僅要依托傳統,還要兼顧科學合理。主要看三個方面,一個是建筑結構是不是安全,比如抗震、使用壽命等;另一個是設計是否新穎,緊跟時代審美觀;最后一個是性能指標,居住是否舒適、是否節能環保等。這些條件看似苛刻,但用海容模塊建房都能滿足,整體澆筑,結構性好,防潮抗震,使用壽命長;雙層保溫,冬暖夏涼;新型建材,節能環保;并且房型設計新穎實用,自建房還是首選海容模塊。
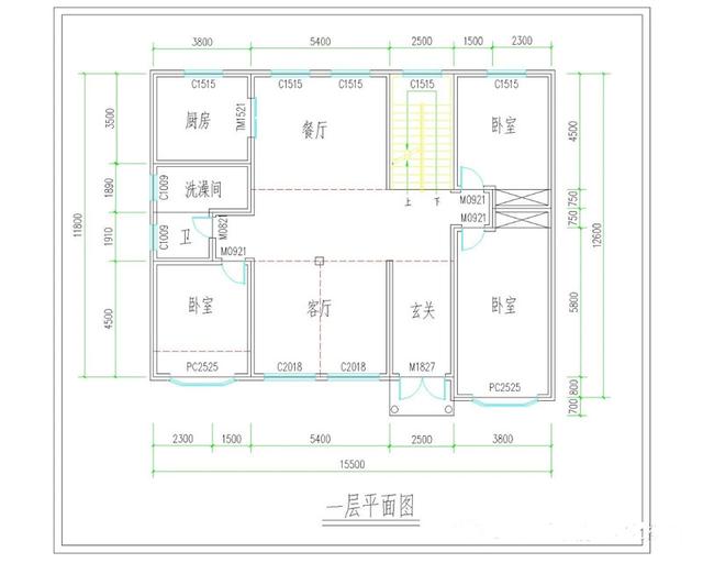
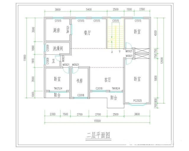
房屋概況 房屋尺寸:15.5m×12.6m 建筑面積:390.6㎡ 毛坯房成型預計費用:33萬左右(包括海容模塊、鋼筋、混凝土、砂漿、網格布以及人工); 其中海容模塊墻體預計費用:15萬
一層布局:客廳、廚房、餐廳、衛生間、洗澡間、臥室
二層布局:客廳、廚房、餐廳、衛生間、洗澡間、臥室、書房 圖紙之家-專注農村別墅/自建房設計18年,集合國內200余位經驗豐富的設計師,被評為口碑最好的農村建筑設計公司! |

95平經濟適用三層農村小別墅設計圖,二開間推薦爆款戶型
占地:95.31平方米
農村二層樓房設計圖紙,含全套設計方案(施工圖+效果圖)
占地:98平方米
160平方米二層小別墅設計圖紙及效果圖大全,12X13米
占地:162平方米
農村一層四間平房設計圖方案,含外觀圖片,預算10萬
占地:190平方米
農村高端中式三層雙拼全套房屋施工設計圖,效果圖很大氣
占地:340平方米
占地90平新中式經濟二層小別墅自建房設計圖,僅15萬
占地:89.3平方米
平屋頂四間一層農村自建房設計圖紙,經濟時尚
占地:144平方米
給爸媽建養老房?100 平人字坡一層房太合適!簡約低調還實用
占地:102.6平方米
140平四層復式別墅房屋設計圖,帶外觀效果圖
占地:140平方米
歐式兩層別墅設計圖及歐式效果圖,造價25萬左右
占地:150平方米
時尚創意型二層小別墅設計圖,占地面積110平方米,外觀清新典雅
占地:110平方米
好看實用農村2開間二層別墅設計圖,主體19萬
占地:117.36平方米
一層雙拼別墅獨立入戶+共用墻,兄弟合建,施工隊直呼太省料
占地:269.43平方米
經典三層雙拼房屋設計圖,帶效果圖,戶型好,單戶面積120
占地:240平方米
帶土灶房一層四開間別墅設計方案,溫馨舒適的雅舍
占地:164.34平方米
帶閣樓的一層半平房設計圖,比樓房還舒適,12米×13米
占地:170.1平方米
新徽派農村三層小別墅設計圖,白墻黛瓦中式風,12米乘11米
占地:115.46平方米
農村一層房屋設計圖,自建一層房子圖紙推薦
占地:200平方米
新農村一層平屋頂簡單自建房別墅設計圖紙,全套設計
占地:130平方米
210平左右三層(兩層半)雙拼新農村別墅設計圖紙及外觀效果圖
占地:206.712平方米
推薦:10套新農村自建房設計圖,2026年最新設計
閱讀次數:4825737次
100套鄉村別墅圖片大全,2026年最新設計
閱讀次數:2492203次
6款農村蓋一層平房的設計圖,10萬元就能建起來
閱讀次數:1852637次
這11個一層農村自建房別墅火爆了朋友圈!我最喜歡戶型十!你呢
閱讀次數:750268次
農村6萬元建一層小別墅圖,你敢相信嗎
閱讀次數:567686次
農村5萬塊就能自建房,6套普通房子設計圖分享,你沒看錯!
閱讀次數:419410次
8套農村漂亮三間平房圖片,非常適合在農村修建!
閱讀次數:411197次
農村自建房化糞池怎么做?附方案及施工過程
閱讀次數:391783次
農村一層三間平房設計圖,告別土氣養老房,讓人忍不住點贊
閱讀次數:350581次
新農村二層樓房圖片造價12萬,挑一套回家建房吧!
閱讀次數:349126次
