
|
兩款不僅外觀很靚麗,布局也很實用的三層農村別墅戶型,第一款偏現代式的外觀看起來就很洋氣逼人,跟城里的別墅沒有什么差別了;第二款別墅外觀氣派的很,很有歐式范兒,反正兩棟隨便建了其中一款,都是不會后悔的選擇。 兩款別墅面寬均為11.4米: 戶型一
背面:外墻所用到的材料和顏色都充滿著洋氣的味道。
屋頂的色彩運用也很到位。
平面布局圖:南北通透的好戶型,室內的私密性也做的很好,空間利用率高而合理,生活便利性好。
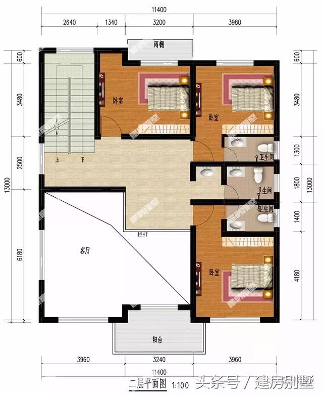
戶型二
一款簡歐式風格的三層別墅,外墻所用到的裝飾構件,與整棟建筑的風格,配合的天衣無縫。
屋頂:
平面布局圖:同樣南北通透的戶型,而且更便于多余油煙的排放,客廳空間大,氣派敞亮好待客。
兩款戶型看了都好喜歡,如果要宅基地和足夠的資金的話,真想都建一棟,好戶型就是這樣讓人難以抉擇。 圖紙之家-專注農村別墅/自建房設計18年,集合國內200余位經驗豐富的設計師,被評為口碑最好的農村建筑設計公司! |

三層現代別墅設計圖紙,全套私人別墅圖紙(含外觀效果圖)
占地:170.38平方米
2026新款四層樓房設計圖,占地120平方米左右,客廳中空
占地:120平方米
一層農村三合院別墅設計方案圖,秀氣優美,大氣又實用
占地:191.18平方米
占地110平米兩層半農村房子設計圖,簡單實用
占地:110.25平方米
155平方米自建二層CAD房屋設計圖紙及效果圖,13X12米
占地:156平方米
現代風格三層別墅設計圖紙和效果圖,農村自建精選
占地:129平方米
新款三層豪華大氣歐式別墅設計圖,3種戶型設計方案
占地:125平方米左右
農村一層自建房子設計圖紙及效果圖,戶型方正
占地:多戶型可選
80平方米農村四層房屋設計圖紙及效果圖
占地:80平方米
豪華大氣農村三層別墅圖紙,帶車庫、露臺,占地200平方米左右
占地:207平方米
全網都在抄的二層別墅!爆款12米面寬設計戶型太實用
占地:139.51平方米
三層獨棟別墅設計圖紙帶效果圖,全套施工方案(建筑圖+結構圖
占地:144平方米
二層美式自建別墅設計圖,全套施工圖+外觀效果圖
占地:145平方米
兩層農村自建二層樓設計圖紙,面寬12米左右
占地:131.2平方米
新農村兩層帶露臺自建房設計圖,造價30萬內
占地:170平方米
超漂亮的二層別墅設計圖,外觀對稱設計,建好很大氣
占地:255平方米
20多萬的造價一層三合院農村自建房效果圖
占地:225.048平方米
110平方米新農村三層別墅設計圖,含外觀效果圖
占地:109平方米
50萬以內的歐式三層房屋別墅施工設計圖紙及效果圖
占地:169平方米
造價30萬的三層簡歐新農村別墅設計施工圖紙及效果圖
占地:133平方米
推薦:10套新農村自建房設計圖,2026年最新設計
閱讀次數:4825737次
100套鄉村別墅圖片大全,2026年最新設計
閱讀次數:2492203次
6款農村蓋一層平房的設計圖,10萬元就能建起來
閱讀次數:1852637次
這11個一層農村自建房別墅火爆了朋友圈!我最喜歡戶型十!你呢
閱讀次數:750268次
農村6萬元建一層小別墅圖,你敢相信嗎
閱讀次數:567686次
農村5萬塊就能自建房,6套普通房子設計圖分享,你沒看錯!
閱讀次數:419410次
8套農村漂亮三間平房圖片,非常適合在農村修建!
閱讀次數:411197次
農村自建房化糞池怎么做?附方案及施工過程
閱讀次數:391783次
農村一層三間平房設計圖,告別土氣養老房,讓人忍不住點贊
閱讀次數:350581次
新農村二層樓房圖片造價12萬,挑一套回家建房吧!
閱讀次數:349126次
