
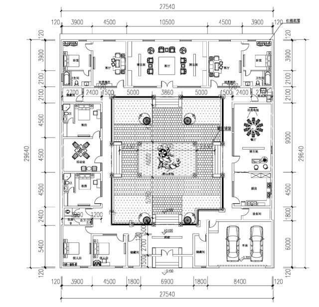
項目名稱:房山四合院項目 項目地點:北京房山 項目基地面積:816.2m² 項目建筑面積:595.9m² 建筑結構:磚混結構(現澆坡屋頂) 區域設計機構:殊舍建筑設計有限公司 項目負責人:何紅才 項目建筑師:楊洋、蓋小勇、錢帥、管世鵬、張瑜 項目概況 保留傳統四合院的布局與形式 滿足現代生活的居住起居需求 改變傳統四合院衛生間的布置方式 保障其六間臥室的需求 兩間需要自帶起居室 45m²的餐廳和60㎡的客廳 兩個停車位的車庫和活動室 基地情況 基地平整,較為方正,比較適合做四合院,但是傳統四合院的倒座,外院卻因為場地限制并不能實現。
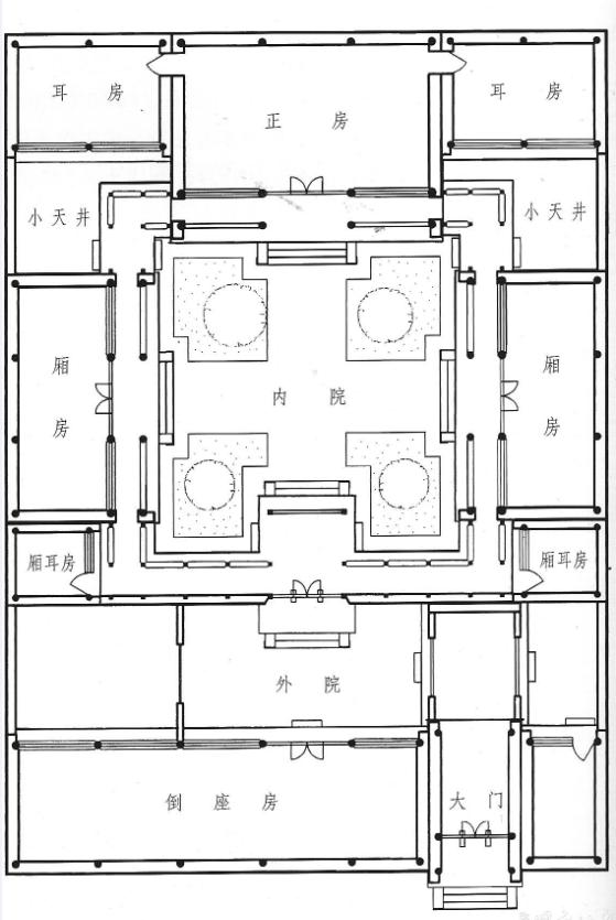
易蓋房圖紙:新型四合院,陽光走廊讓四合院冬暖夏涼 △傳統四合院布局圖
易蓋房圖紙:新型四合院,陽光走廊讓四合院冬暖夏涼 效果展示 對稱的布局,彰顯大氣,雙車位車庫位于正立面東側。
易蓋房圖紙:新型四合院,陽光走廊讓四合院冬暖夏涼 入口處的石獅與花窗彰顯古香古色。
易蓋房圖紙:新型四合院,陽光走廊讓四合院冬暖夏涼 木質框架的陽光房環繞院落,院落中心的假山跌水別有一番景致。
易蓋房圖紙:新型四合院,陽光走廊讓四合院冬暖夏涼 院落內青磚鋪地古樸典雅,院落中栽植的樹木為院落注入了滿滿的生機
易蓋房圖紙:新型四合院,陽光走廊讓四合院冬暖夏涼 傳統四合院的抄手游廊被陽光房代替,起到了門廊保溫隔熱的效果,陽光爛漫時坐在廊內讀一本書別提有多愜意了。
易蓋房圖紙:新型四合院,陽光走廊讓四合院冬暖夏涼 圖紙中心 保留了四合院正房、廂房的使用功能性要求,設置了合理的院落尺度。
易蓋房圖紙:新型四合院,陽光走廊讓四合院冬暖夏涼 △總平面圖
易蓋房圖紙:新型四合院,陽光走廊讓四合院冬暖夏涼 △平面戶型圖
易蓋房圖紙:新型四合院,陽光走廊讓四合院冬暖夏涼 △東立面圖
易蓋房圖紙:新型四合院,陽光走廊讓四合院冬暖夏涼 △西立面圖
易蓋房圖紙:新型四合院,陽光走廊讓四合院冬暖夏涼 △南立面圖
易蓋房圖紙:新型四合院,陽光走廊讓四合院冬暖夏涼 圖紙之家-專注農村別墅/自建房設計18年,集合國內200余位經驗豐富的設計師,被評為口碑最好的農村建筑設計公司! |

14米×10米農村二層小別墅自建房設計圖,外觀設計時尚美觀
占地:125平方米
一層帶閣樓農村別墅設計圖,多得一層可變空間,太值了!
占地:165.89平方米
一層農村必蓋戶型設計方案,養老自住兩相宜,經濟實惠又耐用!
占地:150.36平方米
小面寬大進深三層別墅圖紙設計,戶型非常實用經典
占地:171.39平方米
110平左右農村復式二層小樓設計圖,外觀非常受歡迎
占地:112平方米
150平米一層農村別墅設計圖,養老自住都很不錯,關鍵是造價也很
占地:156平方米
農村最好看兩層小樓圖及全套CAD施工圖紙,新中式風格,簡潔大氣
占地:150平方米
復式別墅農村四層霸氣豪宅設計圖紙,建好你就是村里第一
占地:136.356平方米
帶車庫二層農村豪華別墅設計圖,主體25萬左右
占地:170平方米左右
農村四間一層房屋設計圖,160平方米,用來養老正合適!
占地:160平方米
歐式二層別墅cad施工圖紙,含效果圖,歐式別墅設計圖紙展示
占地:189平方米
中國最美的四合院別墅設計圖方案,復式挑空客廳戶型
占地:343.57平方米
簡約L型一層平房自建房設計圖,經濟實用
占地:145.283平方米
建一棟就成了村里的門面擔當!三層歐式別墅,左右對稱太氣派
占地:173.67平方米
新農村二層雙拼小別墅設計圖,開間22米的現代房屋圖紙設計
占地:230平方米
180平方現代風三層別墅設計圖,經典大氣,百看不厭
占地:180.48平方米
11X10米三層別墅農村自建房設計圖,復式挑空客廳
占地:119.08平方米
140平方米兩層別墅CAD設計圖紙及效果圖,13x11米
占地:138平方米
70平農村小戶型二層別墅設計圖,小宅基地的福音
占地:70平方米
80平方米農村四層房屋設計圖紙及效果圖
占地:80平方米
推薦:10套新農村自建房設計圖,2026年最新設計
閱讀次數:4825737次
100套鄉村別墅圖片大全,2026年最新設計
閱讀次數:2492203次
6款農村蓋一層平房的設計圖,10萬元就能建起來
閱讀次數:1852637次
這11個一層農村自建房別墅火爆了朋友圈!我最喜歡戶型十!你呢
閱讀次數:750268次
農村6萬元建一層小別墅圖,你敢相信嗎
閱讀次數:567686次
農村5萬塊就能自建房,6套普通房子設計圖分享,你沒看錯!
閱讀次數:419410次
8套農村漂亮三間平房圖片,非常適合在農村修建!
閱讀次數:411197次
農村自建房化糞池怎么做?附方案及施工過程
閱讀次數:391783次
農村一層三間平房設計圖,告別土氣養老房,讓人忍不住點贊
閱讀次數:350581次
新農村二層樓房圖片造價12萬,挑一套回家建房吧!
閱讀次數:349126次
