
|
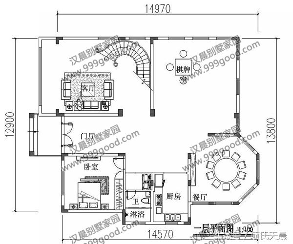
想要蓋一套滿意的自建房別墅,往往會受到很多限制,例如宅基地大小、政策、經濟條件、習俗等因素影響著。那房屋進深只想蓋13米,怎么蓋別墅呢?別急,今天小編就給大家推薦了九套別墅設計圖,都有全套施工圖,拿到后就可以施工哦。 第一套:
第二套:
第三套:
第四套:
第五套:
第六套:
第七套:
第八套:
第九套:
有沒有讓你心動的別墅設計圖呢? 圖紙之家-專注農村別墅/自建房設計18年,集合國內200余位經驗豐富的設計師,被評為口碑最好的農村建筑設計公司! |

最新高端四層別墅外觀效果圖及全套設計圖,真土豪就這樣建
占地:174.08平方米
農村實用三層樓房外觀圖片+全套施工設計圖
占地:106平方米
17X12米三層雙拼別墅自建房設計圖,歐式風格,戶型方正
占地:190平方米
獨棟兩層四開間房子施工設計圖紙及效果圖片,大氣時尚
占地:170平方米
160平方米二層平屋頂房屋設計圖紙及效果圖17x11米
占地:164平方米
超大氣的農村一層雙拼自建別墅設計方案,絕對讓人羨慕的“平房
占地:424平方米
120平米左右農村房屋設計圖占地面積適宜,外觀舒適大氣
占地:120平方米
占地110平米兩層半農村房子設計圖,簡單實用
占地:110.25平方米
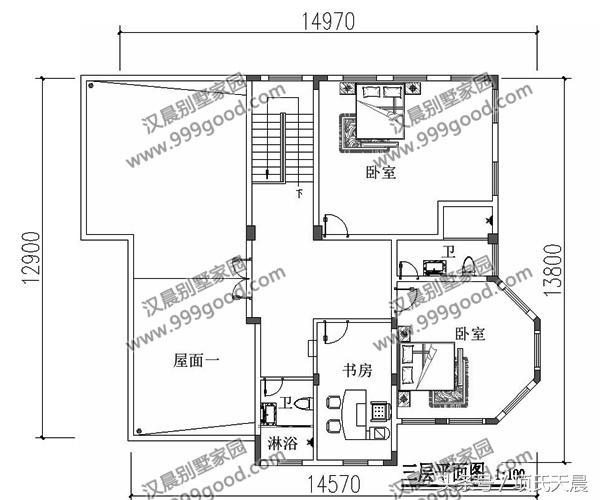
帶地下室的農村三層雙拼別墅設計圖,復式戶型,面寬23米
占地:261.6平方米左右
歐式漂亮農村三層自建房設計圖紙,兩個戶型方案可選
占地:多戶型可選
一層農村房子設計圖,含外觀效果圖,自建推薦戶型
占地:200平方米
造型新穎漂亮的農村二層現代風別墅設計圖,老少皆宜的外觀
占地:144.54平方米
辦公居住共用的一層別墅設計圖,簡約優雅,精致生活新體驗
占地:265.3平方米
一層共用,二層兄弟雙拼的二層別墅設計圖
占地:182.48平方米
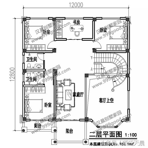
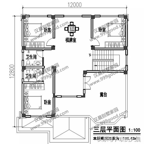
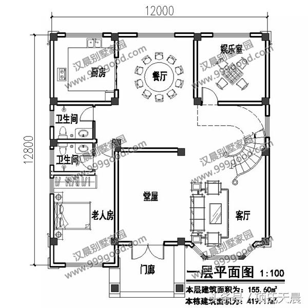
農村三間兩層樓房設計圖,背面不開窗,氣勢上就勝人一籌
占地:153.7平方米
120平方米農村四層別墅施工設計圖紙及效果圖
占地:120平方米
140平二層帶閣樓別墅設計方案圖,外觀圖片色彩明快
占地:140平方米
預算30萬三層樓房設計圖含效果圖,戶型經典
占地:125平方米
帶車庫三間復式三層樓房設計圖,外觀精致、大方
占地:150平方米
新中式三層樓房設計圖,外觀精致布局也是相當的樸實
占地:140平方米
推薦:10套新農村自建房設計圖,2026年最新設計
閱讀次數:4825737次
100套鄉村別墅圖片大全,2026年最新設計
閱讀次數:2492203次
6款農村蓋一層平房的設計圖,10萬元就能建起來
閱讀次數:1852637次
這11個一層農村自建房別墅火爆了朋友圈!我最喜歡戶型十!你呢
閱讀次數:750268次
農村6萬元建一層小別墅圖,你敢相信嗎
閱讀次數:567686次
農村5萬塊就能自建房,6套普通房子設計圖分享,你沒看錯!
閱讀次數:419410次
8套農村漂亮三間平房圖片,非常適合在農村修建!
閱讀次數:411197次
農村自建房化糞池怎么做?附方案及施工過程
閱讀次數:391783次
農村一層三間平房設計圖,告別土氣養老房,讓人忍不住點贊
閱讀次數:350581次
新農村二層樓房圖片造價12萬,挑一套回家建房吧!
閱讀次數:349126次
