
|
打工或經商掙錢再多在城市買房壓力還是比較大的,城市一套房子都在百萬左右,即使城市各種生活設施再好,高昂的價格讓農村人望而止步,辛辛苦苦十幾年掙得錢一下子花出去買房子還真不敢下手。 掙錢了回農村蓋房生活也是不錯的,按照自己的意愿蓋最舒適的房子,還有大院子,生活自由悠閑,所需花費也是自己能夠承擔的,并不會給家庭生活帶來負擔。 今天給大家帶來的這款農村建房戶型,外觀經典實用,內部實在舒適。 戶型簡介 層數: 二層 結構形式: 磚混結構 開間:14.4米 進深:11.4米 主體造價:30萬
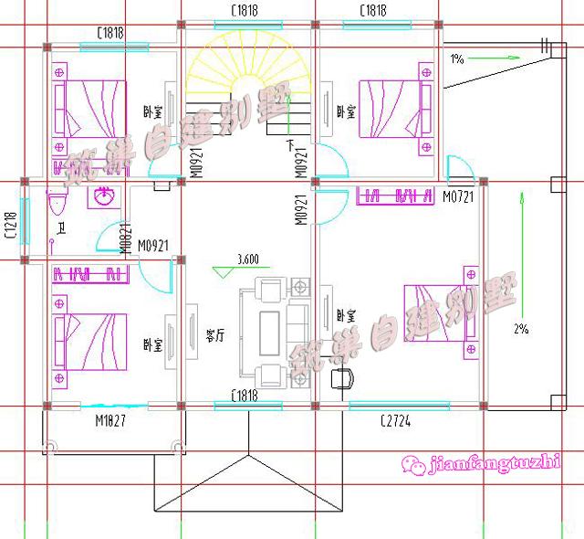
本戶型為經典的農村二層帶露臺樓房設計圖,設計以實用為主,沒有華麗繁雜的裝飾,簡單的亦是經典的,用言簡意賅的設計語言,設計出最為貼合農村剛需的自建住宅戶型! 平面布局圖:
一層平面圖 一 層:門廳、客廳、廚房、餐廳、臥室×2、公衛
二層平面圖 二 層:客廳、臥室(帶陽臺)、臥室(帶露臺)、臥室、臥室、公衛 圖紙之家-專注農村別墅/自建房設計18年,集合國內200余位經驗豐富的設計師,被評為口碑最好的農村建筑設計公司! |

漂亮時尚二層樓房設計圖紙,經濟實用,戶型通透
占地:150平方米
農村一層四間平房設計圖方案,含外觀圖片,預算10萬
占地:190平方米
10套農村經典二層樓房設計圖紙,多戶型,多尺寸,總有一款適合
占地:多種
農村現代新中式三合院設計圖及效果圖片,外觀好看極了
占地:多戶型可選
農村60萬三層別墅新款式設計圖,外觀和實用性并駕齊驅
占地:170平方米
農村兩開間農村別墅設計圖,典雅大氣,完全不輸大戶型
占地:116.26平方米
新農村二層小別墅全套設計圖紙(含外觀效果圖)
占地:85.6平方米
農村20萬元二層小樓圖片及全套圖紙,外型美造價低
占地:多種戶型
120平方米農村漂亮實用的兩層別墅設計圖紙,含外觀圖片
占地:120平方米
歐式二層農村別墅設計圖,140平方米戶型方正的好方案
占地:142.51平方米
美式二層別墅設計圖,含外觀效果圖,造型精美
占地:144平方米
新中式農村50萬三層別墅款式圖,占地面積160平米左右
占地:150平方米
140平二層帶閣樓別墅設計方案圖,外觀圖片色彩明快
占地:140平方米
私人二層農村小樓設計圖,外觀靚麗,富有現代氣息
占地:160平方米
造價25萬農村二層小別墅設計圖,外觀效果圖美觀、精致
占地:165平方米
2026最受歡迎的三層農村小別墅設計圖紙,占地155平方米
占地:155平方米
130平方米歐式實用農村二層樓別墅圖紙帶外觀圖12X13米
占地:132平方米
160平方米二層平屋頂房屋設計圖紙及效果圖17x11米
占地:164平方米
農村4間2層樓房設計圖,戶型方正,四平八穩的二層農村別墅
占地:180平方米
100平方米自建三層半別墅設計圖紙,帶地下車庫
占地:100平方米
推薦:10套新農村自建房設計圖,2026年最新設計
閱讀次數:4825737次
100套鄉村別墅圖片大全,2026年最新設計
閱讀次數:2492203次
6款農村蓋一層平房的設計圖,10萬元就能建起來
閱讀次數:1852637次
這11個一層農村自建房別墅火爆了朋友圈!我最喜歡戶型十!你呢
閱讀次數:750268次
農村6萬元建一層小別墅圖,你敢相信嗎
閱讀次數:567686次
農村5萬塊就能自建房,6套普通房子設計圖分享,你沒看錯!
閱讀次數:419410次
8套農村漂亮三間平房圖片,非常適合在農村修建!
閱讀次數:411197次
農村自建房化糞池怎么做?附方案及施工過程
閱讀次數:391783次
農村一層三間平房設計圖,告別土氣養老房,讓人忍不住點贊
閱讀次數:350581次
新農村二層樓房圖片造價12萬,挑一套回家建房吧!
閱讀次數:349126次
