
|
現在有很多的年輕人涌向城市的時候,一些城市的中老年一代里富裕一些的人們,開始看重農村的空氣質量和優美的環境,慢慢的走向農村自建房別墅養老。因為修建鄉村別墅的費用要比城市里樓盤別墅便宜的多不說,面積也更大,還能根據自己的需要設計。今天分享4套三層的別墅,實現農村也可以自建三層的別墅。 戶型一
效果圖
一層平面圖
二層平面圖
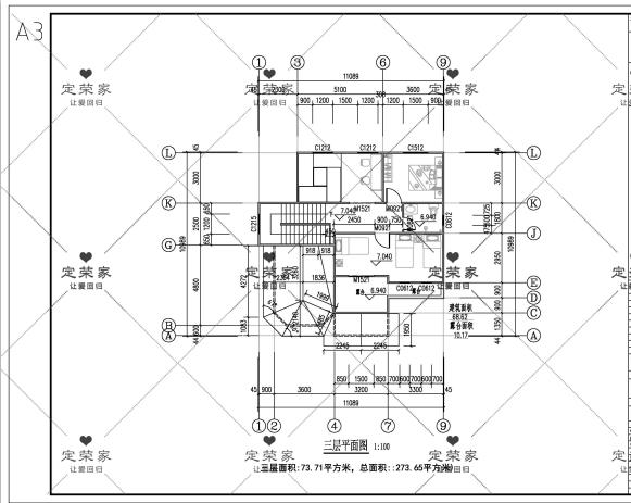
三層平面圖 戶型二
效果圖
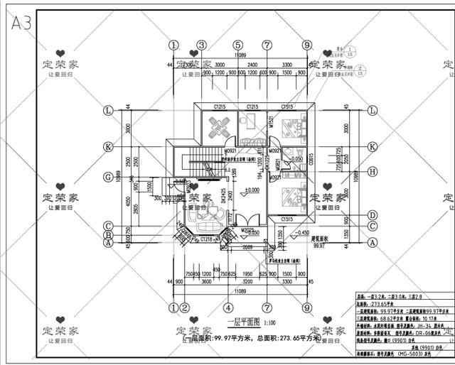
一層平面圖
二層平面圖
三層平面圖 戶型三
效果圖
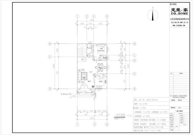
一層平面圖
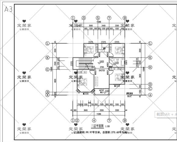
二層平面圖
三層平面圖 戶型四
效果圖
一層平面圖
二層平面圖
三層平面圖 圖紙之家-專注農村別墅/自建房設計18年,集合國內200余位經驗豐富的設計師,被評為口碑最好的農村建筑設計公司! |

農村二層半雙拼別墅設計圖,客廳中空,帶大露臺
占地:270平方米
鄉下二層樓房住宅設計圖紙及效果圖,農村二層小洋樓
占地:140平方米
歐式新農村自建三層建筑施工設計圖紙及效果圖大全
占地:106平方米
三層新中式別墅設計圖,面寬12米經典漂亮
占地:154.93平方米
農村建房的“面子天花板”!新中式簡歐結合三層別墅,進門就被
占地:225.98平方米
經典的農村三層小樓房設計圖,外觀圖片時尚、精致
占地:100平方米
140平米一層農村自建房設計圖,好看不貴簡約耐看
占地:141.12平方米
經濟、不張揚!簡單二層別墅設計圖,農村建房直接抄作業
占地:198.58平方米
帶露臺陽光房二層建房別墅設計圖,13米乘12米,享受農村悠然慢
占地:143.54平方米
新中式小戶型二層別墅效果圖及全套施工設計圖,造價經濟實惠
占地:108平方米
平屋頂二層自建房帶商鋪別墅設計圖紙及外觀圖
占地:225平方米
新農村中式二層樓房設計圖紙及效果圖,125,150,170三個戶型可行
占地:多種戶型
三層現代簡約農村雙拼小別墅圖,好看精致,開間17米
占地:187平方米
2026新款二層別墅房屋設計圖,帶外觀圖片
占地:138平方米
豪華雙拼三層別墅設計圖,在農村建一棟,將是最靚的風景!
占地:186.85平方米
一層帶閣樓的自建別墅設計圖,省錢又實用
占地:166平方米
三層新農村自建小型別墅設計圖及效果圖,三間三層樓房戶型
占地:114平方米
二開間二層別墅設計圖,面寬9米,不可多得的好選擇!
占地:93.24平方米
10萬農村別墅設計圖小戶型,經濟、耐看、實用
占地:多種戶型
農村120平三層樓房設計圖,造型現代,帶屋頂花園
占地:120平方米
推薦:10套新農村自建房設計圖,2026年最新設計
閱讀次數:4825737次
100套鄉村別墅圖片大全,2026年最新設計
閱讀次數:2492203次
6款農村蓋一層平房的設計圖,10萬元就能建起來
閱讀次數:1852637次
這11個一層農村自建房別墅火爆了朋友圈!我最喜歡戶型十!你呢
閱讀次數:750268次
農村6萬元建一層小別墅圖,你敢相信嗎
閱讀次數:567686次
農村5萬塊就能自建房,6套普通房子設計圖分享,你沒看錯!
閱讀次數:419410次
8套農村漂亮三間平房圖片,非常適合在農村修建!
閱讀次數:411197次
農村自建房化糞池怎么做?附方案及施工過程
閱讀次數:391783次
農村一層三間平房設計圖,告別土氣養老房,讓人忍不住點贊
閱讀次數:350581次
新農村二層樓房圖片造價12萬,挑一套回家建房吧!
閱讀次數:349126次
