
|
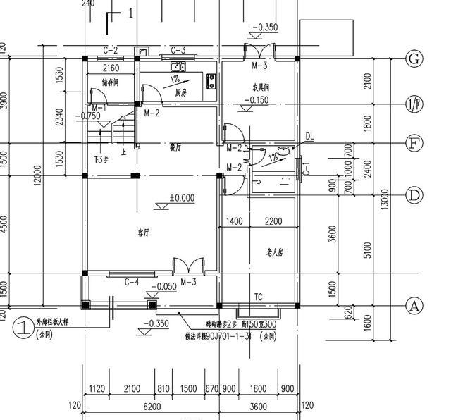
農村風景美如畫,山美水美,白天看青山綠水,晚上賞浩瀚星空,還有純樸的村民們。生活在農村,日出而作,日落而息,雖然比不上城市的生活豐富多彩,但這樣寧靜安穩的鄉村生活,是很多人向往的理想生活狀態。下面小編給大家推薦一款三層10×13米中式農村別墅戶型設計圖,戶型別致雅觀,擁有中式風格的風韻,一起來欣賞。 這套農村別墅戶型設計圖共有三層樓,開間進深9.8米×13米,占地面積117.3㎡,建筑面積309㎡,建筑高度11.5米,采用磚混結構,主體造價大概28萬。
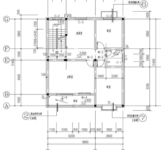
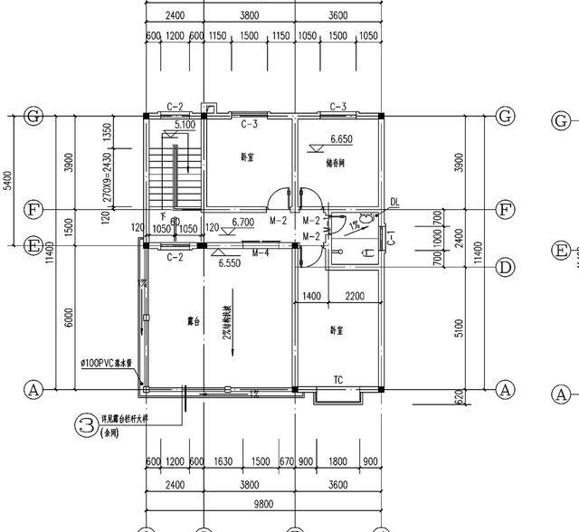
戶型屬于在中式風格設計,布局完美,符合農村的住房習慣和需求,一樓設有農具間,可以收納農具,還有老人房,方便老人居住。二樓主臥室帶陽臺,延伸主臥的空間,為主人提供更寬敞的臥室。整體布局合理實用,空間利用率高。 室內布局展示
一層:客廳、老人房、餐廳、廚房、農具間、儲藏間
二層:主臥室(帶陽臺)、次臥×2、衛生間、起居室
三層:臥室×2、儲藏間、露臺 圖紙之家-專注農村別墅/自建房設計18年,集合國內200余位經驗豐富的設計師,被評為口碑最好的農村建筑設計公司! |

2026新款農村三層雙拼自建房設計圖,占地150平米左右
占地:150平方米
簡單的二層樓房圖片及設計方案,自建樓房必看
占地:140平方米
150平米經典二層中式別墅設計圖 ,現代中式相結合
占地:154平方米左右
15萬左右一層農村自建房設計圖,一家住剛剛好
占地:131.33平方米
275平方米新農村雙拼樓中樓戶型別墅設計圖紙及效果圖21X14米
占地:275平方米
五開間一層農村平房設計圖,200平米大戶型,五間臥房足夠用了
占地:200.7平方米
新中式三層樓房設計圖,外觀精致布局也是相當的樸實
占地:140平方米
經典農村二層小別墅設計圖紙帶露臺(含外觀效果圖)
占地:110平方米
大面積農村一層房子設計圖,戶型實用、合理
占地:190平方米
不帶廚房的一層別墅設計圖,三臥二廳超巴適,室外獨立廚房
占地:120平方米
100平方米自建三層半別墅設計圖紙,帶地下車庫
占地:100平方米
農村自建三間三層樓房設計圖,帶露臺,經典實用
占地:135平方米
三層帶車庫樓中樓建房別墅圖紙,占地130平米左右,戶型室內布局
占地:130平方米
農村二層住宅樓圖紙及效果圖,帶地下室,戶型好
占地:220平方米
新中式農村50萬三層別墅款式圖,占地面積160平米左右
占地:150平方米
鄉下建房一層戶型圖,一層住宅設計圖紙,誰說一層平房不能叫別
占地:200平方米
精致小巧新農村二層別墅設計圖紙,占地90平米左右,造價15萬左
占地:90平方米
農村一層中式三合院別墅設計圖,戶型經典實用,19米乘15米
占地:243.21平方米
125平方米復式三層別墅房屋設計圖,房間多,采光好
占地:125平方米
給爸媽建養老房?100 平人字坡一層房太合適!簡約低調還實用
占地:102.6平方米
推薦:10套新農村自建房設計圖,2026年最新設計
閱讀次數:4825737次
100套鄉村別墅圖片大全,2026年最新設計
閱讀次數:2492203次
6款農村蓋一層平房的設計圖,10萬元就能建起來
閱讀次數:1852637次
這11個一層農村自建房別墅火爆了朋友圈!我最喜歡戶型十!你呢
閱讀次數:750268次
農村6萬元建一層小別墅圖,你敢相信嗎
閱讀次數:567686次
農村5萬塊就能自建房,6套普通房子設計圖分享,你沒看錯!
閱讀次數:419410次
8套農村漂亮三間平房圖片,非常適合在農村修建!
閱讀次數:411197次
農村自建房化糞池怎么做?附方案及施工過程
閱讀次數:391783次
農村一層三間平房設計圖,告別土氣養老房,讓人忍不住點贊
閱讀次數:350581次
新農村二層樓房圖片造價12萬,挑一套回家建房吧!
閱讀次數:349126次
