
|
農村人喜歡簡單、大方,內部空間利用率高,布局合理的二層樓房戶型,外觀嘛,也要漂亮些,不需要花花哨哨,不需要豪華高端,看起來精致、漂亮就行,實用兼顧好看才好嘛!小編推薦的這幾款施工簡單、造價低,村里的施工隊都能做,布局合理,考慮到農村人的生活習慣,以實用為主,造價有個20、30十萬就能建起來,朋友們,不要光看,挑選一套喜歡的圖紙,趕快農村自建吧! 第一套?
本方案為占地120平方米的二層小別墅設計圖,外觀時尚、漂亮,內部布局合理,造價合適,是一款經典的別墅設計方案。占地面積:11.5m*10.5m(含門廳),建筑高度:9.20米(含屋頂);
設計功能: 一層戶型設計:客廳、臥室x2、廚房、餐廳、衛生間 二層戶型設計:主臥、起居室、臥室x2、書房、衛生間、陽臺 第二套:
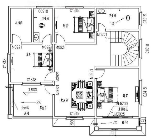
本戶型為兩層三間新農村住宅設計圖,精美的外墻,漂亮的造型符合80后、90后年輕人的審美,內部戶型設計合理,南北通透,采光,通風好,設計師把衛生間放到邊角恰到好處。
占地面積:13.0m*12.2m,155平方米左右;建筑高度:10.34米(含屋頂);
設計功能: 一層戶型設計:大堂、客廳、餐廳、廚房、臥室x2、衛生間; 二層戶型設計:客廳、主臥(帶衣帽間和衛生間)、臥室x2、衛生間、大露臺、陽臺; 圖紙之家-專注農村別墅/自建房設計18年,集合國內200余位經驗豐富的設計師,被評為口碑最好的農村建筑設計公司! |

面寬13米方正戶型二層小別墅設計方案,南北通透采光好
占地:166.78平方米
三層兩開間小面寬別墅設計圖紙帶外觀效果圖,95平方米
占地:94.61平方米
最漂亮的一層平房圖片及設計圖,造價18萬左右,結構簡單易于施
占地:186平方米
小戶型經濟農村雙拼自建房別墅設計圖紙,二層簡約造價低
占地:138平方米
帶車庫二層165平別墅房屋設計圖,含效果圖
占地:165平方米
時尚典雅歐式三層自建房設計圖,美觀大氣簡單舒適,好看到沒得
占地:153.12平方米
最實用中式一層三合院別墅設計圖,簡約精致布局實用
占地:162.49平方米
鄉村二層半別墅圖紙設計,歐式風格、錯落有致,150平左右
占地:149.76
農村帶地下室二層半自建房屋設計圖,樓中樓設計,歐式風格
占地:140平方米
新中式高端豪宅三層別墅自建房設計圖,大戶型經典
占地:270平方米左右
農村二層復式小別墅設計,進深12米,農村建房最受歡迎的款
占地:149.096 平方
鄉下建房一層戶型圖,一層住宅設計圖紙,誰說一層平房不能叫別
占地:200平方米
簡易農村別墅房子設計圖,好看實惠,施工也簡單
占地:200平方米
地中海風格二層別墅房屋設計圖,帶外觀效果圖
占地:150平方米
175平方米二層別墅設計CAD圖紙及效果圖大全,中式風格
占地:175平方米
面寬17米農村實用自建房一層別墅設計圖,簡約大氣經濟時尚
占地:192.94平方米
2026新款二層別墅房屋設計圖,帶外觀圖片
占地:138平方米
135平三層農村樓房設計圖及效果圖,造價20萬左右
占地:135平方米
農村四間二層小洋樓設計圖,歐式別墅、現代洋氣
占地:200平方米
農村三層雙拼別墅設計圖,帶外觀效果圖,推薦
占地:190平方米
推薦:10套新農村自建房設計圖,2026年最新設計
閱讀次數:4825737次
100套鄉村別墅圖片大全,2026年最新設計
閱讀次數:2492203次
6款農村蓋一層平房的設計圖,10萬元就能建起來
閱讀次數:1852637次
這11個一層農村自建房別墅火爆了朋友圈!我最喜歡戶型十!你呢
閱讀次數:750268次
農村6萬元建一層小別墅圖,你敢相信嗎
閱讀次數:567686次
農村5萬塊就能自建房,6套普通房子設計圖分享,你沒看錯!
閱讀次數:419410次
8套農村漂亮三間平房圖片,非常適合在農村修建!
閱讀次數:411197次
農村自建房化糞池怎么做?附方案及施工過程
閱讀次數:391783次
農村一層三間平房設計圖,告別土氣養老房,讓人忍不住點贊
閱讀次數:350581次
新農村二層樓房圖片造價12萬,挑一套回家建房吧!
閱讀次數:349126次
