
|
時代在進步,人們的思想觀念也在不斷發生改變,過去農村建房僅以居住為重,能住就行,而現在農村人建房都會考慮戶型的美觀和室內布局的舒適度。建造一棟獨特的小別墅,是當代很多農村人的愿景,把房子建得漂亮舒適,住在里面也會很有幸福感。今天小編給大家分享一款占地面積約80平方米現代風格二層別墅設計圖。
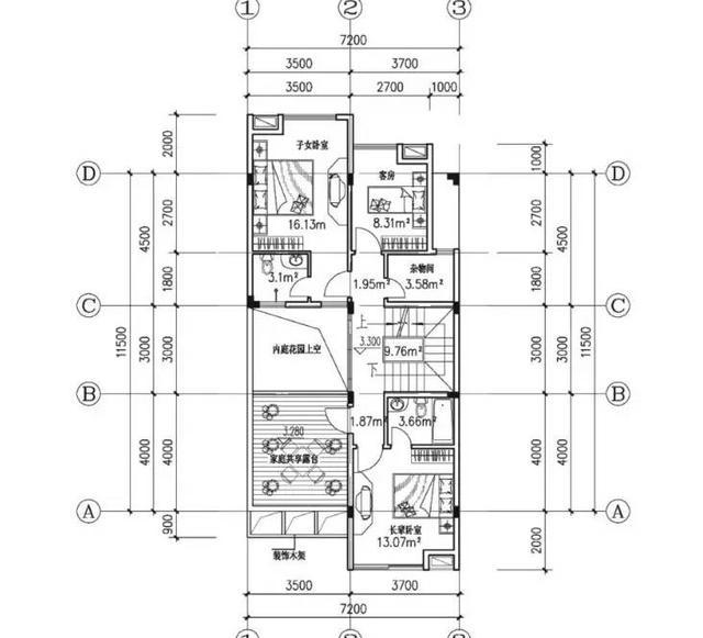
這款設計采用現代風格,以簡約明快為主,具有十足的現代感。戶型簡單大方,功能齊全,開間進深7.2米×11.5米,首層占地面積82.2㎡,總建筑面積為200㎡,帶庭院,采用框架結構,主體造價大概20萬,成本不算太高,是一款比較人性化的設計方案,適合大多數農村家庭建造。 室內布局展示
一層:客廳25.99㎡、廚房4.4㎡、餐廳9.46㎡、雜物間2.85㎡、衛生間2.18㎡、樓梯間2.85㎡
二層:長輩臥室13.07㎡(帶衛生間3.66㎡)、雜物間3.58㎡、子女臥室16.13㎡(帶衛生間3.1㎡)、客房8.31㎡、家庭共享露臺 三層:主臥室(帶衛生間、衣帽間)、屋頂大露臺 圖紙之家-專注農村別墅/自建房設計18年,集合國內200余位經驗豐富的設計師,被評為口碑最好的農村建筑設計公司! |

高端大氣的三層新中式合院別墅設計圖紙及外觀效果圖
占地:203.4平方米
雙拼二層大別墅設計圖,大面寬小進深,讓兄弟永遠不分家
占地:207.15平方米
兄弟三層雙拼房屋設計圖,帶效果圖,戶型好
占地:256平方米
200平方二層小別墅設計圖紙,含效果圖,歐式風格帶車庫
占地:197.6平方米
三層帶車庫樓中樓建房別墅圖紙,占地130平米左右,戶型室內布局
占地:130平方米
現代四合院別墅設計圖紙,二層戶型,外觀時尚漂亮
占地:287.97平方米
一層農村自建房別墅設計方案,左右對稱布局好
占地:154平方米
預算30萬三層樓房設計圖含效果圖,戶型經典
占地:125平方米
超實用的農村一層別墅設計圖,經濟實惠養老自住都不錯,
占地:128.35平方米
二層農村別墅新風尚,簡約實用,性價比高,美麗又實惠
占地:126平方米
125平方米新農村二層房屋施工設計CAD圖紙加效果圖
占地:125平方米
鄉村仿古一層別墅圖片及設計圖,經典實用,占地170平
占地:170平方米
115平方米農村三層別墅設計圖,預算30萬左右
占地:115平方米
120平二層別墅房屋設計圖,造型美觀、現代
占地:120平方米
面寬14.5米三層獨棟別墅設計圖,經典設計,大氣之作
占地:123.85平方米
對稱一層農村養老別墅設計方案,室內戶型布局合理,14x12米
占地:141.46平方米
120平米簡單實用型農村小別墅設計圖,二層屋頂為全露臺,小開間
占地:120平方米
兩層半樓房設計圖及效果圖,農村二層房屋設計圖推薦
占地:135平方米
100平左右鄉下三層樓房設計圖,戶型方正,小面積宅基地的福音
占地:100平方米
推薦:10套新農村自建房設計圖,2026年最新設計
閱讀次數:4825737次
100套鄉村別墅圖片大全,2026年最新設計
閱讀次數:2492203次
6款農村蓋一層平房的設計圖,10萬元就能建起來
閱讀次數:1852637次
這11個一層農村自建房別墅火爆了朋友圈!我最喜歡戶型十!你呢
閱讀次數:750268次
農村6萬元建一層小別墅圖,你敢相信嗎
閱讀次數:567686次
農村5萬塊就能自建房,6套普通房子設計圖分享,你沒看錯!
閱讀次數:419410次
8套農村漂亮三間平房圖片,非常適合在農村修建!
閱讀次數:411197次
農村自建房化糞池怎么做?附方案及施工過程
閱讀次數:391783次
農村一層三間平房設計圖,告別土氣養老房,讓人忍不住點贊
閱讀次數:350581次
新農村二層樓房圖片造價12萬,挑一套回家建房吧!
閱讀次數:349126次
