
|
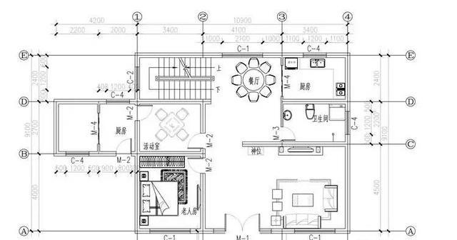
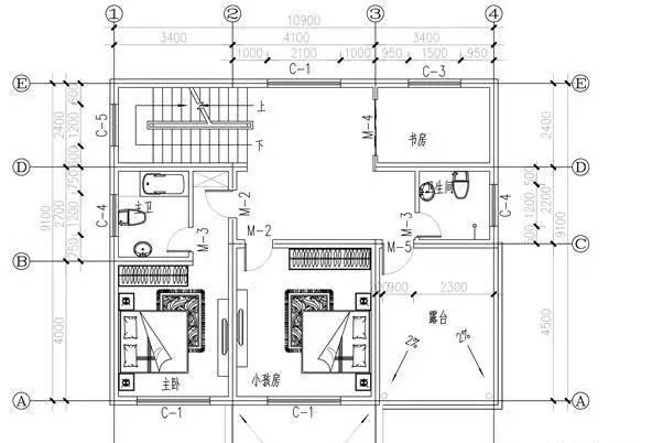
雖然說現在農村生活水平有了大大提升,但真正豪的家庭并不多,至于要建房子,大部分家庭還是傾向于那種比較簡單實用的戶型,圍個小庭院,溫馨又舒適,下面給大家分享一款比較受歡迎的簡單實用11×9米二層農村自建房設計施工效果圖。 本套二層農村自建房設計圖采用磚混結構,開間進深10.9米× 9.1米,首層占地面積100㎡,總建筑面積180㎡,主體造價20萬左右,一層設有2廳1廚1臥1衛1活動室,二層設有2臥2衛1露臺1書房。 原設計效果圖
原設計圖外觀簡約大氣,采用紅色和米黃色色兩色搭配,并使用白色邊線修飾,配色上講究簡單大氣的風格,與農村建房現狀相符。本戶型各個結構的設計并不復雜,施工難度不高,成本造價也不算高,適合眾多農村家庭可建造。 建成效果圖展示 【案例1】
這是該設計圖的施工效果圖,房子四周有樹木環繞,并帶有庭院,具有較高的私密性,建成效果十分漂亮。 【案例2】
【案例3】
室內布局展示
一層:客廳、餐廳、廚房、活動室、老人房、衛生間
二層:小孩房、主臥(帶主衛)、書房、衛生間、露臺 圖紙之家-專注農村別墅/自建房設計18年,集合國內200余位經驗豐富的設計師,被評為口碑最好的農村建筑設計公司! |

高端大氣三層歐式別墅設計圖,高檔新款外型圖片美觀時尚
占地:168平方米
新農村三層房屋設計圖紙大全,新農村住宅圖紙
占地:108平方米
兩層半雙拼別墅設計方案,超大露臺+歐式風格,好設計別錯過!
占地:175.8平方米
帶車庫四層別墅外觀效果圖及設計圖紙,戶型方正通透
占地:115平方米
簡約大氣四開間二層自建房設計圖,16x10米,經典耐看高顏值
占地:160平方米
農村小洋樓設計圖及效果圖,二層樓房設計圖
占地:120平方米
新農村二層帶庭院的小別墅設計圖及效果圖
占地:137平方米
新農村四層房屋設計圖紙,高端大氣,占地150平方米
占地:150平方米
120平方米現代新農村二層自建房設計圖,造型時尚好看
占地:120平方米
大戶型三層別墅設計圖,高貴大氣,占地面積將近300平
占地:273.33平方米
農村小戶型二層房屋別墅設計圖,帶外觀效果圖
占地:95平方米
8×12米農村三層別墅自建房設計圖,小開間精選方案
占地:103平方米
面寬22米的高端三層自建房別墅設計圖,功能齊全
占地:222.47平方米
農村10萬元一層小別墅設計圖,農村一層自建房屋設計圖
占地:多種戶型
農村兄弟雙拼平房別墅設計圖,獨門獨戶,一層也能建雙拼
占地:274.18平方米
兩層樓房設計圖,兩層新農村樓房圖紙,外觀典雅古樸
占地:140平方米
新中式帶露臺30萬左右農村三層別墅,客廳中空
占地:110平方米
115平旋轉樓梯三層復式別墅房屋設計圖,含外觀效果圖
占地:115平方米
占地120平米清新脫俗簡單二層別墅設計方案,含效果圖
占地:119.01平方米
12米寬三間二層農村自建房設計圖,左右對稱布局緊湊看著就舒服
占地:144.94平方米
推薦:10套新農村自建房設計圖,2026年最新設計
閱讀次數:4825737次
100套鄉村別墅圖片大全,2026年最新設計
閱讀次數:2492203次
6款農村蓋一層平房的設計圖,10萬元就能建起來
閱讀次數:1852637次
這11個一層農村自建房別墅火爆了朋友圈!我最喜歡戶型十!你呢
閱讀次數:750268次
農村6萬元建一層小別墅圖,你敢相信嗎
閱讀次數:567686次
農村5萬塊就能自建房,6套普通房子設計圖分享,你沒看錯!
閱讀次數:419410次
8套農村漂亮三間平房圖片,非常適合在農村修建!
閱讀次數:411197次
農村自建房化糞池怎么做?附方案及施工過程
閱讀次數:391783次
農村一層三間平房設計圖,告別土氣養老房,讓人忍不住點贊
閱讀次數:350581次
新農村二層樓房圖片造價12萬,挑一套回家建房吧!
閱讀次數:349126次
