占地面積:12.2m*10.2m,51.85平方米;
建筑層高:四層(含架空);
建筑高度:15米(含屋頂);
設計功能:
一層戶型:車庫、臥室、衣帽間、活動室/茶室、衛生間;
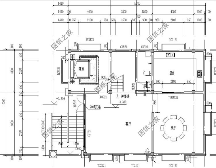
二層戶型:客廳、餐廳、廚房、臥室、衛生間、陽臺;
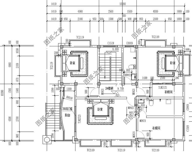
三層戶型:臥室(帶衣帽間、衛生間)、臥室(帶衣帽間)、臥室、衛生間、陽臺;
四層戶型:臥室(帶衣帽間、衛生間)、臥室(帶衣帽間)、臥室、衛生間、陽臺;






占地面積:12.2m*10.2m,51.85平方米;
建筑層高:四層(含架空);
建筑高度:15米(含屋頂);
設計功能:
一層戶型:車庫、臥室、衣帽間、活動室/茶室、衛生間;
二層戶型:客廳、餐廳、廚房、臥室、衛生間、陽臺;
三層戶型:臥室(帶衣帽間、衛生間)、臥室(帶衣帽間)、臥室、衛生間、陽臺;
四層戶型:臥室(帶衣帽間、衛生間)、臥室(帶衣帽間)、臥室、衛生間、陽臺;













一、圖紙均為高清藍圖,包含全套設計圖,交給施工隊可直接建造;
二、圖紙每個數據都是環環相扣的,修改工作量大,還容易出錯,不支持修改服務;
三、如果您對圖紙的尺寸、戶型不滿意,我們可以按您的要求進行定制;
四、圖紙通俗易懂,只需按圖施工即可1比1還原效果圖,我們還提供在線指導服務。
底層架空的農村一層帶閣樓小別墅設計圖,布局巧妙很走心
造價:18萬
現代風格帶架空層別墅設計圖,大氣穩重又很實用
造價:28萬
帶架空層的三層別墅設計圖紙,下面當車庫,實用不返潮
造價:85萬
回農村建帶架空層別墅,這樣的設計很實用,不返潮、不怕積雨
造價:42萬
帶架空層三層(含架空)別墅設計圖,防潮、儲物、做車庫,一舉
造價:32萬
農村四層(含架空層)別墅設計圖,農村這樣建好處多多
造價:52萬
帶架空層的三層(4層)別墅設計方案,農村建一棟就是地標
造價:46萬
帶架空層的四層別墅設計圖,有錢人回農村建房必選
造價:150萬
12x10米帶架空層的四層別墅設計方案,南北通透好格局!
造價:43萬
40萬就能建的帶架空層別墅設計方案,能防潮能儲物還能做車庫
造價:38萬
小戶型帶架空層二層現代別墅設計圖,面寬僅9米
造價:28萬
40萬就能建好的帶架空層的別墅設計圖,車再多也停得下
造價:37萬
帶架空層的平房別墅設計方案,防潮實用多出儲藏空間
造價:54萬
超氣派的三層別墅設計圖,架空層做車庫,有錢有地就能建
造價:50萬
帶架空層的三層(四層)別墅設計圖,復式客廳、帶車庫
造價:50萬
帶架空層的雙拼別墅設計方案圖,倆兄弟可以這樣建房
造價:55萬
新中式帶架空的兩層(三層)自建房設計圖,流行這樣蓋
造價:42萬
帶架空層的三層(含架空)中式別墅設計方案,帶堂屋
造價:23萬
帶架空層的三層(兩層)房子設計圖,農村建一套很氣派!
造價:20萬
帶架空層(做車庫)歐式小別墅設計圖,設計高級又接地氣
造價:40萬
小戶型帶架空層二層現代別墅設計圖,面寬僅9米
造價:28萬
底層架空的農村一層帶閣樓小別墅設計圖,布局巧妙很走心
造價:18萬
帶架空層的三層(四層)別墅設計圖,復式客廳、帶車庫
造價:50萬
超氣派的三層別墅設計圖,架空層做車庫,有錢有地就能建
造價:50萬
帶架空層的三層(兩層)房子設計圖,農村建一套很氣派!
造價:20萬
新中式帶架空的兩層(三層)自建房設計圖,流行這樣蓋
造價:42萬
帶架空層(做車庫)歐式小別墅設計圖,設計高級又接地氣
造價:40萬
帶架空層三層(含架空)別墅設計圖,防潮、儲物、做車庫,一舉
造價:32萬
帶架空層的雙拼別墅設計方案圖,倆兄弟可以這樣建房
造價:55萬
帶架空層的三層(4層)別墅設計方案,農村建一棟就是地標
造價:46萬
新中式帶架空的兩層(三層)自建房設計圖,流行這樣蓋
占地:249.32平方米
帶架空層的雙拼別墅設計方案圖,倆兄弟可以這樣建房
占地:244.4平方米
帶架空層的三層(4層)別墅設計方案,農村建一棟就是地標
占地:135.05平方米
帶架空層的三層(四層)別墅設計圖,復式客廳、帶車庫
占地:139.89平方米
帶架空層三層(含架空)別墅設計圖,防潮、儲物、做車庫,一舉
占地:139.24平方米
帶架空層(做車庫)歐式小別墅設計圖,設計高級又接地氣
占地:159.3平方米
底層架空的農村一層帶閣樓小別墅設計圖,布局巧妙很走心
占地:232.36平方米
帶架空層的三層(兩層)房子設計圖,農村建一套很氣派!
占地:120平方米
小戶型帶架空層二層現代別墅設計圖,面寬僅9米
占地:110.22平方米
超氣派的三層別墅設計圖,架空層做車庫,有錢有地就能建
占地:149.6平方米
