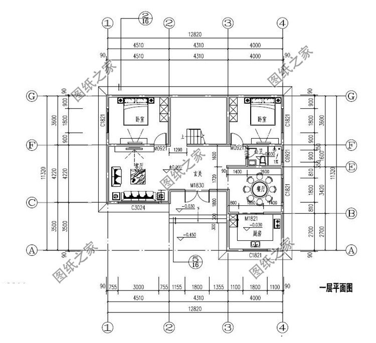
占地面積:12.82m*11.32m,114.91平方米左右;
建筑層高:三層;
建筑高度:12.954米(含屋頂);
設計功能:
一層戶型:玄關、客廳、廚房、餐廳、臥室x2、衛生間;
二層戶型:客廳、臥室x3、衛生間、陽臺;
三層戶型:臥室x4、陽臺、露臺;







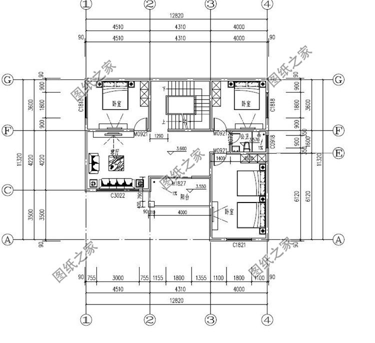
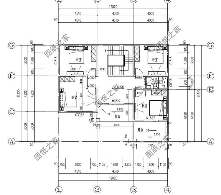
占地面積:12.82m*11.32m,114.91平方米左右;
建筑層高:三層;
建筑高度:12.954米(含屋頂);
設計功能:
一層戶型:玄關、客廳、廚房、餐廳、臥室x2、衛生間;
二層戶型:客廳、臥室x3、衛生間、陽臺;
三層戶型:臥室x4、陽臺、露臺;














一、圖紙均為高清藍圖,包含全套設計圖,交給施工隊可直接建造;
二、圖紙每個數據都是環環相扣的,修改工作量大,還容易出錯,不支持修改服務;
三、如果您對圖紙的尺寸、戶型不滿意,我們可以按您的要求進行定制;
四、圖紙通俗易懂,只需按圖施工即可1比1還原效果圖,我們還提供在線指導服務。
l型農村三層自建房子設計圖紙及外觀效果圖
造價:44萬
平頂七字形三層自建房子設計圖,L型別墅
造價:26萬
超現代風格七字形三層別墅圖,L型農村自建房戶型
造價:32萬
鄉村七字形三層別墅設計圖紙,自建房效果圖
造價:49萬
三層小L型自建別墅設計圖紙,外觀高端、大氣
造價:70萬
復式三層L型七字形自建房屋設計圖紙及效果圖
造價:70萬
獨立廚房七字形三層自建別墅圖,含全套施工圖紙
造價:33萬
七字形三層別墅施工全套設計圖,農村自建房推薦
造價:38萬
仿古中式七字形三層自建房子別墅設計圖紙,小戶型
造價:25萬
農村三層七字形別墅設計圖紙,外觀高端大氣
造價:65萬
L形農村蓋房子自建別墅設計圖紙,一層七字形布局
造價:52萬
180平三層七字形別墅設計圖紙及效果圖大全
造價:57萬
鄉村三層七字形別墅設計圖紙及自建房戶型圖
造價:32萬
鄉村二層半七字形別墅設計圖,自建房L型戶型,面寬14米
造價:35萬
帶車庫的三層七字形別墅設計圖紙及效果圖片
造價:44萬
三層七字形別墅設計圖紙,農村L型戶型方案推薦
造價:48萬
平頂二層七字形小別墅設計圖紙及效果圖片
造價:22萬
七字形二層自建房子設計圖及效果圖,17x13米
造價:28萬
帶小院的L型二層自建房別墅設計圖紙及外觀效果圖
造價:42萬
帶車庫獨立餐廚七字形二層小別墅設計圖紙及外觀圖片
造價:28萬
七字形二層半帶閣樓的別墅設計圖,l戶型方案
造價:22萬
現代二層小別墅設計圖紙,L型(七字形)戶型方案
造價:34萬
農村房屋L型戶型設計圖紙及外觀效果圖
造價:28萬
鄉村七字形二層別墅設計圖紙及外觀效果圖
造價:29萬
蘇式七字形二層住宅別墅設計圖紙,仿古風格
造價:40萬
平屋頂L型二層小樓房設計圖紙及效果圖
造價:21萬
帶車庫的農村二層七字形自建房別墅設計圖紙,15x12米
造價:27萬
L型二層小別墅設計圖紙,90平小戶型七字型方案
造價:15萬
仿古L型二層別墅設計圖,外觀古香古色
造價:43萬
現代風格二層七字形別墅設計圖紙,外觀時尚漂亮
造價:37萬
仿古中式七字形二層小別墅設計圖紙,L型自建房推薦
造價:22萬
L型二層小別墅設計圖紙,90平小戶型七字型方案
造價:15萬
農村七字型小別墅設計圖紙,一層帶獨立廚房戶型
造價:13萬
七字形三層別墅施工全套設計圖,農村自建房推薦
造價:38萬
超現代風格七字形三層別墅圖,L型農村自建房戶型
造價:32萬
帶小院的L型二層自建房別墅設計圖紙及外觀效果圖
造價:42萬
現代二層小別墅設計圖紙,L型(七字形)戶型方案
造價:34萬
現代風格二層七字形別墅設計圖紙,外觀時尚漂亮
造價:37萬
新中式農村自建七字型小別墅設計圖,二層七帶小院戶型
造價:26萬
中式L型二層別墅自建房設計圖,外觀非常漂亮
造價:28萬
七字形二層別墅設計圖紙,二層廚房餐廳獨立戶型
造價:27萬
三層小L型自建別墅設計圖紙,外觀高端、大氣
造價:70萬
農村七字形二層小別墅設計圖紙,開間16米
造價:35萬
七字形二層小樓設計戶型圖及效果圖,帶地下室
造價:29萬
帶車庫的農村二層七字形自建房別墅設計圖紙,15x12米
造價:27萬
仿古L型二層別墅設計圖,外觀古香古色
造價:43萬
仿古中式七字形三層自建房子別墅設計圖紙,小戶型
造價:25萬
平頂七字形三層自建房子設計圖,L型別墅
造價:26萬
三層七字形別墅設計圖紙,農村L型戶型方案推薦
造價:48萬
獨立廚房餐廳的七字形二層新中式小樓設計圖紙
造價:28萬
七字形二層別墅設計圖紙,二層廚房餐廳獨立戶型
占地:196.6平方米
仿古中式七字形三層自建房子別墅設計圖紙,小戶型
占地:84.56平方米
仿古L型二層別墅設計圖,外觀古香古色
占地:227平方米
七字形三層別墅施工全套設計圖,農村自建房推薦
占地:165.304平方米
新中式農村自建七字型小別墅設計圖,二層七帶小院戶型
占地:160.48平方米
現代風格二層七字形別墅設計圖紙,外觀時尚漂亮
占地:204平方米
帶小院的L型二層自建房別墅設計圖紙及外觀效果圖
占地:230.594平方米
超現代風格七字形三層別墅圖,L型農村自建房戶型
占地:119.95平方米
現代二層小別墅設計圖紙,L型(七字形)戶型方案
占地:173.16平方米
三層七字形別墅設計圖紙,農村L型戶型方案推薦
占地:182.15平方米
帶車庫的農村二層七字形自建房別墅設計圖紙,15x12米
占地:130.44平方米
農村七字形二層小別墅設計圖紙,開間16米
占地:312.5平方米
獨立廚房餐廳的七字形二層新中式小樓設計圖紙
占地:211.05平方米
三層小L型自建別墅設計圖紙,外觀高端、大氣
占地:275.06平方米
中式L型二層別墅自建房設計圖,外觀非常漂亮
占地:173.32平方米
七字形二層小樓設計戶型圖及效果圖,帶地下室
占地:102平方米
平頂七字形三層自建房子設計圖,L型別墅
占地:145.86平方米
仿古中式七字形二層小別墅設計圖紙,L型自建房推薦
占地:140.74平方米
L型二層小別墅設計圖紙,90平小戶型七字型方案
占地:91平方米
農村七字型小別墅設計圖紙,一層帶獨立廚房戶型
占地:163.05平方米
