
|
很久沒和大家分享歐風格鄉村別墅了,歐美風格的別墅普遍占地都會比一般的自建房稍大一些,但整體別墅效果也會更有內涵和韻味。 中國要說到城市的發展,去過國外的人都知道,就是絲毫不比外國城市差到哪里,甚至,中國的一線城市比起紐約、東京、首爾等幾乎顯不出太大差別。那么,中國哪里比不過外國?就是農村了。不過近兩年,國家不斷投入對農村支持力度,相信不久的未來,中國農村一定也會越來越美,到時候家家住別墅,交通便利,電商發達,生活上和城市差別越來越小,空氣卻比城市清新許多。新型城鎮化提出要做好人的城鎮化,其實就是講,雖然是住在鄉村別墅,但是思想、生活方式跟過去傳統農村模式完全不同,完全是城市人的思維跟生活方式。這樣的話,你還不早點準備回老家去蓋套別墅嗎?今天給大家介紹一套樓房設計圖,造型非常漂亮。
這套簡歐戶型比傳統正宗的歐式減少了很多線腳等裝飾性元素,節省了大量材料和人工費用,外觀更簡潔、硬朗、更具有現代氣息。
戶型介紹: 建筑面積:316平方米 建筑層高:一層3.3米 二層3米 建筑尺寸:15米×15.2米 建筑結構:混凝土框架結構 預估造價:38萬 設 計 師:24建筑
一層布局:從門廊步入房間,右邊是客廳、中間是餐廳、左面是廚房,向里走有公衛,最里面左邊有一間帶衛生間衣帽間的老人房和保姆房,在門廊的左面還有一間較大的房間,里面也自帶衛生間衣帽間,樓梯設在一層房間中間最里面,樓梯下是儲藏間。
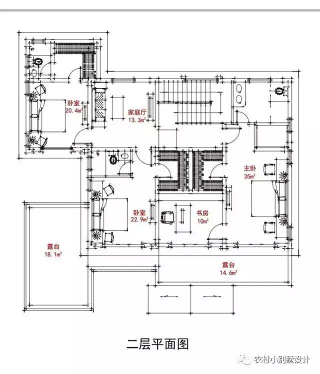
二層布局:從樓梯上到二樓,首先是一個家庭廳(相當于二樓的客廳),旁邊連著的是一間帶衛生間衣帽間的臥室,家庭廳的對面還有一間臥室,也是自帶衛生間衣帽間,而且屋里直通一個大露臺,二層最東面是這一層最大的一間大主臥,內有衣帽間衛生間和露臺。
這是本樓的頂視圖,可以看到共設有五個老虎窗。
正面透視圖
西立面圖
西南鳥瞰圖
放大局部
東南透視圖
前院透視局部。(完) 轉載請注明出自別墅設計網:http://www.bjcyqiyejia.com/ 千套別墅設計帶別墅圖片 |

90平方米左右小戶型自建三層房屋設計圖紙及外觀效果圖
占地:91平方米左右
120平米農村三層房屋設計圖,客廳中空,戶型合理
占地:120平方米
私人別墅房屋cad施工設計圖,造型精致、美觀
占地:105平方米
110平方米新農村三層房屋設計圖,含外觀效果圖
占地:110平方米
農村120平方房子設計圖,三層房屋設計圖精選
占地:120平方米
帶車庫簡約二層小別墅房屋設計圖紙,占地120平米,彎彎的樓梯打
占地:120平方米
西班牙風格農村二層樓房設計圖及效果圖,實用美觀
占地:170平方米
小開間三層新中式小別墅設計圖,外觀圖優雅大氣,讓人心動!
占地:103.18平方米
農村二層半樓房設計圖及效果圖,歐式風格
占地:150平方米
三層奢華歐式別墅圖片及全套設計圖,帶地下室和車庫
占地:208平方米左右
農村自建房10萬以下兩層別墅設計圖含外觀效果圖片
占地:105平方米
新中式農村三層樓房設計圖紙,全套圖紙設計,線條錯落有致
占地:130平方米
三層帶露臺21萬別墅設計圖,占地面積100平米左右
占地:106平方米
鄉村房屋改建三層房屋設計圖紙,農村樓房設計圖推薦
占地:90平方米
簡單農村二層自建房子設計圖,主體18萬就能建好,太心動了!
占地:124.53
高端歐式三層別墅設計圖紙,歐式別墅設計效果圖
占地:176平方米
小宅基地不用愁,占地90來平新農村自建三層房屋施工設計圖
占地:87平方米左右
80平方米新農村三層房屋設計圖,新農村住宅圖紙精選
占地:80平方米
農村三層帶露臺、帶車庫房屋設計圖,含外觀圖片
占地:155平方米
小型三層別墅cad建筑圖紙帶效果圖,帶屋頂露臺
占地:101平方米左右
11×10造價25萬帶神位平頂三層自建房設計圖
閱讀次數:29678次
2021年最流行的10套經典農村別墅,最愛那一套?
閱讀次數:25940次
進深8.5米,開間12米,帶堂屋的樓房設計圖怎么做?
閱讀次數:23817次
18萬搞定的農村二層別墅,詳細施工過程實拍!含別墅設計圖!
閱讀次數:17744次
5款帶落地窗的農村別墅,大氣的別墅就應該是這個樣子
閱讀次數:17217次
15套2017年最新潮二層農村別墅,這樣蓋既實用又上檔次!
閱讀次數:12834次
2021農村建的最多的2款二層小別墅戶型,爆款是有理由的
閱讀次數:11876次
農村自建房這樣預埋水電管,老師傅說規范又實用
閱讀次數:11471次
9X12米二層農村別墅,不超過規定面積還能有小院
閱讀次數:10618次
農村自建房打地基的費用是多少,需要注意哪些問題?
閱讀次數:10549次
