
|
普通老百姓對老家的宅基地有感情,趁機會建個小房,或許以后有時間回老家小住或度假。建房是給自己和家人住的,不是建給他人看的。所以不要跟風,不要顯擺,掂量自己的實力,選擇最實惠的方案。沒有雄厚的資金,就只能建普通小房。
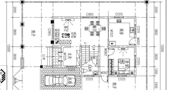
別墅平面圖:共設4室2廳3衛,首層設客廳、餐廳、廚房、臥室、衛生間、玄關和車庫。
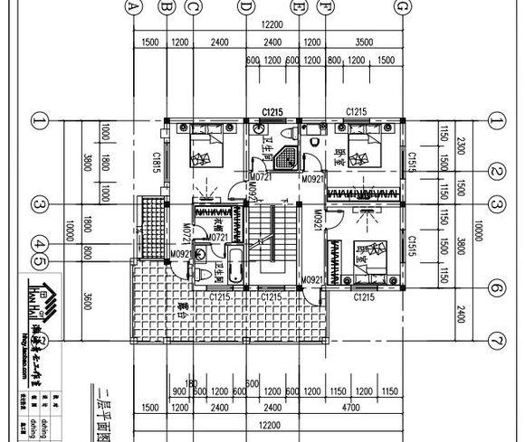
二層設3間臥室2衛生間,主臥帶衛生間和衣帽間,其次提供有小型的露臺可供休憩。增添閑暇時光的樂趣。
基礎施工圖:
清理舊地基。
現澆基礎底排。
如果是全框架結構建議用沙磚,因為紅磚要貴好多,不需要承載負荷,磚混結構可以用沙磚或紅磚。
底排上來砌了將近一米的墻,8000塊沙磚,上面再綁扎基礎梁。
鋼筋綁扎的時候,接頭處箍筋要扎密。
這樣做的優點是能有效的排掉基礎內的水分,并且回填土不會把墻弄歪。而底排和基礎梁一起現澆,操作容易,一起混澆,牢固程度較好,但是上面墻有回填弄歪的風險,各有優缺點。
在現澆前要清除模板內的渣土和灰塵。用水澆濕,尤其是大晴天,后期即使澆水保護也難以滲透到最下層!
回填土:細節很多 挖機不要把梁碰歪,碰裂,回填土要一層一層填,大料不要填在墻角,回填中要選擇河沙做墊層,澆水沖透淋實。
聽說填點沙可以防潮。
終于開始壘砌墻體了。
首層澆筑樓板。
二層砌墻。
看一下外觀。
而層澆筑。
屋頂,高度最高處有2.4米 加30公分墻,應該達到2.7米,閣樓還是能有利用價值。
坡屋面砌大瓦條,蓋瀝青瓦。
建成后的樣子。
混凝土粉刷后的整體效果。
最終的成果,感覺像一座藝術品有木有。
轉載請注明出自別墅設計網:http://www.bjcyqiyejia.com/ 千套別墅設計帶別墅圖片 |

帶堂屋設計一層5間平房新農村自建別墅效果圖全套施工圖
占地:198.41平方米
新式帶挑空客廳三層鄉村別墅設計圖,占地170平左右
占地:170平方米
275平方米新農村雙拼樓中樓戶型別墅設計圖紙及效果圖21X14米
占地:275平方米
農村120平米三間三層樓房設計圖紙,農村理想住房設計圖
占地:120平方米
150平米左右歐式三層鄉村別墅設計圖,客廳中空
占地:150平方米
在農村30萬可以建造的三層別墅款式,帶別墅外觀圖片
占地:138平方米
農村三間三層豪宅設計圖,自建別墅推薦戶型,帶地下室
占地:170平方米
最好看的新款農村三層復式別墅設計圖片及設計圖,外觀高端、大
占地:160平方米
120平方三層房子設計圖,漂亮實用農村自建小別墅設計圖
占地:120平方米
私人二層中式四合院別墅建筑設計圖,新農村經濟實用戶型
占地:145平方米
農村40萬房子圖片外觀設計效果圖,帶地下室,外觀時尚大氣
占地:110平方米
165平方米農村帶陽光房的二層小別墅設計圖紙帶外觀圖18.16米*9.
占地:166平方米
巴洛克風格別墅設計圖紙及效果圖,農村建一棟想低調都難
占地:256平方米左右
帶開放式車庫二層農村自建別墅設計方案,造價僅15萬
占地:89.412平方米
漂亮時尚二層樓房設計圖紙,經濟實用,戶型通透
占地:150平方米
時尚的農村二層別墅圖紙設計,現代風格,簡約的外觀
占地:152平方米左右
五間二層別墅設計圖紙,樓梯設計的無比大氣
占地:300平方米
農村建房兄弟雙拼三層圖紙,客廳中空,戶型合理
占地:330平方米
12米×10米左右一層別墅平房戶型圖及設計圖,造價低
占地:110平方米
最漂亮的農村二層小樓設計圖紙,簡約又大氣時尚
占地:120平方米
11×10造價25萬帶神位平頂三層自建房設計圖
閱讀次數:29678次
2021年最流行的10套經典農村別墅,最愛那一套?
閱讀次數:25940次
進深8.5米,開間12米,帶堂屋的樓房設計圖怎么做?
閱讀次數:23817次
18萬搞定的農村二層別墅,詳細施工過程實拍!含別墅設計圖!
閱讀次數:17744次
5款帶落地窗的農村別墅,大氣的別墅就應該是這個樣子
閱讀次數:17217次
15套2017年最新潮二層農村別墅,這樣蓋既實用又上檔次!
閱讀次數:12834次
2021農村建的最多的2款二層小別墅戶型,爆款是有理由的
閱讀次數:11876次
農村自建房這樣預埋水電管,老師傅說規范又實用
閱讀次數:11471次
9X12米二層農村別墅,不超過規定面積還能有小院
閱讀次數:10618次
農村自建房打地基的費用是多少,需要注意哪些問題?
閱讀次數:10549次
