
|
設計說明: 別墅共三層,墻體采用紅白兩色,建筑輪廓以白色線腳勾勒,清新自然,在外形上別墅層次感強,每層都設計屋檐,可避免陽光直曬。 案例基本信息 ? 占地尺寸:12.5x12m ? 占地面積:150㎡ ? 建筑面積:307㎡ ? 建筑情況:4室2廳3衛1廚房1多功能廳1車庫 ? 建筑結構:框架結構 ? 造價估算:36.8萬 平面圖 一層入戶,開放的客廳與餐廳讓整個空間開闊,活動自如,不受局限。
▲ 一層平面圖 二層主臥面積較大,可擺放沙發,獨立的衛生間方便業主使用,單獨的陽臺使室內更顯開闊,也可以隔擋陽光灰塵。
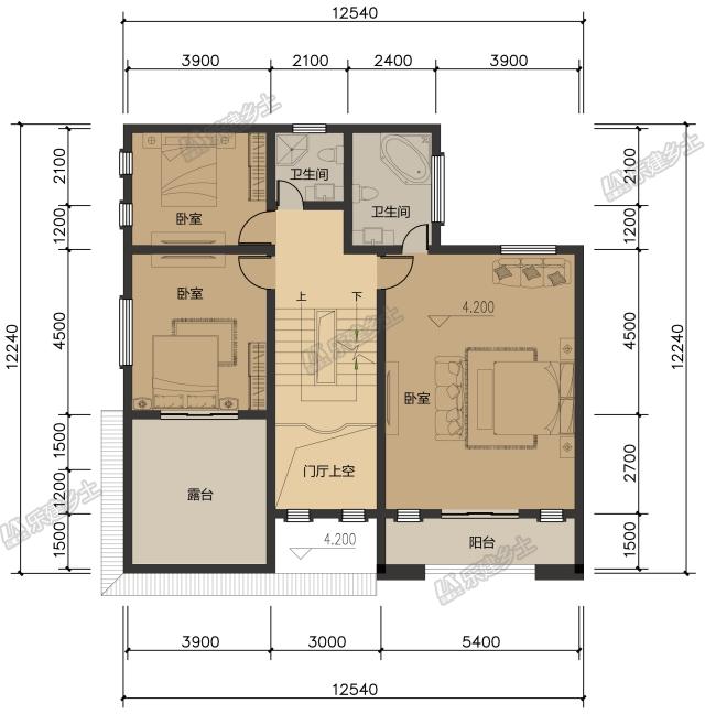
▲ 二層平面圖 三層多功能廳與門廳上空相通,可布置成健身房或者娛樂室,豐富家庭生活。
▲ 三層平面圖 立面圖
▲ 南立面
▲ 北立面
▲ 東立面
▲ 西立面 該案例外觀設計偏中式別墅設計,莊重大方,富有層次,內部功能布局合理,三層通高門廳縱向擴大視野,給人良好的入戶體驗。如果您也想建一所理想的別墅就來聯系我們吧! 轉載請注明出自別墅設計網:http://www.bjcyqiyejia.com/ 千套別墅設計帶別墅圖片 |

農村最好看18萬左右兩層小樓圖,外觀、造型簡潔大方
占地:120平方米
農村四間房屋設計圖經典戶型,這樣設計美觀、實用
占地:169平方米
10萬農村別墅設計圖小戶型,經濟、耐看、實用
占地:多種戶型
高端三層獨棟歐式別墅效果圖,帶大衛生間,CAD全套施工設計圖
占地:158平方米
五十萬二層半鄉村別墅,客廳挑空設計,占地200平米左右
占地:200平方米
一層半小別墅設計圖帶效果圖,農村自建帶閣樓一層半方案
占地:155平方米
新農村二層住宅設計圖紙,簡單別墅設計圖(含效果圖)
占地:77.6平方米
120平方米新農村四層房屋設計圖紙和效果圖
占地:120平方米
經典農村三層樓房設計圖,10個不同尺寸戶型,各種戶型供您選擇
占地:多種
簡單漂亮實用的三層自建房設計圖,帶露臺,占地170平方米
占地:170平方米
簡歐風格別墅設計圖帶外觀效果圖,三層140平米戶型方案
占地:140平方米
最美中式農村別墅二層三間的房子圖,帶土灶房,娛樂室,大露臺
占地:180平方米
農村120平三層樓房設計圖,造型現代,帶屋頂花園
占地:120平方米
110平左右農村復式二層小樓設計圖,外觀非常受歡迎
占地:112平方米
125平方米新農村三層自建別墅施工設計圖,13x10米
占地:125平方米
二層別墅設計圖紙及效果圖,占地200平米,外觀精致優雅,小有情
占地:200平方米
簡歐二層別墅設計圖紙含效果圖片,寶家鄉墅經典風格
占地:137.34平方米
140平三層復式別墅設計圖及外觀效果圖
占地:140平方米
鄉村三層別墅設計圖紙,帶屋頂花園(含效果圖)
占地:150平方米
130平米新農村自建房屋施工建筑圖紙及效果圖
占地:132平米
11×10造價25萬帶神位平頂三層自建房設計圖
閱讀次數:29678次
2021年最流行的10套經典農村別墅,最愛那一套?
閱讀次數:25940次
進深8.5米,開間12米,帶堂屋的樓房設計圖怎么做?
閱讀次數:23817次
18萬搞定的農村二層別墅,詳細施工過程實拍!含別墅設計圖!
閱讀次數:17744次
5款帶落地窗的農村別墅,大氣的別墅就應該是這個樣子
閱讀次數:17217次
15套2017年最新潮二層農村別墅,這樣蓋既實用又上檔次!
閱讀次數:12834次
2021農村建的最多的2款二層小別墅戶型,爆款是有理由的
閱讀次數:11876次
農村自建房這樣預埋水電管,老師傅說規范又實用
閱讀次數:11471次
9X12米二層農村別墅,不超過規定面積還能有小院
閱讀次數:10618次
農村自建房打地基的費用是多少,需要注意哪些問題?
閱讀次數:10549次
