
|
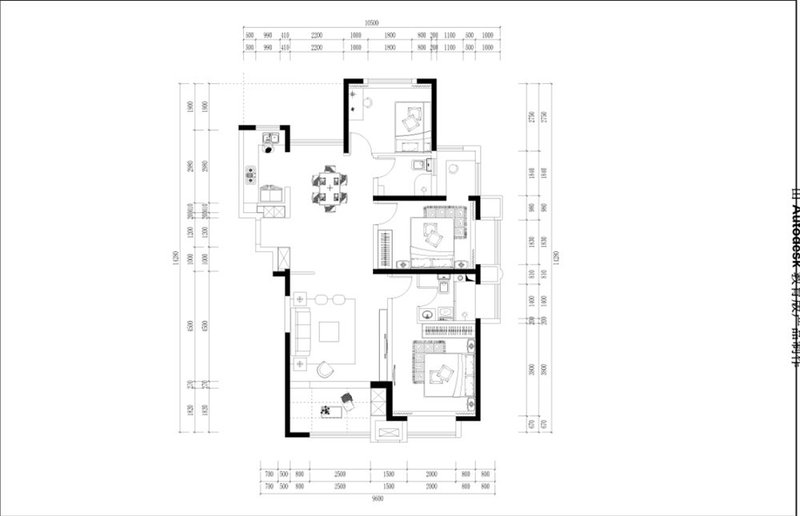
本文介紹的案例位于雲錦世家,業主是第一次裝修,房屋總面積132平米,考慮到生活需求,業主將132平米的房子裝修成三居室。業主鐘愛現代簡約風格,所以房子整個裝修風格都是采用的現代簡約。業主透露本套132平米的房子半包裝修只花了5萬。一起來看看效果圖吧! 裝修公司:天津陽光力天建筑裝飾預算:5萬風格:現代簡約案例套數:28352更多 半包:5萬戶型分析該戶型為云錦世家三室兩廳兩衛132平方米,入戶門左手邊廚房門,廚房帶有生活陽臺,略顯多余,過道左手邊為餐廳,餐廳部分面積較小,過道右手邊為客廳,客廳部分帶有陽臺,光照充足,空氣流通較好。客餐廳共處一個公共空間,南北通透。主臥帶有飄窗,光照充足,空氣流通較好。且帶有衛生間,主衛帶有窗戶,通風排濕不需要借助設備。兩個次臥都帶有窗戶,光照充足,空氣流通較好。整體戶型形狀方正,各個房間和功能區的形狀也是方正的矩形,戶型面積適中。整個空間動線合理,人在房間走動,符合生活習慣。設計說明本次設計風格為現代簡約云錦世家三室兩廳兩衛132㎡。整個空間設計簡約而不簡單,在簡約的設計中體現不簡單之處,就是現代簡約風格。整體設計給人一種寬敞明亮的感覺,整個空間色調為米黃色,在客廳的設計中,沙發背景墻用簡單的掛畫做裝飾,電視墻做了簡單的壁掛式置物板。陽臺區做了榻榻米的設計。餐廳部分面積較小,相鄰的生活陽臺又顯得多余,所以在生活陽臺部分做了拆改,將生活陽臺歸入餐廳的部分,使整個客餐廳部分通透而又明亮。整個空間設計簡約,少即是多,多即是少。軟裝搭配有深有淺,簡約而不簡單。以寧缺勿濫為精髓,合理的簡化居室,從簡單舒適中體現生活的精致。 客廳在家庭空間中的占地面積是最大的,也是家庭居住的核心區域,是最能體現裝修風格的區域。客廳的特點是面積大,空間開放性高。明確客廳風格是非常重要的,如果連客廳都表達不出家庭裝修風格,那這樣的家庭裝修絕對是失敗的。
整個空間設計簡約而不簡單,在簡約的設計中體現不簡單之處,就是現代簡約風格。整體設計給人一種寬敞明亮的感覺,整個空間色調為米黃色,在客廳的設計中,沙發背景墻用簡單的掛畫做裝飾,電視墻做了簡單的壁掛式置 無論家里面積大小,臥室都是一個不能忽略的場所。裝修時,有些小細節稍不注意,就可能影響到每天的睡眠質量和生活狀態。
整個空間設計簡約而不簡單,在簡約的設計中體現不簡單之處,就是現代簡約風格。整體設計給人一種寬敞明亮的感覺,整個空間色調為米黃色,在客廳的設計中,沙發背景墻用簡單的掛畫做裝飾,電視墻做了簡單的壁掛式置 家用餐廳空間應該是我們每天可以不厭其煩地花時間的地方。這個功能空間既是我們用心制作美食的地方,也是將朋友聚攏起來分享食物增進感情的好去處。
整個空間設計簡約而不簡單,在簡約的設計中體現不簡單之處,就是現代簡約風格。整體設計給人一種寬敞明亮的感覺,整個空間色調為米黃色,在客廳的設計中,沙發背景墻用簡單的掛畫做裝飾,電視墻做了簡單的壁掛式置 以下就是本套雲錦世家小區132平米三居室房子的戶型圖。
整個空間設計簡約而不簡單,在簡約的設計中體現不簡單之處,就是現代簡約風格。整體設計給人一種寬敞明亮的感覺,整個空間色調為米黃色,在客廳的設計中,沙發背景墻用簡單的掛畫做裝飾,電視墻做了簡單的壁掛式置 132平米的房子如何裝修才好呢?看完上述業主的分享,你心里是不是有了自己的想法呢?對于132平米的房子來說,打造成三居室更能滿足日常生活的需求,而且現代簡約風格能讓室內更加美觀、大氣。 轉載請注明出自別墅設計網:http://www.bjcyqiyejia.com/ 千套別墅設計帶別墅圖片 |
農村實用三層樓房圖片,占地140平米左右,客廳中空
占地:140平方米
大氣農村一層自建別墅方案,絕對讓人羨慕的“平房”
占地:158.39平方米
13x13米簡單二層帶閣樓最新別墅設計圖,精致美觀
占地:158.5平方米
帶電梯的農村歐式雙拼三層豪宅別墅設計圖,樓梯電梯共用
占地:268.448平方米
農村自建三間三層樓房設計圖,帶露臺,經典實用
占地:135平方米
時尚一層別墅圖,一層這樣蓋房最漂亮
占地:160平方米
35萬左右的農村小別墅設計圖及效果圖,新中式風格
占地:137平方米
2024最新款50萬左右農村三層別墅設計圖,客廳中空
占地:160平方米
占地105平實用三層樓房別墅設計圖紙,造型方正簡單大氣
占地:105平方米
三層獨棟別墅設計圖紙帶效果圖,全套施工方案(建筑圖+結構圖
占地:144平方米
3款挑空客廳的二層小樓房設計圖,款款漂亮
閱讀次數:48516次
立邦油漆哪個系列好?小編一一對比分析
閱讀次數:31501次
2024十大環保油漆,中國十大環保油漆排名榜
閱讀次數:11505次
手上的油漆怎么洗-快速洗掉油漆小竅門
閱讀次數:7981次
無味油漆到底對人有沒有害?真實曝光
閱讀次數:7922次
8款不同風格樓梯設計效果圖,我最喜歡第8款
閱讀次數:7024次
立邦油漆價格表,立邦油漆一般多少錢一桶?
閱讀次數:6809次
為大家分享一套兩層農村自建房裝修案例,15萬搞定裝修
閱讀次數:6111次
2024年紫荊花油漆價格一般是多少錢一桶?品牌怎么樣
閱讀次數:6012次
嘉寶莉油漆價格一般是多少錢一桶?
閱讀次數:5765次
