
|
裝修想要不留遺憾,就得多參考別人的案例,揚長避短。今天小編給大家推薦一套設計特別成功的案例,本案例位于龍灣城小區,室內面積為160平米,戶型為三居室,設計風格為歐美風情。整套房子設計半包下來總共花費7萬。接下來,我們一起看看這套房子是怎么設計的! 裝修公司:天津陽光力天裝飾預算:7萬風格:歐美風情案例套數:29441更多 半包預算7.2萬元戶型分析本戶型為龍灣城三室兩廳兩衛一廚160平米的戶型,首先,從入戶進,左邊是餐廳,右邊是客廳,南北通透敞亮,通風和采光好,客餐廳較大,可設計空間較多,廚房正對餐廳,廚房較小。順著過道往里走左邊第一間是衛生間,較為隱蔽,在往里是三個臥室,主臥較大有單獨衛生間,一個次臥有單獨的陽臺采光性較好,另一個次臥設計為書房,根據業主的興趣愛好設計。整體設計比較合理,適合三四口居住,以客餐廳到衛生間到臥室的合理順序,比較受普通大眾的歡迎。由于房屋富裕空間較多,所以設計為歐式,線條結構較多,色彩搭配較豐富,提升了整體家居的格調。考慮業主為三口之家,富裕的一個臥室設計為書房,提升了業主的品味。設計說明本案圍繞歐式風格為主題,歐式風格以復雜的腳線豐富的圖案,形成沒美輪美奐的結構,歐式的居室有的不只是豪華大氣,更多的是愜意和浪漫。通過完美的典線,精益求精的細節處理,帶給家人不盡的舒服觸感,實際上和諧是歐式風格的最高境界。歐式風格的家居宜選用現代感強烈的家具組合,特點是簡單、抽象、明快、現代感強,組合家具的顏色選用白色或流行色,配上合適的燈光及現代化的電器,比如音像器材,就仿佛為主人編織了一個明快美麗的夢想。在歐式風格的家居空間里,燈飾設計應選擇具有西方風情的造型,比如壁燈,在整體明快、簡約、單純的房屋空間里,傳承著西方文化底蘊的壁燈靜靜泛著朦朧的燈光,浪漫之感油然而生。 客廳是門面,也是最能代表房子裝修好壞的依據。目前大多數家庭入戶進來首先看到的是客廳,那么怎樣才能讓人一眼看去就感覺舒適呢?
歐式風格的家居宜選用現代感強烈的家具組合,特點是簡單、抽象、明快、現代感強,組合家具的顏色選用白色或流行色,配上合適的燈光及現代化的電器,比如音像器材,就仿佛為主人編織了一個明快美麗的夢想。 無論家居面積大小,臥室總是不能忽略的一個場所。裝修時,有些小細節稍不注意,就可能影響到每天的睡眠質量和生活狀態,所以,臥室裝修是重中之重!
在歐式風格的家居空間里,燈飾設計應選擇具有西方風情的造型,比如壁燈,在整體明快、簡約、單純的房屋空間里,傳承著西方文化底蘊的壁燈靜靜泛著朦朧的燈光,浪漫之感油然而生。 衛生間的面積雖然比較小,但卻是整個家居空間中十分重要的部分。衛生間裝修不僅要保證基本的生活需求,還要確保舒適和安全。
在歐式風格的家居空間里,燈飾設計應選擇具有西方風情的造型,比如壁燈,在整體明快、簡約、單純的房屋空間里,傳承著西方文化底蘊的壁燈靜靜泛著朦朧的燈光,浪漫之感油然而生。 餐廳是一家人享受美妙用餐時光的重要場所,好的設計能讓用餐氛圍更加溫馨,讓享用美食也成為一種無上的樂趣,而每一種風格的餐廳,都顯示出其主人的不同品味與性格。
歐式風格的家居宜選用現代感強烈的家具組合,特點是簡單、抽象、明快、現代感強,組合家具的顏色選用白色或流行色,配上合適的燈光及現代化的電器,比如音像器材,就仿佛為主人編織了一個明快美麗的夢想。 一個寬敞明亮的廚房會給人帶來好心情。有多種辦法來提高廚房的空間感:比如墻壁和柜面選用大面積舒適的淺色調,做大量好用的柜子和架子,使廚房物件色調搭配盡量和諧,點綴綠色植物,開鑿大窗或者安裝燈具來提升廚房的整體亮度。
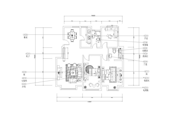
在歐式風格的家居空間里,燈飾設計應選擇具有西方風情的造型,比如壁燈,在整體明快、簡約、單純的房屋空間里,傳承著西方文化底蘊的壁燈靜靜泛著朦朧的燈光,浪漫之感油然而生。 以下就是本套龍灣城小區160平米三居室房子的戶型圖。
考慮業主為三口之家,富裕的一個臥室設計為書房,提升了業主的品味。 以上龍灣城小區160平米的歐美風情設計案例是你喜歡的嗎?一般來說,160平米的房子適合裝修成三居室,歐美風情風格會高端大氣一點,喜歡的朋友可以借鑒本案例的設計風格。另外,提醒大家要合理規劃功能區,最大限度的擴大房屋的使用面積,滿足家人的生活習慣。 轉載請注明出自別墅設計網:http://www.bjcyqiyejia.com/ 千套別墅設計帶別墅圖片 |
二層新中式別墅設計施工圖,廚房在配房,占地140平米
占地:141平方米
農村一層半房屋設計圖,帶外觀效果圖,外觀時尚
占地:155平方米
新農村自建20萬二層小樓外觀圖及戶型圖,簡單大方,漂亮接地氣
占地:130平方米
300平大戶型豪華三層別墅設計圖,帶總統套房
占地:300平方米
160平方米左右二層自建別墅設計圖,對稱設計,23萬建好
占地:157平方米左右
135平三層農村樓房設計圖及效果圖,造價20萬左右
占地:135平方米
100平客廳挑高三層樓房設計圖,復式結構
占地:100平方米
簡單實用農村自建房五間一層別墅設計圖,多款戶型
占地:多戶型可選
95平米二層別墅必蓋戶型圖,造型洋氣,布局接地氣,趕緊回村建
占地:95.38平方米
110平米一層小別墅設計方案,布局四室兩廳一廚兩衛
占地:110.5平方米
3款挑空客廳的二層小樓房設計圖,款款漂亮
閱讀次數:48516次
立邦油漆哪個系列好?小編一一對比分析
閱讀次數:31501次
2024十大環保油漆,中國十大環保油漆排名榜
閱讀次數:11505次
手上的油漆怎么洗-快速洗掉油漆小竅門
閱讀次數:7981次
無味油漆到底對人有沒有害?真實曝光
閱讀次數:7922次
8款不同風格樓梯設計效果圖,我最喜歡第8款
閱讀次數:7024次
立邦油漆價格表,立邦油漆一般多少錢一桶?
閱讀次數:6809次
為大家分享一套兩層農村自建房裝修案例,15萬搞定裝修
閱讀次數:6111次
2024年紫荊花油漆價格一般是多少錢一桶?品牌怎么樣
閱讀次數:6012次
嘉寶莉油漆價格一般是多少錢一桶?
閱讀次數:5765次
