圖紙介紹:150平方米農村二層房屋設施工計圖紙及外觀圖片,棕灰色外墻磚作別墅一層的外部材料,穩重古樸,體現鄉村田園感;白色大理石真石漆鋪設二層外墻,做成仿磚結構,使得立面更顯干凈規整,溫馨又雅致;深灰色琉璃瓦搭配白色墻面,整體配色較為淡雅,外觀上看清新自然,符合現代人的審美要求
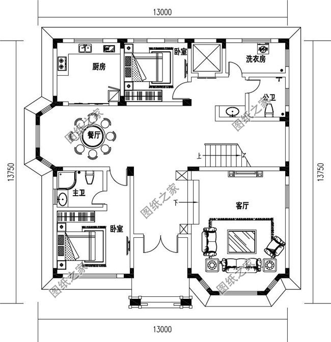
占地面積:13.0m*13.75m,153平方米左右;
建筑層高:二層;
建筑高度:10.96米(含屋頂);
設計功能:
一層戶型:客廳、廚房、餐廳、臥室(帶衛生間)、臥室、洗衣房、衛生間;
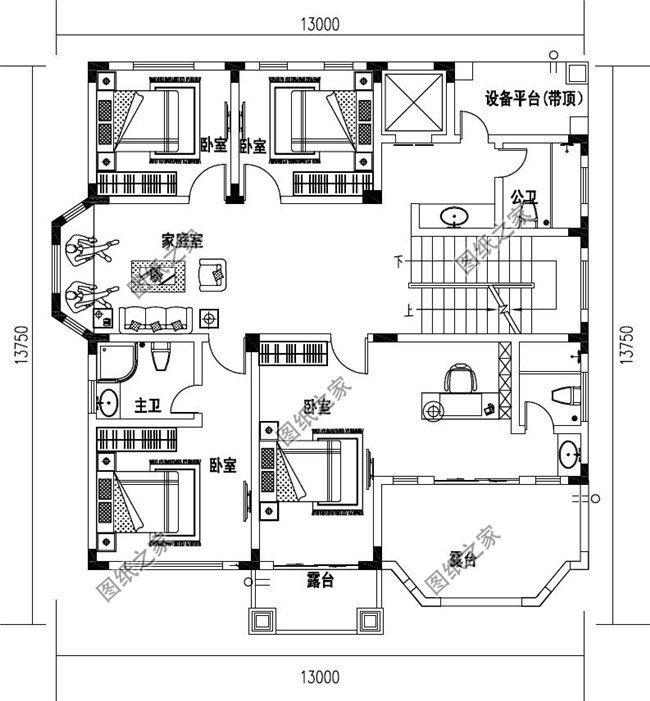
二層戶型:家庭室、臥室(帶衛生間)、臥室(帶書房衛生間)、臥室x2、衛生間、露臺;
圖紙目錄:
建 筑 圖:建筑設計說明、一層平面圖、二層平面圖、屋頂平面圖、正立面圖、背立面圖、左立面圖、右立面圖、1-1剖面圖、樓梯大樣圖、門斗大樣圖、節點大樣圖、門窗詳圖、門窗表等;
結 構 圖:結構設計說明、基礎平面布置圖、基礎大樣圖、一層梁結構平面圖、二層梁結構平面圖、屋頂梁結構平面圖、二層板結構平面圖、屋面板結構平面圖、樓梯大樣圖、節點大樣圖等;
給排水圖:給排水設計說明、一層給排水平面圖、二層給排水平面圖、屋頂給排水平面圖、衛生間大樣圖、給排水系統圖等;
電 氣 圖:電氣設計說明、配電系統圖、弱電系統圖、配電干線系統圖、一層照明平面圖、二層照明平面圖、一層插座平面圖、二層插座平面圖、一層弱電平面圖、二層弱電平面圖、接地平面圖、屋頂防雷平面圖等;
本套方案包含全套A3設計圖+彩色效果圖。



































































































