圖紙介紹:農村帶配房二層樓效果圖方案,最接地氣的鄉村別墅,看著就喜歡,別墅整體建筑風格選用偏中式的設計,整棟別墅無不彰顯典雅端莊氣質!符合國人的審美設計住在這里面能讓你的每天心情舒暢。別墅色彩上采用淡雅的黃色貼磚搭配底部的文化石以及紅色面瓦的屋頂格外氣派。進屋該別墅屋內布局也是非常講究,巧妙地布局使得屋內流通性極強,不顯擁擠每個功能區域分配得恰到好處,起居方便,入戶大堂屋能在此招待親朋好友。
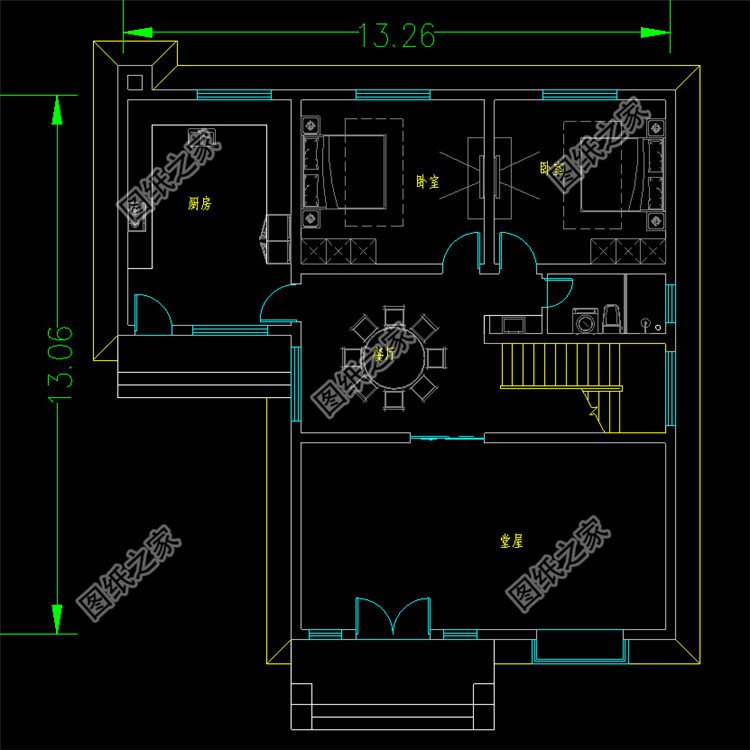
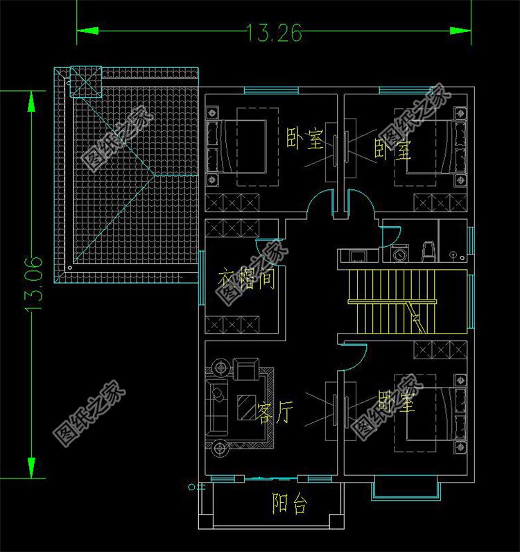
占地面積:13.26m*13.06m,149.14平方米;
建筑層高:二層;
建筑高度:9.485米(含屋頂);
設計功能:
一層戶型:客廳、廚房、餐廳、臥室x2、衛生間;
二層戶型:臥室(帶書房)、茶室、臥室x2、衛生間、露臺、陽臺;
圖紙目錄:
建 筑 圖:建筑設計說明、一層平面圖、二層平面圖、屋頂平面圖、正立面圖、背立面圖、左立面圖、右立面圖、1-1剖面圖、樓梯大樣圖、門斗大樣圖、節點大樣圖、門窗詳圖、門窗表等;
結 構 圖:結構設計說明、基礎平面布置圖、基礎大樣圖、一層梁結構平面圖、二層梁結構平面圖、屋頂梁結構平面圖、二層板結構平面圖、屋面板結構平面圖、樓梯大樣圖、節點大樣圖等;
給排水圖:給排水設計說明、一層給排水平面圖、二層給排水平面圖、屋頂給排水平面圖、衛生間大樣圖、給排水系統圖等;
電 氣 圖:電氣設計說明、配電系統圖、弱電系統圖、配電干線系統圖、一層照明平面圖、二層照明平面圖、一層插座平面圖、二層插座平面圖、一層弱電平面圖、二層弱電平面圖、接地平面圖、屋頂防雷平面圖等;
本套方案包含全套A3設計圖+彩色效果圖。
































































































