圖紙介紹:帶院子的兩層小別墅這樣建,全家老小都喜歡,別墅整體為歐式風格,設計簡潔大氣。一層院門處配置古樸的鐵藝門。外墻面使用磚紅米白雙色設計,上層為磚紅色真石漆,下層為米黃色的真石漆。屋頂為藍色,整體感覺端莊大氣。屋檐采用歐式線條,線條的流動中淋漓盡致地體現了歐式古典、高雅的裝飾風格。
占地面積:13.31m*10.98m,121.79平方米;
建筑層高:二層;
建筑高度:9.65米(含屋頂);
設計功能:
一層戶型:客廳、廚房、餐廳、臥室(帶衛生間)、臥室、衛生間;
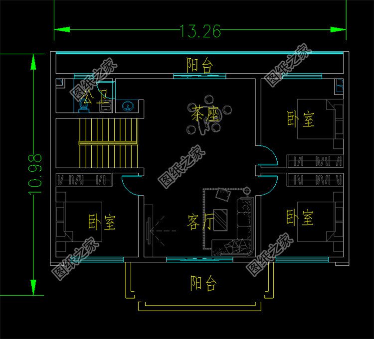
二層戶型:客廳、茶座、臥室x3、衛生間、陽臺;
圖紙目錄:
建 筑 圖:建筑設計說明、一層平面圖、二層平面圖、屋頂平面圖、正立面圖、背立面圖、左立面圖、右立面圖、1-1剖面圖、樓梯大樣圖、門斗大樣圖、節點大樣圖、門窗詳圖、門窗表等;
結 構 圖:結構設計說明、基礎平面布置圖、基礎大樣圖、一層梁結構平面圖、二層梁結構平面圖、屋頂梁結構平面圖、二層板結構平面圖、屋面板結構平面圖、樓梯大樣圖、節點大樣圖等;
給排水圖:給排水設計說明、一層給排水平面圖、二層給排水平面圖、屋頂給排水平面圖、衛生間大樣圖、給排水系統圖等;
電 氣 圖:電氣設計說明、配電系統圖、弱電系統圖、配電干線系統圖、一層照明平面圖、二層照明平面圖、一層插座平面圖、二層插座平面圖、一層弱電平面圖、二層弱電平面圖、接地平面圖、屋頂防雷平面圖等;
本套方案包含全套A3設計圖+彩色效果圖。































































































