圖紙介紹:本戶型為氣派美觀的平頂別墅設計方案,簡歐風格,二層到樓頂設有樓梯,樓頂上有涼亭、活動房、露臺等。
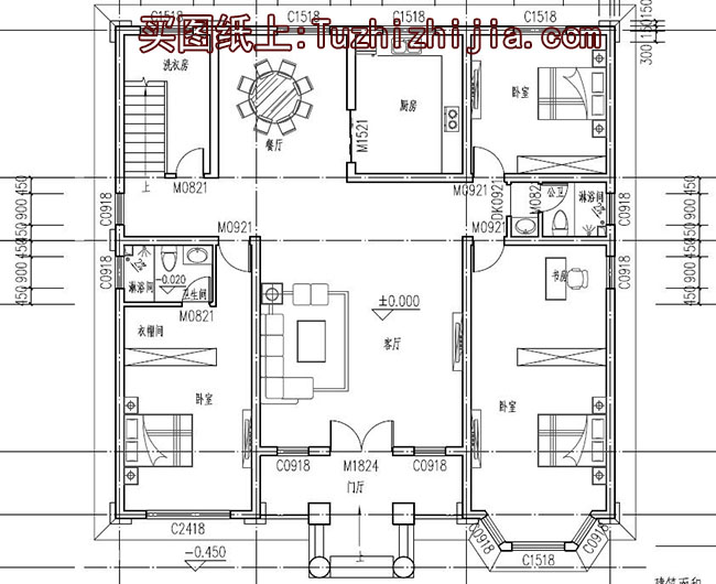
占地面積:14.0m*13.8m,190平方米左右;
建筑層高:二層;
建筑高度:9.60米(含屋頂);
設計功能:
一層:門廳、客廳、廚房、餐廳、臥室(含衛生間、衣帽間)、臥室x2、書房、衛生間、洗衣房(儲物間);
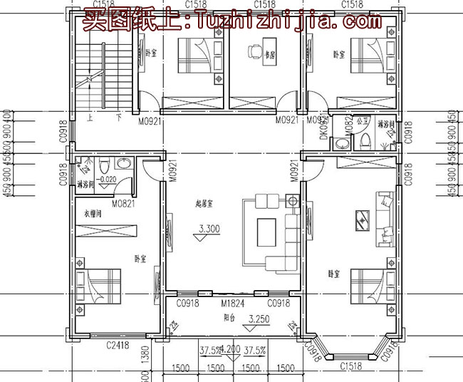
二層:起居室(客廳)、臥室(帶衣帽間和衛生間)、臥室x3、書房、衛生間、陽臺;
三層:涼亭、露臺、活動室。
圖紙目錄:
建筑設計圖:建筑設計封面、圖紙目錄、建筑設計說明、場地示意圖、一層平面圖、二層平面圖、三層平面圖、屋頂層平面圖、1-4軸立面圖、4-1軸立面圖、A-E軸立面圖、E-A軸立面圖、樓梯詳圖、門頭詳圖、效果圖;
電氣設計圖:電氣設計封面、圖紙目錄、電氣設計說明、配電系統圖、一層插座平面圖、二層插座平面圖、一層照明平面圖、二層照明平面圖、三層照明平面圖、一層弱電平面圖、二層弱電平面圖、地基接地平面圖、三層露臺防雷平面圖、屋頂防雷平面圖;
給排水設計圖:給排水設計封面、圖紙目錄、給排水設計說明、雨、污、熱水、給水系統原理圖、一層給排水平面圖、二層給排水平面圖、三層給排水圖、屋頂給排水平面圖。



































































































