圖紙介紹:本戶型為130平帶閣樓兩層半別墅房屋設計圖,含外觀效果圖,配色樸素但不失美觀,戶型經典,總占地面積小于130平。
占地面積:10.20m*12.90m,130平方米左右;
建筑層高:二層半(帶閣樓);
建筑高度:9.54米(含屋頂);
設計功能:
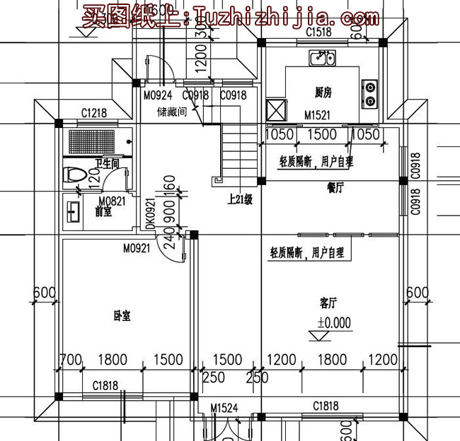
一 層:客廳、餐廳、廚房、臥室、衛生間、儲物間;
二 層:主臥(帶衛生間和衣帽間)、臥室x2、衛生間、小露臺;
閣 樓:閣樓層戶型自定義
圖紙目錄:
建 筑 圖:建筑設計說明、工程構造做法表、一層平面圖、二層平面圖、閣樓平面圖、屋頂平面圖、正立面圖、背立面圖、左立面圖、右立面圖、剖面圖、樓梯大樣圖、門窗詳圖、節點大樣圖、門頭大樣圖等;
結 構 圖:結構設計說明、基礎平面圖、基礎詳圖、一層結構平面圖、二層結構平面圖、頂層結構平面圖、一層梁結構平面圖、二層梁結構平面圖、頂層梁結構平面圖、圈梁布置圖、樓梯詳圖等;
給排水圖:給排水設計說明、一層給排水平面圖、二層給排水平面圖、屋頂給排水平面圖、給排水系統圖等;
電 氣 圖:電氣設計說明、配電系統圖、等電位示意圖、一層照明平面圖、二層照明平面圖、閣樓插座平面圖、一層插座平面圖、二層插座平面圖、閣樓插座平面圖、一層弱電平面圖、二層弱電平面圖等;
全套A3設計圖+高清效果圖,拿到即可施工。



































































































