
|
雙拼戶型通常占地比較大,畢竟要做雙戶合并,兩邊各住一家,這種戶型對稱大氣,今天要給大家分享的這款17×9米三層兄弟戶雙拼別墅設計圖,設有雙落地大窗戶,三層正中的拱形玻璃門設計獨特時尚,有露臺,雙涼亭,左右兩邊還設有外挑的陽臺,造型美觀大氣。
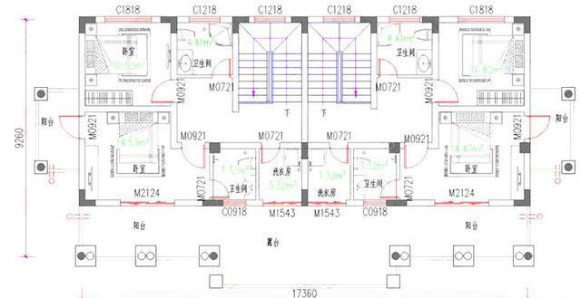
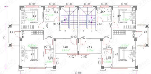
本套三層雙拼別墅設計圖開間進深17.36米×9.26米,采用框架結構,首層占地面積152.67㎡,總建筑面積435.58㎡,主體造價大概45萬,單戶一層設有2廳1臥1廚1衛,二層設有2臥2衛1陽臺1小房間,三層設有2臥2衛1陽臺1露臺1洗衣房。 室內布局平面圖展示(以單戶為例)
一層:餐廳、客廳、臥室、廚房、衛生間
二層:主臥(帶陽臺、衛生間)、臥室、小房間、公衛
三層:臥室(帶雙陽臺、衛生間)、洗衣房(帶露臺)、臥室、公衛 圖紙之家-專注農村別墅/自建房設計18年,集合國內200余位經驗豐富的設計師,被評為口碑最好的農村建筑設計公司! |

高端農村三層歐式房屋設計圖紙,帶車庫,帶露臺
占地:163平方米
不帶廚房餐廳的二層別墅設計圖,農村建房很多人都這樣做
占地:124平方米左右
110平左右二層小洋樓設計圖,含效果圖片
占地:108平方米
兩開間自建別墅設計圖,占地小造型簡約,不愁宅基地面寬小了
占地:118.4平方米
155平方米新三層全套別墅設計資料,15x10米
占地:158平方米
12米×10米左右一層別墅平房戶型圖及設計圖,造價低
占地:110平方米
簡歐漂亮農村二層別墅設計方案圖紙,12米乘9米
占地:多戶型可選
160平方米新農村三層半別墅設計圖11X16米65萬以內
占地:160平方米
雙拼豪華高端三層別墅設計圖,外觀效果圖大氣
占地:300平方米
二層樓房設計圖,占地120平米左右,符合現代農村的建房政策
占地:120平方米
80多平米二層小型自建房設計圖,經濟舒適別具一格
占地:84.48平方米
農村二層半兄弟共建房別墅設計圖,復式戶型帶車庫,面寬24米
占地:312平方米左右
150平方米自建現代二層別墅施工設計圖帶外觀圖,15x10米
占地:多戶型可選
小宅基地自建房設計圖,占地不到90平三層別墅圖紙
占地:87平方米左右
農村三層中式仿古別墅設計圖紙,中國風自建房戶型
占地:158.64平方米
14x12.5米二層農村別墅設計圖,布局完美獨立,顏值高又實用
占地:153.95平方米
11x9三層別墅房屋設計圖,含效果圖片
占地:97平方米
80平方米農村四層房屋設計圖紙及效果圖
占地:80平方米
占地180平豪華三層農村別墅自建房設計圖,歐式與現代相融合
占地:183.706平方米
農村帶車庫兩層歐式農村別墅設計圖紙,占地220平方米左右
占地:221平方米
推薦:10套新農村自建房設計圖,2026年最新設計
閱讀次數:4825737次
100套鄉村別墅圖片大全,2026年最新設計
閱讀次數:2492203次
6款農村蓋一層平房的設計圖,10萬元就能建起來
閱讀次數:1852637次
這11個一層農村自建房別墅火爆了朋友圈!我最喜歡戶型十!你呢
閱讀次數:750268次
農村6萬元建一層小別墅圖,你敢相信嗎
閱讀次數:567686次
農村5萬塊就能自建房,6套普通房子設計圖分享,你沒看錯!
閱讀次數:419410次
8套農村漂亮三間平房圖片,非常適合在農村修建!
閱讀次數:411197次
農村自建房化糞池怎么做?附方案及施工過程
閱讀次數:391783次
農村一層三間平房設計圖,告別土氣養老房,讓人忍不住點贊
閱讀次數:350581次
新農村二層樓房圖片造價12萬,挑一套回家建房吧!
閱讀次數:349126次
