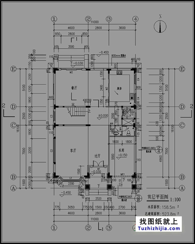
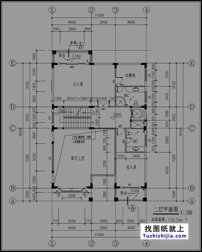
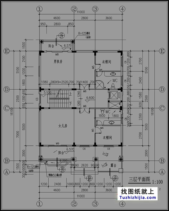
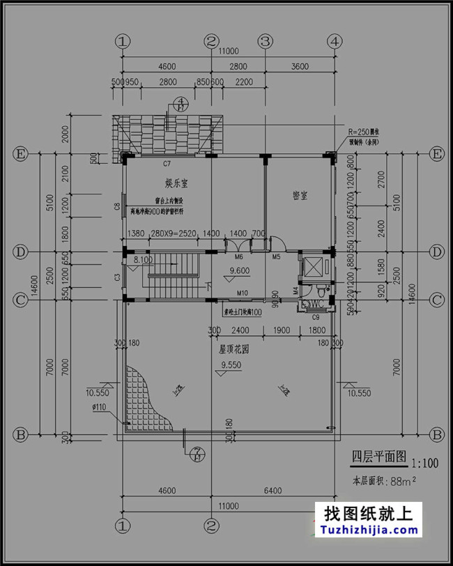
建筑占地面積為:11m*16.1m;
建筑層數:三層半(四層);
建筑高度:14.5m(含屋頂);坡屋頂;
建筑結構:框架結構;
設計功能:
一層:客廳、過廳、車庫、衛生間、餐廳、廚房;
二層:老人房、陽臺、衛生間、客廳上空、主人房、陽臺、衣帽間、衛生間;
三層:露臺、女兒房、陽臺、衣帽間、衛生間、男孩房、陽臺、衣帽間、衛生間;
四層:屋頂花園、娛樂室、密室、衛生間;
圖紙目錄:全套A3設計圖+高清效果圖,拿到即可施工。






建筑占地面積為:11m*16.1m;
建筑層數:三層半(四層);
建筑高度:14.5m(含屋頂);坡屋頂;
建筑結構:框架結構;
設計功能:
一層:客廳、過廳、車庫、衛生間、餐廳、廚房;
二層:老人房、陽臺、衛生間、客廳上空、主人房、陽臺、衣帽間、衛生間;
三層:露臺、女兒房、陽臺、衣帽間、衛生間、男孩房、陽臺、衣帽間、衛生間;
四層:屋頂花園、娛樂室、密室、衛生間;
圖紙目錄:全套A3設計圖+高清效果圖,拿到即可施工。













一、圖紙均為高清藍圖,包含全套設計圖,交給施工隊可直接建造;
二、圖紙每個數據都是環環相扣的,修改工作量大,還容易出錯,不支持修改服務;
三、如果您對圖紙的尺寸、戶型不滿意,我們可以按您的要求進行定制;
四、圖紙通俗易懂,只需按圖施工即可1比1還原效果圖,我們還提供在線指導服務。
農村三間三層半別墅設計圖,舒適寬敞時尚經濟,居住生活方便舒
造價:53萬
四層自建別墅設計圖,有車庫帶露臺,時尚大氣給你一個五星級的
造價:53萬
最火現代風三層半別墅設計圖,時尚簡約寬敞舒適
造價:48萬
面寬8米兩開間四層歐式風別墅,布局實用,小占地大精彩!
造價:28萬
占地80平四層平頂別墅設計圖,現代風房子效果圖
造價:34萬
高端大氣的農村四層樓房別墅設計圖,戶型真不錯,占地130多平
造價:43萬
帶框架層的四層別墅設計圖,框架層功能布局很多,很實用
造價:65萬
四層巴洛克別墅設計圖,旋轉樓梯搭配超大挑空客廳,很有氣勢
造價:38萬
現代風平屋頂三層半農村小別墅設計圖,面寬僅7米
造價:31~35萬
復式別墅農村四層霸氣豪宅設計圖紙,建好你就是村里第一
造價:49萬
鄉村別墅現代風平屋頂四層自建房設計圖,簡約時尚
造價:46萬
四層農村別墅設計圖,一二層都有廚房和餐廳的戶型方案
造價:47萬
帶商鋪的四層自建別墅設計圖紙(一層商鋪二三四住宅)
造價:46萬
兩開間四層帶商鋪自建房屋設計圖紙及效果圖
造價:76萬
最新高端四層別墅外觀效果圖及全套設計圖,真土豪就這樣建
造價:56萬
農村四層樓房設計圖及外觀效果圖,造價60萬左右
造價:58萬
農村三層半自建房子效果圖及設計圖,戶型占地90平方米左右
造價:34萬
四層別墅豪宅外觀效果圖及全套施工圖,高端歐式風格
造價:60萬
鄉村高檔四層別墅樓設計圖,二三層復式挑空客廳
造價:42萬
高端大氣三層半別墅客廳挑空設計,豪華農村自建房圖
造價:50萬
鄉墅建房三層半別墅設計圖紙,農村四層豪宅戶型方案圖
造價:55萬
四層新農村復式別墅自建房設計圖,外觀對稱設計,旋轉樓梯
造價:48萬
小面寬的農村簡單四層2建平屋頂別墅設計圖,農村自建房首選
造價:39萬
農村大氣四層樓房圖片及全套設計圖紙,復式客廳旋轉樓梯
造價:38萬
新農村小戶型4層自建房三層半別墅設計圖,平屋頂設計
造價:30萬
鄉村高檔四層豪華別墅自建房設計圖,一層不帶餐廳廚房戶型
造價:50萬左右
簡歐式三層半(4層)農村自建房別墅設計圖效果圖,帶車庫戶型
造價:40萬
12X14米四層農村自建別墅設計圖,功能設計豐富齊全
造價:44萬左右
新款農村四層復式別墅設計圖紙及效果圖,外立面清新別致
造價:40萬
四層(三層半)復式別墅設計圖片大全,歐式風格
造價:46萬
高端大氣四層復式別墅房屋設計圖,含外觀效果圖
造價:70~80萬
95平方米農村四層房屋設計圖,8米X11米 ,預算37萬
造價:37~41萬
8.5×12米四層歐式房屋設計圖紙,占地100平,落地窗中嵌入了雕花
造價:35萬-40萬
四層簡單新農村房屋設計圖紙,造價低,適合農村自建
造價:50萬左右
農村四層樓房設計圖,含外觀圖片,自建四層房屋推薦
造價:50~56萬
帶電梯高端四層別墅房屋設計圖,外觀圖大氣、上檔次
造價:100萬左右
四層(三層半)豪華歐式別墅房屋設計圖,外觀高端、大氣
造價:56~64萬
現代新中式四層復式別墅房屋設計圖,旋轉樓梯,含效果圖
造價:55萬左右
260平方米歐式四層別墅設計圖20X18米,造價108萬
造價:105~108萬
140平方米新農村四層房屋設計圖紙,農村自建推薦
造價:45萬左右
新農村四層獨棟復式別墅設計圖,設計豪華時尚
造價:50萬左右
三層半復式別墅設計方案,全套設計圖+效果圖
造價:48~55萬
古典韻味的四層房屋設計圖,占地140平米左右,這樣的外觀配上紅
造價:45萬-50萬
120平方米新農村四層房屋設計圖紙和效果圖
造價:41~43萬
大氣豪華四層別墅設計圖紙,占地180平米左右
造價:60萬
90平小戶型四層房屋設計圖,農村自建別墅推薦
造價:30萬左右
小平米四層自建房屋設計圖紙,戶型簡單實用,占地80平方米
造價:30萬-35萬
農村四層樓房設計圖,占地120平方米,歐式風格,高端大氣
造價:40萬-45萬
農村四層復式房屋設計圖紙,占地105平方米預算35萬左右
造價:34~38萬
簡單實用的四層農村自建房屋設計圖,占地100平米左右
造價:40萬-45萬
300平四層別墅房屋設計圖,含外觀效果圖,大面積、多臥室
造價:100萬左右
農村三間四層樓房設計圖,農村輕奢型四層別墅
造價:50萬左右
四層豪華歐式別墅自建樓房設計圖紙,帶效果圖和全套施工圖
造價:60萬
120平方米農村四層別墅施工設計圖紙及效果圖
造價:40萬左右
農村四層樓房設計圖,復式結構、客廳中空,外觀效果圖+全套圖
造價:40萬-45萬
120平方米新農村四層別墅設計圖紙12X10米50萬以內
造價:45萬
一層帶商鋪的四層樓房別墅設計圖紙和效果圖,房屋戶型圖
造價:39萬
現代風平屋頂三層半農村小別墅設計圖,面寬僅7米
造價:31~35萬
2026新款四層樓房設計圖,占地120平方米左右,客廳中空
造價:50萬左右
140平四層復式別墅房屋設計圖,帶外觀效果圖
造價:60萬左右
四層農村別墅設計圖,一二層都有廚房和餐廳的戶型方案
占地:128.52平方米
中式復古四層別墅房屋設計圖紙,含外觀效果圖
占地:90平方米
大氣豪華四層別墅設計圖紙,占地180平米左右
占地:180平方米
120平方米農村四層別墅設計圖,含全套施工圖
占地:120平方米
農村四層復式房屋設計圖紙,占地105平方米預算35萬左右
占地:105平方米
簡歐復式四層別墅房屋設計圖,外觀圖高端、大氣
占地:143平方米
帶車庫四層別墅外觀效果圖及設計圖紙,戶型方正通透
占地:115平方米
鄉村別墅現代風平屋頂四層自建房設計圖,簡約時尚
占地:144.7平方米
四層豪華歐式別墅自建樓房設計圖紙,帶效果圖和全套施工圖
占地:300平方米
復式別墅農村四層霸氣豪宅設計圖紙,建好你就是村里第一
占地:136.356平方米
農村四層樓房設計圖,含外觀圖片,自建四層房屋推薦
占地:140平方米
占地90平米四層超現代風別墅設計圖,享受高品質生活
占地:3.76平方米
2026新款四層樓房設計圖,占地120平方米左右,客廳中空
占地:120平方米
140平方米新農村四層房屋設計圖紙,農村自建推薦
占地:140平方米
歐式四層(三層半)獨棟別墅設計圖復式,設計豪華時尚
占地:194平方米
四層復式別墅設計方案,外觀氣派布局實用,舒適宜居美極了!
占地:204.64平方米
120平方米新農村四層別墅設計圖紙12X10米50萬以內
占地:120平方米
新農村小戶型4層自建房三層半別墅設計圖,平屋頂設計
占地:95平方米
最火現代風三層半別墅設計圖,時尚簡約寬敞舒適
占地:169平方米
四層豪華別墅設計圖及效果圖,高端房屋設計方案
占地:250平方米
