
|
世上每一事物都擁有自己的獨特之處,今天要給大家分享的這款12×11米二層農村建筑設計圖紙,造型上設計十分特別,室內布局也符合現代人的需求,本套建筑圖紙擁有以下設計亮點:
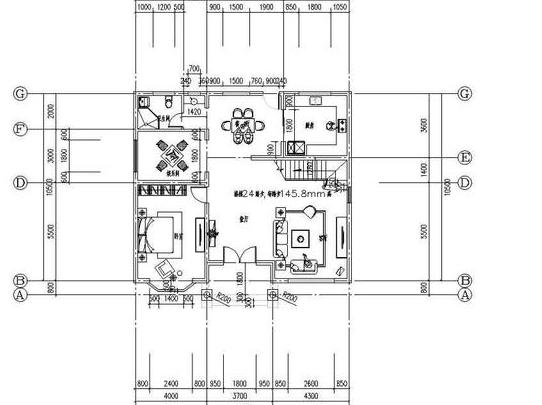
1.厚實的方形白色門柱設計,為大門遮風擋雨,同時還提供了入戶平臺,緩沖室內外,擺放一些綠色盆栽會更美妙。 2.凸窗設計讓外觀更具立體感,讓二樓的露臺形狀更具美感。 3.超大落地窗為挑空客廳增加采光效果,美化裝飾效果不俗。 4.衛生間外設有洗漱區,使用性更強。 5.設有堂廳,與農村風俗符合,方便設立神位。 該戶型開間進深12米×10.5米,占地面積128.7㎡,總建筑面積251.7㎡,建筑高度為9.38米,主體造價大概25萬。 建筑平面圖展示
一層:堂廳、挑空客廳、餐廳、廚房、娛樂間、臥室、公衛、洗漱區
二層:臥室(帶陽臺)、臥室×2、書房、多人式衣帽間、公衛、洗漱區 圖紙之家-專注農村別墅/自建房設計18年,集合國內200余位經驗豐富的設計師,被評為口碑最好的農村建筑設計公司! |

農村二層中式三合院設計圖,這才是國人該建的房子
占地:175.58平方米
適合7字型宅基地蓋的一層別墅,中式風格設計
占地:163平方米
180平方米新農村自建二層小別墅設計圖及效果圖,15X13米
占地:183平方米
二層復式農村別墅設計圖,進深12米,戶型堪稱完美
占地:193.2平方米
110平左右二層小洋樓設計圖,含效果圖片
占地:108平方米
190平方米新農村三層(二層半)雙拼房屋設計圖紙,兄弟合建
占地:192平方米左右
兄弟三層雙拼房屋設計圖,帶效果圖,戶型好
占地:256平方米
80平方米鄉村一層半帶閣樓自建別墅設計圖,帶車庫
占地:80平方米
120平方房子設計圖及外觀圖片,12x10經典設計
占地:120平方米
最新農村三層樓房設計圖紙,客廳中空,采用暖黃色為主色
占地:160平方米
經典簡約三層農村自建房設計圖,功能實用簡單大氣,比城里鴿子
占地:144平方米
四層雙拼豪華別墅設計圖及外觀效果圖,貴族氣質爆棚
占地:188.5平方米
戶型獨特的、二層臥室挑高的別墅房屋設計圖,外觀簡歐風格
占地:250平方米
新農村私人別墅建筑設計施工圖,全套別墅設計圖紙
占地:多種戶型
預算10萬的簡單二層半別墅房屋設計圖,外觀簡單,造價低
占地:90平方米
巴洛克風格別墅設計圖紙及效果圖,農村建一棟想低調都難
占地:256平方米左右
面寬11米現代風二層小別墅,平屋頂設計,緊跟潮流時尚前衛
占地:94.43平方米
三層農村自建別墅設計圖紙及效果圖,占地110平米,外觀精致又大
占地:110平方米
占地90平米四層超現代風別墅設計圖,享受高品質生活
占地:3.76平方米
兄弟共建一層雙拼平房設計圖,省錢省心又可相互照應
占地:177.27平方米
推薦:10套新農村自建房設計圖,2026年最新設計
閱讀次數:4825737次
100套鄉村別墅圖片大全,2026年最新設計
閱讀次數:2492203次
6款農村蓋一層平房的設計圖,10萬元就能建起來
閱讀次數:1852637次
這11個一層農村自建房別墅火爆了朋友圈!我最喜歡戶型十!你呢
閱讀次數:750268次
農村6萬元建一層小別墅圖,你敢相信嗎
閱讀次數:567686次
農村5萬塊就能自建房,6套普通房子設計圖分享,你沒看錯!
閱讀次數:419410次
8套農村漂亮三間平房圖片,非常適合在農村修建!
閱讀次數:411197次
農村自建房化糞池怎么做?附方案及施工過程
閱讀次數:391783次
農村一層三間平房設計圖,告別土氣養老房,讓人忍不住點贊
閱讀次數:350581次
新農村二層樓房圖片造價12萬,挑一套回家建房吧!
閱讀次數:349126次
