
|
放眼綠色,參天古樹,燦燦白沙,鳥語花香,讓久居城市的您心靈回歸自然,盡享大自然的美好,通過農村自建房,讓中式建筑以一種更純粹、更自然、更現代、更具生命力的品相展現在我們面前!
回農村蓋房,著一方小院,開啟悠閑的慢生活。
下面介紹一棟徽派中式含有院子的別墅
青灰瓦頂、灰白院墻、網格窗欞、高挑檐角,更有石、水、樹的搭配,最為典型的江南園林風格。
別墅的里面效果圖,有外花園和內庭院。
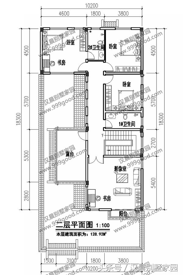
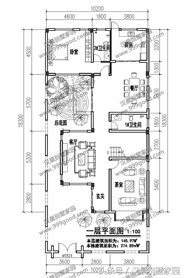
平面效果圖
下沉式庭院、可變空間、錯層分區和共享空間等設計手法在加強戶型與周邊環境的融合和對話上大大提高房子的性價比
布局上不會很冗雜,居住起來滿眼都是生機勃勃的綠意,居住環境完美! 圖紙之家-專注農村別墅/自建房設計18年,集合國內200余位經驗豐富的設計師,被評為口碑最好的農村建筑設計公司! |

頂配三拼三層別墅設計,獨立入戶+共享庭院,兄弟三家共享奢華
占地:367.44平方米
中國最美的四合院別墅設計圖方案,復式挑空客廳戶型
占地:343.57平方米
190平方米新農村三層(二層半)雙拼房屋設計圖紙,兄弟合建
占地:192平方米左右
2026年新款別墅外觀圖及全套施工圖紙,占地面積13×10米
占地:130平方米
對稱型歐式別墅設計圖,穩重實用,開間18米,適合全國農村建
占地:228.2 平方米
新農村二層帶庭院的小別墅設計圖及效果圖
占地:137平方米
兩層中式三合院別墅設計圖紙,堂屋套臥全都有,蓋一棟面子十足
占地:181.93平方米
320平方米高端農村帶車庫四合院別墅設計圖,徽派韻味十足
占地:320.89平方米
農村一層中式三合院太香了!白墻黛瓦,有院有景超宜居
占地:364.72平方米
自建三層小洋樓設計圖紙,含效果圖,帶車庫
占地:121平方米
三層平頂現代風格,農村自建房設計圖,可帶電梯,百看不厭
占地:259.55平方米
極簡大氣二層別墅設計圖,15米面寬,簡約大氣,年輕人的最愛!
占地:150平方米
150平方米的新農村自建三層小別墅設計施工圖紙及效果圖
占地:150平方米
三層帶車庫農村別墅設計圖紙(含外觀效果圖)
占地:147.7平方米
新款三層豪華大氣歐式別墅設計圖,3種戶型設計方案
占地:125平方米左右
125平自建房設計圖二層戶型,建房選這款準沒錯
占地:124.04平方米
160平方米新農村自建二層樓房設計圖紙及效果圖,15x11米
占地:160平方米
新中式風格二層住宅設計圖,農村自建房不土氣
占地:144.5平方米
新中式二層農村住宅設計圖,戶型方正,主體造價21萬
占地:135.81平方米
兄弟共建一層雙拼平房設計圖,省錢省心又可相互照應
占地:177.27平方米
推薦:10套新農村自建房設計圖,2026年最新設計
閱讀次數:4825737次
100套鄉村別墅圖片大全,2026年最新設計
閱讀次數:2492203次
6款農村蓋一層平房的設計圖,10萬元就能建起來
閱讀次數:1852637次
這11個一層農村自建房別墅火爆了朋友圈!我最喜歡戶型十!你呢
閱讀次數:750268次
農村6萬元建一層小別墅圖,你敢相信嗎
閱讀次數:567686次
農村5萬塊就能自建房,6套普通房子設計圖分享,你沒看錯!
閱讀次數:419410次
8套農村漂亮三間平房圖片,非常適合在農村修建!
閱讀次數:411197次
農村自建房化糞池怎么做?附方案及施工過程
閱讀次數:391783次
農村一層三間平房設計圖,告別土氣養老房,讓人忍不住點贊
閱讀次數:350581次
新農村二層樓房圖片造價12萬,挑一套回家建房吧!
閱讀次數:349126次
