
|
三層別墅現在是農村自建房的主流結構,所以不管是建筑造型、內部功能,都要經得住時間和生活的考驗,從外部的露臺到內部的堂屋、挑空結構和臥室數量,一切都要以實用為主。本期我們推薦兩款此類型的三層別墅,有建房需求的可以參考一下。 第一套:
簡潔外觀的三層別墅,建筑造型別致,層次分明,陽臺、露臺錯層設計,落地大窗非常顯眼,門廳設計時尚霸氣,窗型設計很有特點。建筑設計尺寸:開間11.1米,進深12.3米,建筑占地137.8平米,總建筑面積41.2平米。
建筑入戶設是堂屋和復式客廳,設兩間臥室和廚房、餐廳、公衛;二層設起居室、棋牌室和兩間臥室,三層設室內健身房和兩間臥室,另有獨立書房和室外露臺;6間臥室中陽面三間均為套房,上下結構一致,功能區劃分明,布局堪稱完美。 第二套
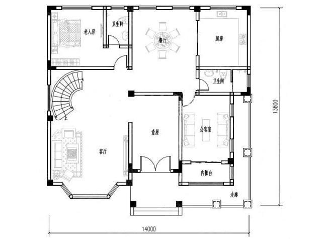
同樣是三層設計方案,建筑外觀造型和占地都比第一套有大的提高,門廳更加的高聳大氣,門外設走廊,轉角設計更加美觀,而且上下對應設計,多處小露臺加一處大露臺,室外活動空間十分充足,落地大窗八角形設計更加的美觀。建筑設計尺寸:開間14米,進深13.8米,建筑占地196.6平米,總建筑面積434.8平米。
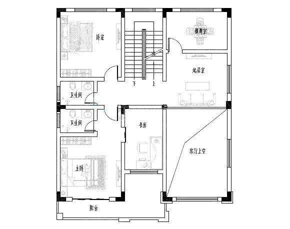
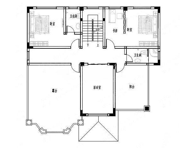
建筑入戶設堂屋,左側是復式客廳加旋轉樓梯,右側設帶內陽臺的會客廳,豪華待客區非常罕見,套房、餐廳和廚房依次分布;二層設帶陽臺的小客廳和三間臥室,陽面設主臥,帶衛生間和轉角露臺,另有嵌套式書房;三層設兩間臥室和室內活動室,東西兩側設兩處活動平臺。 兩款設計方案,均采用框架結構建成,建筑結構簡單,六間臥室、三間套房,帶堂屋,建筑外觀一款簡潔,一款豪華,你心動了嗎? 三層復式客廳的自建別墅,帶堂屋和六間臥室很實用 圖紙之家-專注農村別墅/自建房設計18年,集合國內200余位經驗豐富的設計師,被評為口碑最好的農村建筑設計公司! |

15×10米農村二層四合院自建房戶型圖,小型四合院設計圖
占地:150平方米
180平方米漂亮大氣三層雙拼別墅設計圖,自建房圖片
占地:186平方米
16x14米三層雙拼別墅設計圖,外觀精致大氣內里實用,兄弟建房上
占地:217.28平方米
最美農村一層合院設計圖紙,自建一棟火遍十里八鄉
占地:190平方米左右
簡歐式三層半(4層)農村自建房別墅設計圖效果圖,帶車庫戶型
占地:127平方米
新式160平方米農村三層樓房設計圖,客廳中空
占地:160平方米
160平方米歐式一層半別墅施工設計圖紙13X13米
占地:160平方米
新式三層別墅設計圖,客廳中空,占地125平米左右
占地:125平米
帶閣樓的一層半平房設計圖,比樓房還舒適,12米×13米
占地:170.1平方米
農村二層四合院設計圖,秒殺各種洋別墅
占地:220平方米
可以傳家的新中式二層別墅,經典耐看,再過幾十年也不過時
占地:146.81平方米
120平米簡單實用型農村小別墅設計圖,二層屋頂為全露臺,小開間
占地:120平方米
180平方米農村二層別墅四合院建筑設計圖紙
占地:181平方米
樓中樓客廳挑高二層別墅設計圖,復式別墅方案推薦
占地:122平方米
農村25萬別墅款式二層自建房設計圖,外觀簡約大氣
占地:多種戶型
農村現代新中式三合院設計圖及效果圖片,外觀好看極了
占地:多戶型可選
130多平方米新農村三層別墅建筑設計圖及效果圖
占地:133平方米左右
造型對稱的簡約二層別墅設計圖紙,戶型布局好,13x13米5室2廳
占地:151.94平方米
氣派的帶旋轉樓梯三層別墅房屋設計圖,戶型很好
占地:150平方米
鄉村仿古一層別墅圖片及設計圖,經典實用,占地170平
占地:170平方米
推薦:10套新農村自建房設計圖,2026年最新設計
閱讀次數:4825737次
100套鄉村別墅圖片大全,2026年最新設計
閱讀次數:2492203次
6款農村蓋一層平房的設計圖,10萬元就能建起來
閱讀次數:1852637次
這11個一層農村自建房別墅火爆了朋友圈!我最喜歡戶型十!你呢
閱讀次數:750268次
農村6萬元建一層小別墅圖,你敢相信嗎
閱讀次數:567686次
農村5萬塊就能自建房,6套普通房子設計圖分享,你沒看錯!
閱讀次數:419410次
8套農村漂亮三間平房圖片,非常適合在農村修建!
閱讀次數:411197次
農村自建房化糞池怎么做?附方案及施工過程
閱讀次數:391783次
農村一層三間平房設計圖,告別土氣養老房,讓人忍不住點贊
閱讀次數:350581次
新農村二層樓房圖片造價12萬,挑一套回家建房吧!
閱讀次數:349126次
