
|
復式歐式的別墅是農村建房的主潮流,硬朗筆直的線條設計,嚴謹而穩重。入戶式車庫設計和大露臺滿足當代農村生活的需求,下面介紹2款造價40萬復式歐式別墅,顏值美出新高度。 第1款 洋氣的城堡式歐式別墅,外觀亮眼,造型吸睛!
此款別墅造型是非常洋氣的,有點古城堡的即視感。配色方案上也是根據視覺的落差依次遞減,拱形的門窗風復古。
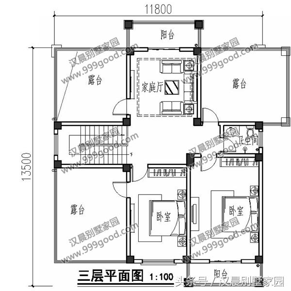
平面功能說明:
二層設計新意,廚房上面做成露臺,方便日后晾曬的需求。
靠陽面有臥室設計,采光的通風的條件滿足居住需求,多露臺開闊視野。
第2款 復式挑空客廳兩層半別墅,氣質款造型,顏值爆表。
外觀說明:低調的外觀,耐看的氣質,通過多變的玻璃窗營造繁復的層次感。
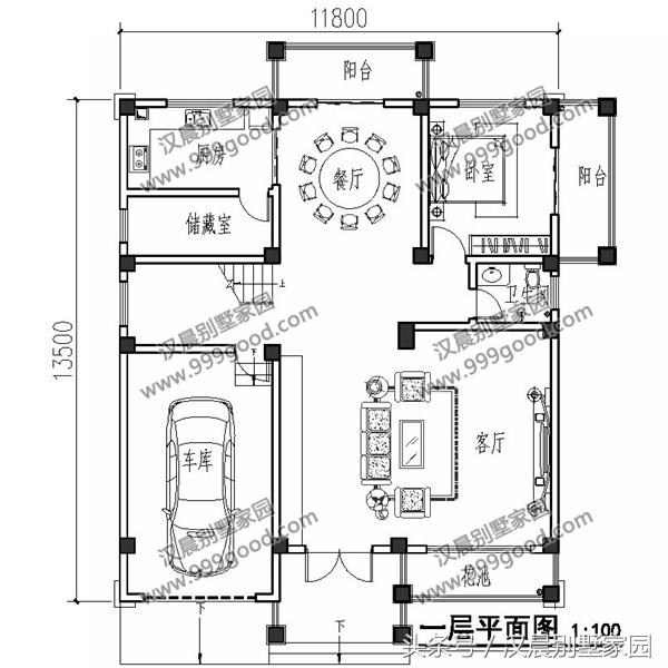
平面功能說明:
復式的設計離不開中空客廳,書房+茶室等功能齊全。
露臺也是蠻大的,根據實際的需求和外觀造型進行了合理的布局。 圖紙之家-專注農村別墅/自建房設計18年,集合國內200余位經驗豐富的設計師,被評為口碑最好的農村建筑設計公司! |

20萬左右農村雙拼別墅住宅設計圖,簡單小戶型設計
占地:120平方米
30萬左右的新農村自建三層別墅施工設計圖紙及效果圖
占地:148平方米
新農村二層客廳挑高樓房設計圖,外觀歐式風格
占地:178平方米
18X12米農村二層溫馨小別墅設計圖,美式風格
占地:203平方米
平頂三層別墅設計方案,簡潔舒適大氣通透,12乘9米,打造理想住
占地:98.21平方米
二層半房子設計圖及效果圖,客廳中空,南北通透
占地:160平方米
2026農村漂亮的一層平房圖片平面圖與全套施工圖紙,戶型周正
占地:150平方米
農村一層平房別墅設計圖紙,130平米左右,主體十幾萬
占地:130平方米左右
小戶型農村三層房屋設計圖,占地120平米,布局非常合理,外表典
占地:120平方米
時尚大氣的三層現代風別墅設計圖,露臺+挑空客廳
占地:321平方米
80平方米二層房屋設計圖,造價10萬左右
占地:80平方米
五開間一層農村平房設計圖,200平米大戶型,五間臥房足夠用了
占地:200.7平方米
鄉村房屋改建三層房屋設計圖紙,農村樓房設計圖推薦
占地:90平方米
7字型一層半農村別墅設計圖,美觀舒適,買了別墅的都會羨慕你
占地:229.14平方米
三層帶地下室+旋轉樓梯別墅設計圖紙,復式挑空客廳
占地:多種戶型
140平歐式二層半帶露臺的獨棟別墅圖片,含全套設計圖
占地:140平方米
最美建筑四合院別墅設計方案,大氣經典,開間19米
占地:168.61平方米
農村10萬元一層小別墅設計圖,農村一層自建房屋設計圖
占地:多種戶型
農村三層復式自建樓房設計圖,外觀圖大氣
占地:130平方米
帶堂屋設計一層三合院設計圖,白墻黛瓦古韻悠悠,比高層舒服接
占地:179.37平方米
推薦:10套新農村自建房設計圖,2026年最新設計
閱讀次數:4825737次
100套鄉村別墅圖片大全,2026年最新設計
閱讀次數:2492203次
6款農村蓋一層平房的設計圖,10萬元就能建起來
閱讀次數:1852637次
這11個一層農村自建房別墅火爆了朋友圈!我最喜歡戶型十!你呢
閱讀次數:750268次
農村6萬元建一層小別墅圖,你敢相信嗎
閱讀次數:567686次
農村5萬塊就能自建房,6套普通房子設計圖分享,你沒看錯!
閱讀次數:419410次
8套農村漂亮三間平房圖片,非常適合在農村修建!
閱讀次數:411197次
農村自建房化糞池怎么做?附方案及施工過程
閱讀次數:391783次
農村一層三間平房設計圖,告別土氣養老房,讓人忍不住點贊
閱讀次數:350581次
新農村二層樓房圖片造價12萬,挑一套回家建房吧!
閱讀次數:349126次
