
|
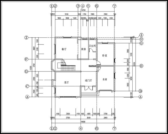
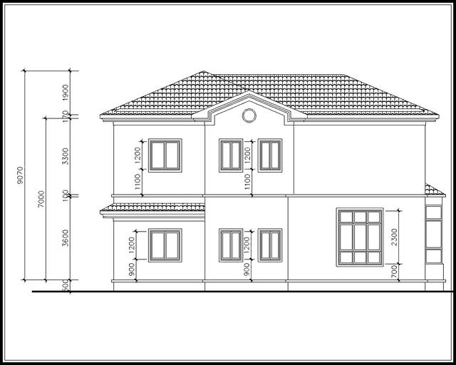
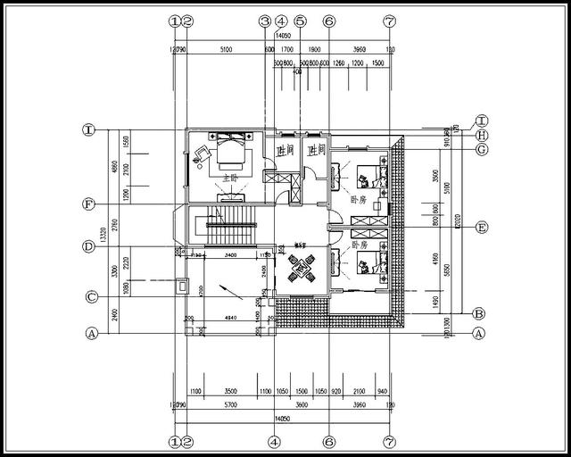
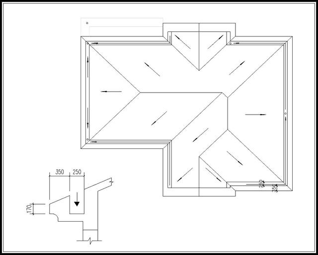
此戶型為二層農村別墅設計,極具現代感和流行元素,房屋的外型線條非常自然。土黃、淺黃與紅褐色的屋頂,在藍天與綠草坪的映襯下優雅大氣。由于光照足,所有顏色的飽和度很高,體現出色彩最絢爛的一面。觀景臺與落地窗的設計讓我們更好的與美景擁抱。 面寬:14.5米 進深:12.2米 占地面積:165.1平方 建筑總面積:288.9平米 層數:二層 總層高:9.07米 屋檐口高:7.17米 建筑結構:磚混結構 主體造價:20萬,僅供參考
![]() 圖紙之家-專注農村別墅/自建房設計18年,集合國內200余位經驗豐富的設計師,被評為口碑最好的農村建筑設計公司! |

二層雙拼別墅外觀效果圖及施工圖,帶露臺,14乘12米
占地:168平方米
240平農村二層自建別墅設計圖紙,帶你體驗家的溫馨
占地:240平方米
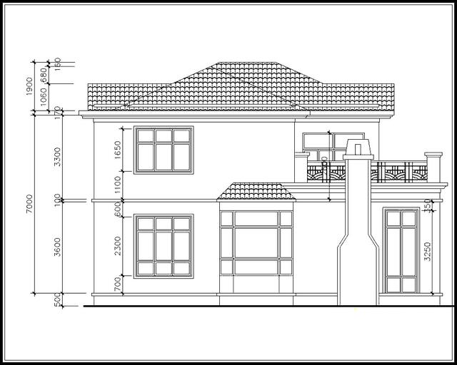
歐式二層小別墅設計圖紙(含外觀效果圖)
占地:141平方米
歐式漂亮農村三層自建房設計圖紙,兩個戶型方案可選
占地:多戶型可選
2026新款農村15萬元二層小樓圖,占地90平米左右
占地:多種戶型
新農村中式二層樓房設計圖紙及效果圖,125,150,170三個戶型可行
占地:多種戶型
農村兩間兩層樓房設計圖,造價15萬左右,獨立的廚房設計,干凈
占地:95平方米
140平方米三層豪華新中式別墅設計圖紙帶外觀效果圖
占地:141.35平方米
農村現代三層建房子設計圖及圖片,平屋頂的設計
占地:150平方米
180平方米漂亮大氣三層雙拼別墅設計圖,自建房圖片
占地:186平方米
150平左右新農村自建房設計圖,含外觀效果圖
占地:150平方米
200平米二層自建房別墅設計圖,外觀漂亮布局實用
占地:207.09平方米
新農村四合院別墅圖片及戶型方案圖,全套圖紙可施工
占地:154平方米左右
私人二層中式四合院別墅建筑設計圖,新農村經濟實用戶型
占地:145平方米
120平方米新農村全套二層施工設計圖紙大全11X11米
占地:120平方米
三層平頂現代別墅設計圖,實用不花冤枉錢,建好倍有面子
占地:113.02平方米
戶型好的農村三層樓房設計圖,帶外觀效果圖
占地:110平方米
三層蓋房子歐式挑空客廳別墅設計圖,外觀漂亮戶型實用
占地:多種戶型
三層平頂現代風格,農村自建房設計圖,可帶電梯,百看不厭
占地:259.55平方米
對稱型歐式別墅設計圖,穩重實用,開間18米,適合全國農村建
占地:228.2 平方米
推薦:10套新農村自建房設計圖,2026年最新設計
閱讀次數:4825737次
100套鄉村別墅圖片大全,2026年最新設計
閱讀次數:2492203次
6款農村蓋一層平房的設計圖,10萬元就能建起來
閱讀次數:1852637次
這11個一層農村自建房別墅火爆了朋友圈!我最喜歡戶型十!你呢
閱讀次數:750268次
農村6萬元建一層小別墅圖,你敢相信嗎
閱讀次數:567686次
農村5萬塊就能自建房,6套普通房子設計圖分享,你沒看錯!
閱讀次數:419410次
8套農村漂亮三間平房圖片,非常適合在農村修建!
閱讀次數:411197次
農村自建房化糞池怎么做?附方案及施工過程
閱讀次數:391783次
農村一層三間平房設計圖,告別土氣養老房,讓人忍不住點贊
閱讀次數:350581次
新農村二層樓房圖片造價12萬,挑一套回家建房吧!
閱讀次數:349126次
