
|
咱們農村建房也講究風水,風水好,財源滾滾,保一家老小平平安安,風水不好還破財,所以選對風水很重要!
別墅帶有現代風格,采用淺藍色色調,很是時尚大方。
細節圖
細節圖
細節圖
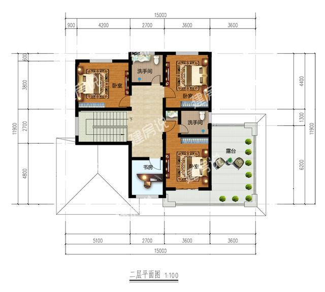
【基本信息】編號:JF7061,層數:2層,結構形式:框架結構,造價28萬—32萬,開間15米,進深11.9米,占地面積151.01平方米,建筑面積252.63平方米
一層帶車庫,一間臥室,廚房餐廳客廳都有,適合一家人的生活起居
二層三間臥室 二層現代別墅這樣建,你喜歡嗎?看完記得收藏哦! 圖紙之家-專注農村別墅/自建房設計18年,集合國內200余位經驗豐富的設計師,被評為口碑最好的農村建筑設計公司! |

中式一層仿古自建平房設計圖,灰墻青瓦,外觀古香古色
占地:168.48平方米
一層農村房子設計圖,含外觀效果圖,自建推薦戶型
占地:200平方米
新中式二層農村別墅設計圖紙及外觀圖,面寬15米左右
占地:148.86平方米
二層歐式小別墅設計方案,全套建筑設計圖紙+外觀效果圖
占地:146平方米
2026年新款一層住宅別墅設計圖紙,中式風格漂亮極了
占地:207平方米
二層農村兄弟雙拼別墅設計圖,一墻之隔互不干擾,鄰居看了都喜
占地:164.24平方米
160平方農村三層別墅CAD設計圖紙,含外觀圖片效果圖
占地:156平方米
左右對稱的歐式高端三層別墅設計圖,外觀氣派、豪華
占地:200平方米
120平方米農村四層別墅設計圖,含全套施工圖
占地:120平方米
20萬以內二層歐式小別墅設計方案,全套施工圖+效果圖
占地:115平方米
130多平方米新農村三層別墅建筑設計圖及效果圖
占地:133平方米左右
歐式新農村自建三層建筑施工設計圖紙及效果圖大全
占地:106平方米
165平方米三層雙拼農村房屋設計圖大全14x12
占地:168平方米
經典三層雙拼房屋設計圖,帶效果圖,戶型好,單戶面積120
占地:240平方米
大戶型美觀一層平房自建房設計圖,面寬19米左右
占地:245.1平方米
帶車庫現代三層房屋別墅設計圖,占地110平米左右,功能齊全
占地:110平米
新農村雙拼別墅全套設計圖方案及效果圖,餐廳廚房獨立設計
占地:338.02平方米
二層簡歐別墅設計圖挑空客廳+旋轉樓梯,看過的人都說氣派
占地:154.699平方米
帶庭院中式二層四合院別墅設計效果圖片,方方正正
占地:404平方米
頂配三拼三層別墅設計,獨立入戶+共享庭院,兄弟三家共享奢華
占地:367.44平方米
推薦:10套新農村自建房設計圖,2026年最新設計
閱讀次數:4825737次
100套鄉村別墅圖片大全,2026年最新設計
閱讀次數:2492203次
6款農村蓋一層平房的設計圖,10萬元就能建起來
閱讀次數:1852637次
這11個一層農村自建房別墅火爆了朋友圈!我最喜歡戶型十!你呢
閱讀次數:750268次
農村6萬元建一層小別墅圖,你敢相信嗎
閱讀次數:567686次
農村5萬塊就能自建房,6套普通房子設計圖分享,你沒看錯!
閱讀次數:419410次
8套農村漂亮三間平房圖片,非常適合在農村修建!
閱讀次數:411197次
農村自建房化糞池怎么做?附方案及施工過程
閱讀次數:391783次
農村一層三間平房設計圖,告別土氣養老房,讓人忍不住點贊
閱讀次數:350581次
新農村二層樓房圖片造價12萬,挑一套回家建房吧!
閱讀次數:349126次
