
|
現代人為自己的房子做裝修時,都不太喜歡古代流行的那種富麗堂皇、花團錦簇的感覺了,反而越是簡單樸素的裝修越是招人喜愛。但是,僅僅只有簡單樸素卻也是不夠的,在各個小細節處體現出的小特色反而更能凸顯主人的涵養。今天小編為大家介紹的這款簡單樸素的農村美式二層別墅就是如此,下面我們就一起去看看吧!
風格:美式風格。 尺寸:面寬16.7米 進深11.6米。 建筑面積:293.0㎡。
這套別墅在造型上采用的是兩跨的形式,打破了傳統造型中平衡對稱的感覺,這樣換角度看這種不平衡的美感,反而讓整個別墅在人的視覺感官中顯得十分的震撼。
別墅整體采用的是美式風格,其中它的外立面的底部選擇的是石材進行裝飾,而別墅的二層部分則采用纖維板等建材進行裝飾,別墅頂部的組合造型加入了西部的一些構筑物的處理元素。使得這三者之間相輔相成,相互作用,最后形成這獨樹一幟的美式風格。
房子采取了大面積的開窗以此來中和石材的厚重感,讓別墅整體少一分笨拙,也顯得更加靈動。同時,玻璃的通透也為室內帶來了更多的光照。每天在陽光中醒來,好心情從早上開始。
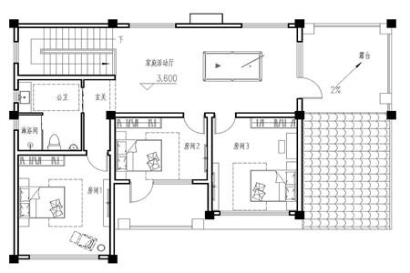
一層平面設計主要考慮到別墅建成后的性質分類,室內的大致劃分十分符合農村住房習慣的功能需求。因此一層則主要作為公共空間使用。同時采用開放式的空間設計將一層室內的通透感表現得淋漓盡致。而中間位置的開間控制在4米以內,還使得廚房可以布置成中西結合的形式。
二層則主要作為私密性較高的起居空間來使用。所有的臥室均設計在采光和通風性能較好的南側,但北側的大面積活動廳也豐富了二層的使用功能。
東北側的露臺能盡覽別墅四周的自然景觀,是整個別墅中最好的觀景位置。此外,露臺的位置剛好與別墅的坡屋頂交匯,直硬的線條通過玻璃護欄無形中顯得柔和了許多。而層次豐富的屋頂在露臺的上空也得到了表現,無形中的線條延伸剛好碰撞出視覺上的火花。
庭院的室外泳池和休息平臺搭配的位置剛剛好,既不會造成庭院的擁擠,又能與四周的景色互相融合,使得庭院與別墅的整體更加完美的拼接。入住別墅,來場音樂嬉水,體驗生活情趣,擺脫層層壓力,實在是再好不過的了。
看過上面的介紹,你有沒有對這棟美式別墅動心呢?這棟看似簡單樸素的農村二層別墅,其實內里涵蓋了很多裝修的小心機。使得這一棟簡簡單單的農村二層樓房化身為簡單樸素的農村美式二層別墅 圖紙之家-專注農村別墅/自建房設計18年,集合國內200余位經驗豐富的設計師,被評為口碑最好的農村建筑設計公司! |

鄉下二層樓房住宅設計圖紙及效果圖,農村二層小洋樓
占地:140平方米
一層農房別墅設計圖紙,140平方米,面寬15米
占地:140平方米
巴洛克風格別墅設計圖紙及效果圖,農村建一棟想低調都難
占地:256平方米左右
二層半大客廳復式別墅房屋設計圖,客廳寬闊明亮
占地:125平方米
新農村四層獨棟復式別墅設計圖,設計豪華時尚
占地:140平方米
客廳中空的三層豪華小別墅設計圖,時尚靚麗,鄉下建一棟有面子
占地:171.25平方米
農村30萬別墅款式三層設計圖紙,帶地下儲藏室,挑空客廳
占地:110平方米
2026兩層半20多萬農村自建房圖,簡歐風格,美觀大氣
占地:120平方米
農村自建房設計圖,三層房屋設計圖及效果圖
占地:120平方米
歐式農村三層小別墅設計圖,占地120平米,客廳中空,空間利用率
占地:120平方米
新農村三層房屋住宅設計圖紙大全(含效果圖)
占地:122平方米
中式徽派二層農村別墅設計圖,白墻黛瓦馬頭墻,永不過時
占地:171平方米
農村二層半樓房設計圖及效果圖,歐式風格
占地:150平方米
私人二層歐式別墅建筑設計圖(效果圖+全套別墅設計方案)
占地:144平方米
農村小別墅設計圖二層,占地不大顏值高,最適合農村建造。
占地:108.66平方米
現代風格四合院別墅設計圖,回老家建一棟吧
占地:177.89平方米
165平方米農村帶陽光房的二層小別墅設計圖紙帶外觀圖18.16米*9.
占地:166平方米
農村最好看兩層小樓圖及全套CAD施工圖紙,新中式風格,簡潔大氣
占地:150平方米
兩層半雙拼別墅設計方案,超大露臺+歐式風格,好設計別錯過!
占地:175.8平方米
160平方米農村二層四合院別墅設計圖及外觀圖片
占地:158平方米
推薦:10套新農村自建房設計圖,2026年最新設計
閱讀次數:4825737次
100套鄉村別墅圖片大全,2026年最新設計
閱讀次數:2492203次
6款農村蓋一層平房的設計圖,10萬元就能建起來
閱讀次數:1852637次
這11個一層農村自建房別墅火爆了朋友圈!我最喜歡戶型十!你呢
閱讀次數:750268次
農村6萬元建一層小別墅圖,你敢相信嗎
閱讀次數:567686次
農村5萬塊就能自建房,6套普通房子設計圖分享,你沒看錯!
閱讀次數:419410次
8套農村漂亮三間平房圖片,非常適合在農村修建!
閱讀次數:411197次
農村自建房化糞池怎么做?附方案及施工過程
閱讀次數:391783次
農村一層三間平房設計圖,告別土氣養老房,讓人忍不住點贊
閱讀次數:350581次
新農村二層樓房圖片造價12萬,挑一套回家建房吧!
閱讀次數:349126次
