
|
很久沒有給大家帶來空中花臺和帶土灶房的別墅了,所以今天特地選出一款在我們農村最近特別流行的一款二層戶型。15.24mx13.04m,特大堂屋+獨立佛堂+土灶廚房的布局設計,外型好看,布局合理實用。
基本屬性:開間15.24m,進深13.04m,占地面積192.13m²,建筑高度9.81m,建筑面積341.53m²,磚混結構。
外觀屬性:屋頂面采用紅色釉面瓷瓦鋪蓋,外墻面采用白色真石漆+紅色面磚+黃色真石漆+灰色面磚。
一層平面(建筑面積192.13m²,建筑高度3.6m):門廳、堂屋、衛生間、土灶廚房、餐廳、糧倉、雜物間、儲藏室、佛堂、臥室。一層臥室為老人房,靠近佛堂,很方便他們日常拜佛祭祀。廚房為農村土灶+現代廚房,不僅滿足了農村老人日常的飲食習慣,也符合年輕人現在快捷的餐食方式。大堂屋,有足夠的空間可以家宴擺酒。
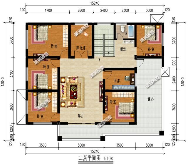
二層平面(建筑面積149.10m²,建筑高度3.4m):5臥室、書房、陽光房、客廳、盥洗室、衛生間、露臺。二層露臺為花園式露臺,很適合種植擺放花草植物。陽光房的設計可以同時安置小的茶室和棋牌室,足夠的采光同時滿足日常娛樂消遣。
這款戶型最大的亮點就是好看的外觀和充分實用的內在布局,占地面積可能有點大,但是不影響喜歡的朋友參考房型。 圖紙之家-專注農村別墅/自建房設計18年,集合國內200余位經驗豐富的設計師,被評為口碑最好的農村建筑設計公司! |

適合7字型宅基地蓋的一層別墅,中式風格設計
占地:163平方米
豪華三層別墅設計圖紙,全套施工方案帶效果圖
占地:130平方米
鄉村三層簡單自建房子設計圖,全部建好34萬左右,外觀簡潔
占地:127.912平方米
農村四間二層小洋樓設計圖,歐式別墅、現代洋氣
占地:200平方米
農家中式小院一層三合院自建房,布局寬敞大氣又舒適
占地:186.07平方米
經濟實用二層農村自建房設計圖,新中式風格12x11米
占地:114平方米
大戶型帶車庫的兩層農村自建房設計圖,施工簡單,戶型方正
占地:236平方米
一眼就驚艷的二層新中式別墅設計圖,大氣做夢都想回家蓋棟!
占地:128.58平方米
村里蓋房圖紙大廳挑空的三層別墅設計圖,面寬不到10米
占地:122.4平方米
獨棟小別墅設計圖,造價30萬左右的獨棟小別墅設計推薦
占地:150平方米
徽派120平新農村住宅設計方案,帶外觀效果圖
占地:120平方米
260平方米兩層帶車庫四合院房屋設計圖紙及效果圖
占地:260平方米
農村蓋房三層自建別墅設計圖紙,11米乘12米戶型方案
占地:132.55平方米
面寬8米多的三層農村別墅設計圖,小開間宅基地推薦
占地:112.82平方米
新農村三層房屋cad建筑設計圖紙,磚混結構
占地:138平方米
最美建筑四合院別墅設計方案,大氣經典,開間19米
占地:168.61平方米
170平方米歐式農村兩層小別墅設計圖紙帶外觀圖,精致好看
占地:多種戶型
帶開放式車庫的二層別墅!配土灶、室外樓梯,新穎還顯品味
占地:127.2平方米
20萬農村二層小洋樓設計圖,帶鍋爐房,漂亮簡單實用
占地:165平方米
300平大戶型豪華三層別墅設計圖,帶總統套房
占地:300平方米
推薦:10套新農村自建房設計圖,2026年最新設計
閱讀次數:4825737次
100套鄉村別墅圖片大全,2026年最新設計
閱讀次數:2492203次
6款農村蓋一層平房的設計圖,10萬元就能建起來
閱讀次數:1852637次
這11個一層農村自建房別墅火爆了朋友圈!我最喜歡戶型十!你呢
閱讀次數:750268次
農村6萬元建一層小別墅圖,你敢相信嗎
閱讀次數:567686次
農村5萬塊就能自建房,6套普通房子設計圖分享,你沒看錯!
閱讀次數:419410次
8套農村漂亮三間平房圖片,非常適合在農村修建!
閱讀次數:411197次
農村自建房化糞池怎么做?附方案及施工過程
閱讀次數:391783次
農村一層三間平房設計圖,告別土氣養老房,讓人忍不住點贊
閱讀次數:350581次
新農村二層樓房圖片造價12萬,挑一套回家建房吧!
閱讀次數:349126次
