
|
120平農村別墅圖紙一 農村別墅基本信息 ? 占地尺寸:10米*12米 ? 占地面積:120平方 ? 建筑面積:350平方米 ? 建筑結構:磚混結構 ?主體造價:26-30萬
120平農村別墅圖紙二 農村別墅基本信息 ? 占地尺寸:10.8x10.7米 ? 占地面積:116.4平方米 ? 建筑面積:273.78平方米, ? 建筑結構:磚混結構 ? 造價估算:22-26萬左右 效果圖
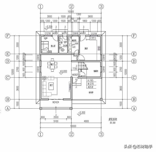
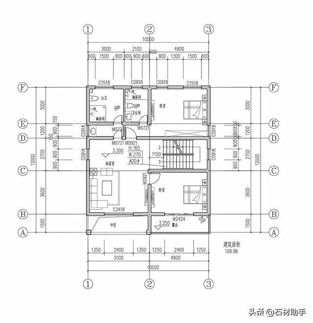
120平農村別墅圖紙三 農村別墅基本信息 ? 占地尺寸:11x11.3米 ? 占地面積:120.85㎡ ? 建筑面積:307.63㎡ ? 建筑結構:磚混結構 ? 主體造價估算:25-32萬
120平農村別墅圖紙三 農村別墅基本信息 ? 占地尺寸:11x11.3米 ? 占地面積:120.85㎡ ? 建筑面積:307.63㎡ ? 建筑結構:磚混結構 ? 主體造價估算:25-32萬 效果圖
▲ 三層平面圖 120平農村別墅圖紙五 農村別墅基本信息 ? 占地尺寸:11.1米x10.6米 ? 占地面積:120平方米 ? 建筑面積:233 平方米, ? 總 高 度:10.13米 ? 造價估算:18-25萬左右 效果圖一
120平農村別墅圖紙六 農村別墅基本信息 ? 占地尺寸:12.04米*10.54米 ? 占地面積:120平方米 ? 建筑面積:224平方米 ? 建筑結構:磚混結構 ?主體造價: 18萬
圖紙之家-專注農村別墅/自建房設計18年,集合國內200余位經驗豐富的設計師,被評為口碑最好的農村建筑設計公司! |

80平方米新農村二層房屋設計圖紙,造價15萬左右
占地:80平方米
兄弟四間三層雙拼別墅設計圖,造價40萬左右
占地:210平方米
新農村三層豪華歐式別墅,復式高端自建房設計圖紙及效果圖
占地:多種戶型
140-150平方米新農村別墅設計圖紙,帶外觀效果圖,復式戶型
占地:146平方米
185平米自建三層別墅房屋施工設計圖紙及效果圖
占地:187平方米
一層四合院別墅,中式庭院寬綽大氣,這樣的合院養老最合適
占地:396平方米
經典美式風100平米二層小別墅設計方案,鄉村建房首選
占地:100.17平方米
三層帶露臺21萬別墅設計圖,占地面積100平米左右
占地:106平方米
兩層平屋頂帶地下室別墅設計方案(全套自建房施工圖+效果圖)
占地:152.55平方米
100平左右農村一層平房小洋樓建筑設計圖紙,14米×8米
占地:98平方米
農村三層歐式別墅豪宅戶型圖設計方案,復式中空客廳+旋轉樓梯
占地:134.84平方米
3款簡單舒適二層別墅設計圖,低調配色,造型簡單大氣
占地:多戶型可選
鄉村兄弟小戶型雙拼一層房屋設計圖,雙拼別墅格局精煉,實用性
占地:160平方米
鄉村三層別墅設計圖紙,帶屋頂花園(含效果圖)
占地:150平方米
70平農村小戶型二層別墅設計圖,小宅基地的福音
占地:70平方米
20萬農村二層小洋樓設計圖,帶鍋爐房,漂亮簡單實用
占地:165平方米
農村18萬元二層小樓圖紙,漂亮實用的農村二層樓房設計圖
占地:140平方米
帶車庫鄉下雙拼別墅設計圖,三層造型漂亮大全
占地:256平方米
農村10萬元一層小別墅設計圖紙,戶型實用又合理
占地:130平方米
四層(三層半)復式別墅設計圖片大全,歐式風格
占地:174平方米
推薦:10套新農村自建房設計圖,2026年最新設計
閱讀次數:4825737次
100套鄉村別墅圖片大全,2026年最新設計
閱讀次數:2492203次
6款農村蓋一層平房的設計圖,10萬元就能建起來
閱讀次數:1852637次
這11個一層農村自建房別墅火爆了朋友圈!我最喜歡戶型十!你呢
閱讀次數:750268次
農村6萬元建一層小別墅圖,你敢相信嗎
閱讀次數:567686次
農村5萬塊就能自建房,6套普通房子設計圖分享,你沒看錯!
閱讀次數:419410次
8套農村漂亮三間平房圖片,非常適合在農村修建!
閱讀次數:411197次
農村自建房化糞池怎么做?附方案及施工過程
閱讀次數:391783次
農村一層三間平房設計圖,告別土氣養老房,讓人忍不住點贊
閱讀次數:350581次
新農村二層樓房圖片造價12萬,挑一套回家建房吧!
閱讀次數:349126次
