
|
現在很多農村建房因生活需要,都會蓋有地下室,可以做地下車庫停放車輛或者存儲生活雜物等,十分方便。農村自建房,最重要的也是宜室宜家,適合自家最重要,住起來暖心舒適,否則建一棟房子也毫無意義。今天給大家分享一款30萬以內三層農村自建房現場施工展示:10×11米3廳8臥帶露臺,適合眾多農村家庭,一起來看看。 戶型基本信息 層數: 三層結構形式: 磚混結構 開間:9.96米進深:10.56米占地面積: 111.68平方米建筑面積:305.6平方米 主體造價:28萬 原設計效果圖
效果圖 原設計圖外觀采用比較鮮艷活躍的顏色裝飾,紅色與淡黃色搭配,靚麗吸睛,簡潔大方。凸窗設計極具造型感,四周多開窗有利于室內的采光和通風效果,充分考慮到了住房環境的舒適度。室內布局緊湊,功能明確,大露臺設計,有絕佳的晾曬場地和景觀角度。 房屋建成效果圖展示
房子大致建成效果已經出來了,可以看到業主衛滿足自家的需求,建造了地下層。
兩棟房子一模一樣,整齊排列,很有氣勢。建成效果漂亮大氣。
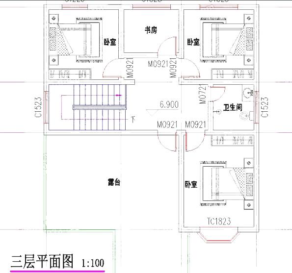
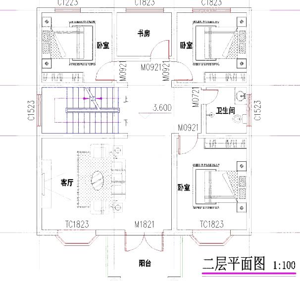
階梯式入戶,讓整棟房子上升了一個檔次。 功能設計: 一 層:客廳、餐廳、廚房、臥室×2、衛生間 二 層:客廳(帶陽臺)、臥室×3、書房、衛生間 三 層:臥室×3、書房、衛生間、露臺 平面布局圖:
一層平面圖
二層平面圖
三層平面圖
圖紙之家-專注農村別墅/自建房設計18年,集合國內200余位經驗豐富的設計師,被評為口碑最好的農村建筑設計公司! |

帶車庫的三層房屋方案設計圖,帶堂屋全套圖紙
占地:163.8平方米
巴洛克風格別墅設計圖紙及效果圖,農村建一棟想低調都難
占地:256平方米左右
二層現代風格雙拼別墅設計圖,平屋頂,帶地下室設計
占地:192.47平方米
二層別墅設計圖紙及效果圖,占地200平米,外觀精致優雅,小有情
占地:200平方米
歐式新農村三層復式樓自建房別墅圖紙,旋轉樓梯設計
占地:128平方米
網紅中式一層三合院別墅設計圖,白墻黛瓦古典大氣,讓人心曠神
占地:248.82平方米
新農村三層別墅設計圖紙及效果圖,全套cad建筑圖
占地:119平方米
114平方米農村四層別墅設計圖紙及效果圖,11X11米
占地:114平方米
100平米左右簡單實用的二層樓房設計圖,施工簡單造價低
占地:95平方米
最美農村一層合院設計圖紙,自建一棟火遍十里八鄉
占地:190平方米左右
面寬20多米二層新中式雙拼別墅設計圖,外觀漂亮時尚
占地:246.66平方米左
新中式三層雙拼別墅設計圖,外觀圖片美觀、大氣
占地:176平方米
農村平屋頂三層現代風別墅戶型圖,簡約實用經濟顏值高
占地:111.9平方米
平屋頂四間一層農村自建房設計圖紙,經濟時尚
占地:144平方米
小戶型徽派建筑別墅設計方案大全,三層別墅設計圖推薦
占地:95平方米
樓中樓客廳挑高二層別墅設計圖,復式別墅方案推薦
占地:122平方米
農村一層中式三合院太香了!白墻黛瓦,有院有景超宜居
占地:364.72平方米
外觀造型對稱的二層別墅設計圖,老虎窗+挑空客廳
占地:175.2平方米
復式大客廳帶旋轉樓梯二層別墅設計圖,大廳很闊氣
占地:193平方米左右
進深15米新農村三層房屋設計圖紙,農村住宅設計圖集
占地:128平方米
推薦:10套新農村自建房設計圖,2026年最新設計
閱讀次數:4825737次
100套鄉村別墅圖片大全,2026年最新設計
閱讀次數:2492203次
6款農村蓋一層平房的設計圖,10萬元就能建起來
閱讀次數:1852637次
這11個一層農村自建房別墅火爆了朋友圈!我最喜歡戶型十!你呢
閱讀次數:750268次
農村6萬元建一層小別墅圖,你敢相信嗎
閱讀次數:567686次
農村5萬塊就能自建房,6套普通房子設計圖分享,你沒看錯!
閱讀次數:419410次
8套農村漂亮三間平房圖片,非常適合在農村修建!
閱讀次數:411197次
農村自建房化糞池怎么做?附方案及施工過程
閱讀次數:391783次
農村一層三間平房設計圖,告別土氣養老房,讓人忍不住點贊
閱讀次數:350581次
新農村二層樓房圖片造價12萬,挑一套回家建房吧!
閱讀次數:349126次
