
|
對于建房者來說,房屋的建成效果是最令人期待的,看著原設計圖那么漂亮,建房者肯定也希望能完美還原,這樣花的錢也算值得了,今天小編就來給大家分享一款漂亮的二層別墅,該戶型是2018受歡迎30萬以內二層自建別墅全套設計圖(附3家建成效果圖),馬上來看看! 原設計圖展示 本戶型外觀設計十分漂亮,正立面中間外凸的結構很有立體感,窗戶是利用幾個幾何體進行重組,這種設計在歐式風格建筑中很常見,窗戶都是采用大面積設計,通透采光,整棟房子看起來很大氣。屋頂采用坡面設計,外墻用黃色為主色,有文化石點綴,美感十足。
原設計效果圖 二層的露臺采用推拉門,可以享受室外新鮮空氣,欣賞美景。有明廚明衛、二層的主臥帶書房衣帽間等功能性極強,是溫馨居家的選擇。
俯視圖 俯視圖看起來非常氣派,屋頂的形狀設計獨特精湛,整棟房子散發著高貴氣質。 建成效果圖展示
【案例1】
【案例2】
【案例3】
這款戶型室內布局有兩種,一種是客廳挑空款,另一種是客廳平層款,可根據自家需求挑選,下面是本套別墅的平面圖展示: 【客廳挑空款】 層數: 二層 結構形式: 磚混結構 主體造價: 25萬 開間: 12.5米 進深: 11米 占地面積: 128.75平方米 總建筑面積: 229.42平方米
一層平面圖 一層: 入室玄關、餐廳、客廳、廚房、雜物間、2間臥室、公用衛生間
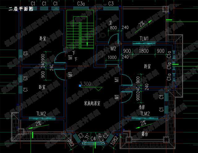
二層平面圖 二 層: 主臥室( 帶書房、帶露臺、帶衣帽間、帶衛生間)、前次臥室(帶露臺)、后次臥室、公用衛生間 【客廳平層款】 層數: 二層 結構形式: 框架結構 主體造價: 28萬 開間:12.54米 進深:11.04米 占地面積: 121.96平方米 建筑面積:229.88平方米
一層平面圖 一 層: 門廊、過廳、會客廳、餐廳、廚房、臥室×2、衛生間
二層平面圖 二 層: 家庭起居室、臥室×3、書房(帶露臺)、衛生間 圖紙之家-專注農村別墅/自建房設計18年,集合國內200余位經驗豐富的設計師,被評為口碑最好的農村建筑設計公司! |

農村三層樓房設計圖及效果圖,復式磚混結構
占地:148平方米
面寬12米簡歐三層農村別墅設計圖,低調又奢華鄉村別墅
占地:132.64平方米
二層樓房圖片及施工圖紙,占地160平米左右,帶車庫
占地:160平方米
新農村二層帶露臺經濟型小別墅設計圖紙,含外觀效果圖
占地:120平方米
好看又簡單的二層樓房設計圖紙,戶型還實用
占地:150平方米
復式別墅新農村二層房屋設計圖紙,屋頂錯落有致
占地:多戶型可選
廚房餐廳在配房的歐式三層農村別墅設計方案,華麗又宜居
占地:177.58平方米
大平方大面積別墅設計方案圖,樓中樓客廳中空
占地:247平方米
獨棟經濟型二層小別墅房屋設計圖,含全套施工圖效果圖
占地:多種戶型
大氣的美式三層別墅設計圖,外觀效果圖氣派、美觀
占地:148平方米
五間二層別墅設計圖紙,樓梯設計的無比大氣
占地:300平方米
農村四層雙拼別墅房屋設計圖,造型現代、大氣
占地:220平方米
五間兩層農村自建房設計圖,大門居中真氣派,空間寬敞生活質量
占地:219.94平方米
一層半房屋別墅設計圖,帶閣樓圖、帶露臺,外觀新穎時尚
占地:130平方米
鄉村二層簡歐小戶型別墅圖設計,占地90平方米左右
占地:92.12平方米
歐式二層5大間別墅設計圖,新穎獨特的外觀,面寬20米
占地:180.14平方米
二層帶架空層的農村別墅設計圖,功能齊全,超越十里八村
占地:130平方米
時尚大方的農村二層自建房屋設計圖紙,占地120平米左右
占地:120平米
時尚一層別墅圖,一層這樣蓋房最漂亮
占地:160平方米
114平方米農村四層別墅設計圖紙及效果圖,11X11米
占地:114平方米
推薦:10套新農村自建房設計圖,2026年最新設計
閱讀次數:4825737次
100套鄉村別墅圖片大全,2026年最新設計
閱讀次數:2492203次
6款農村蓋一層平房的設計圖,10萬元就能建起來
閱讀次數:1852637次
這11個一層農村自建房別墅火爆了朋友圈!我最喜歡戶型十!你呢
閱讀次數:750268次
農村6萬元建一層小別墅圖,你敢相信嗎
閱讀次數:567686次
農村5萬塊就能自建房,6套普通房子設計圖分享,你沒看錯!
閱讀次數:419410次
8套農村漂亮三間平房圖片,非常適合在農村修建!
閱讀次數:411197次
農村自建房化糞池怎么做?附方案及施工過程
閱讀次數:391783次
農村一層三間平房設計圖,告別土氣養老房,讓人忍不住點贊
閱讀次數:350581次
新農村二層樓房圖片造價12萬,挑一套回家建房吧!
閱讀次數:349126次
