
|
由于條件的限制,在農村很多人選擇蓋一層平房,那么這一層的平房怎么蓋才能最漂亮最實用呢。其實這一層的平房也有很大的發揮空間和優點,造價也很低廉。在這里小編就給大家列舉幾個案例分析一下。
圖紙目錄:工程做發表、建筑立面圖、平面圖、剖面圖、樓梯詳圖節點、大樣、門窗表、門窗詳圖、室內裝修表、總平面示意圖、全套結構圖、全套電氣圖、全套水電圖、效果圖等。
設計功能:院落、起居室、暖廊、臥室、儲藏間、主臥室、廚房、餐廳、臥室、衛生間、商店、皮具縫制間、成品皮料庫。
這套圖紙占地面積是11米X14米,磚混結構,有三個臥室,功能設計齊全并且實用。
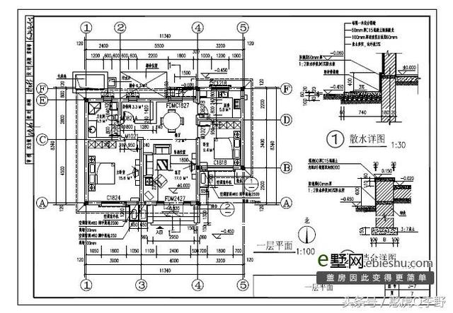
圖紙目錄:一層平面圖、屋頂平面圖、門窗表、地基圈梁圖、屋頂圈梁和頂板圖、一層電線示意圖、一層水管線示意圖、效果圖。
占地面積為11米X10米,設計功能包括餐廳、廚房、主臥室、儲藏間、2間臥室、客廳、玄關、衛生間;
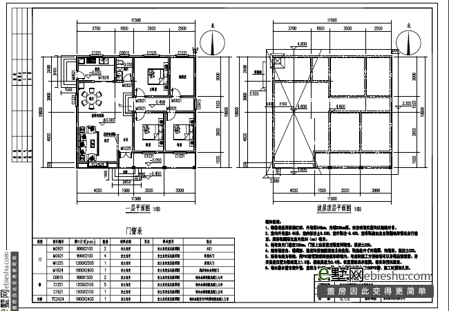
圖紙目錄:建筑說明、平面示意圖、平面圖、立面圖、剖面圖、樓梯詳圖、廚房、衛生間詳圖、門窗表及門窗大樣、全套結構、全套給排水、全套電氣、效果圖等。
設計功能:客廳、主臥室、衛生間、臥室、廚房、餐廳、雜物間;
這套一層平房戶型比較小,建筑占地為11米X8米,磚混結構,有兩個臥室。 一層的房子接地氣,不用跑上跑下,如果設計合理戶型完全夠用,你們覺得這幾套房子怎么樣呢? 圖紙之家-專注農村別墅/自建房設計18年,集合國內200余位經驗豐富的設計師,被評為口碑最好的農村建筑設計公司! |

農村三合院設計圖及效果圖,自建三合院圖紙
占地:470平方米
造價65萬左右的三層歐式別墅房屋設計施工CAD圖紙及效果圖
占地:178平方米
大氣新中式三層雙拼別墅設計圖及外觀,總面寬20米多
占地:205.76平方米
平屋頂12米寬別墅三層設計圖,平頂照樣建的漂亮
占地:129.6平方米
農村二間二層小別墅設計方案,精而美的經典樣式不容錯過
占地:115.32平方米
農村三層半別墅設計圖及外觀效果圖,三層半樓房設計方案推薦
占地:100平方米
網紅中式一層三合院別墅設計圖,白墻黛瓦古典大氣,讓人心曠神
占地:248.82平方米
經濟小戶型二層中式四合院(三合院)設計圖紙,帶堂屋和庭院
占地:143.544平方米
面寬15米大氣的農村二層復式戶型別墅設計圖紙及外觀圖片
占地:173.28平方米
100平簡單三層房屋設計圖紙,新農村自建推薦圖紙
占地:100平方米
農村三層帶地下室小樓房設計圖,客廳中空,帶書房,旋轉樓梯
占地:130平方米
農村二層樓房設計圖帶外觀圖片,造價20多萬,13.3x11
占地:146平方米
帶露臺陽光房二層建房別墅設計圖,13米乘12米,享受農村悠然慢
占地:143.54平方米
8.5×12米四層歐式房屋設計圖紙,占地100平,落地窗中嵌入了雕花
占地:100平方米
小型新中式二層小別墅圖紙設計方案,好看造價不高
占地:232.98平方米
簡單大方四間二層小樓房設計圖,帶車庫,帶大露臺
占地:180平方米
簡單質樸三層新農村小別墅設計圖紙,別墅圖片,戶型簡單合理實
占地:120平方米
面寬8米多的三層農村別墅設計圖,小開間宅基地推薦
占地:112.82平方米
兩層半帶閣樓別墅房屋設計圖,含外觀效果圖片
占地:118平方米
占地130平方米二層鄉村別墅自建房圖紙設計圖,效果圖好看
占地:131.658平方米
推薦:10套新農村自建房設計圖,2026年最新設計
閱讀次數:4825737次
100套鄉村別墅圖片大全,2026年最新設計
閱讀次數:2492203次
6款農村蓋一層平房的設計圖,10萬元就能建起來
閱讀次數:1852637次
這11個一層農村自建房別墅火爆了朋友圈!我最喜歡戶型十!你呢
閱讀次數:750268次
農村6萬元建一層小別墅圖,你敢相信嗎
閱讀次數:567686次
農村5萬塊就能自建房,6套普通房子設計圖分享,你沒看錯!
閱讀次數:419410次
8套農村漂亮三間平房圖片,非常適合在農村修建!
閱讀次數:411197次
農村自建房化糞池怎么做?附方案及施工過程
閱讀次數:391783次
農村一層三間平房設計圖,告別土氣養老房,讓人忍不住點贊
閱讀次數:350581次
新農村二層樓房圖片造價12萬,挑一套回家建房吧!
閱讀次數:349126次
