
|
農村建房,以地基方正最好設計,但也不排除經常會有窄面寬,短進深的戶型出現,想這樣的戶型,肯定是比方正戶型稍微費點心的。今天小編給大家介紹的這兩款自建房別墅,都是很典型的9x12米的設計方案,一起跟小編來看看吧! 別墅一效果圖: 這棟簡歐別墅色彩選用,淺咖、淡黃、金黃色,給人以低調奢華的感覺,大部分窗戶是方形窗框,唯有一個窗框,特意設計成半圓形,那就是主臥,凸顯主臥的尊貴感。所有窗框外都做了線條凸出,突顯造型凹凸感。別墅視覺上有地下室的感覺,但是這個“地下室”就是地上一層哦,別墅正面,首先映入眼簾的是一排階梯,直接可以上二樓,非常的大氣。
基本信息 占地尺寸:9.76X12米 占地面積:135平方米 建筑面積:362平方米 結構類型:磚混結構 建筑層數:3層 建筑高度:9.3米 主體造價:29萬左右 一層平面圖: 設有:60平超大車庫兼倉庫,不論是停車,還是放置雜物,空間都足夠了。
二層平面圖: 設有:2臥室、2衛生間、1客廳、1廚房、1餐廳,入戶是一個大客廳,再進去是樓梯、餐廳和廚房,入戶左側是2個臥室,南面這個臥室可作為老人房,套衛更方便,北面臥室可做客臥,也有公衛,方便樓下的客人如廁。
三層平面圖: 設有:3臥室、2衛生間、1客廳、1大露臺,一樓上了樓梯后,是2個套房,一個主臥,一個可做兒童房,另外一個小臥室,可以根據需要改成書房也可。二層東面有個大露臺,可以觀景、看日出、晾曬、BBQ都可以。
別墅二效果圖: 這棟現代別墅外立面采用米白和暖橘色搭配,溫暖而又時尚洋氣,多窗設計,保證每層,室內都有良好的采光。別墅的布局一層是大廳,二層~五層是住家,分別是一層一套獨立的住宅,可以同時4家人住,解決家庭兄弟姐妹多的家庭住家問題,而且還互不干擾,也可以一套自己住,另外幾套出租出去,3套房子一年的租金也是很可觀的。
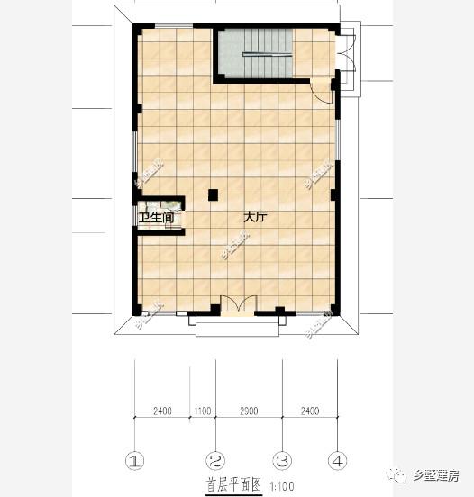
基礎信息 占地尺寸:9×12.7米 占地面積:128.36平方米 建筑面積:700.65平方米 結構類型:框架結構 建筑層數:5層 建筑高度:17.2米 主體造價:71萬左右 一層平面圖: 設有:大廳、衛生間、樓梯,一層入戶是大廳,西側是一個小衛生間,北邊是樓梯位置,旁邊還開了側門,方便出入。如果是住家,大廳可以作為娛樂室,臺球室、棋牌室、健身房,如果是出租,可以放上接待臺、組合沙發,作為接待前臺,和客戶休憩的地方。
二層~四層平面圖: 設有:主臥、次臥、衛生間、廚房、餐廳、客廳、陽臺,上樓梯后,入戶是餐廳和廚房,南側是主臥和客廳位置,采光更好,陽臺可以晾曬衣物,作為客廳的一個延伸,主臥和次臥之間是一個衛生間。整個戶型方正,布局合理,且所有空間都是明亮的,無暗房。
五層平面圖: 設有:主臥、書房、衛生間、廚房、餐廳、客廳、陽臺,上樓梯后,入戶是客廳、餐廳和廚房,成柔性連接,南側是主臥和書房位置,采光更好,陽臺可以晾曬衣物,作為主臥的一個延伸,主臥套內設有書房,衛生間也設置在套內,方便主人生活,提高主人生活品質。整個戶型方正,布局合理,且所有空間都是明亮的,無暗房。
圖紙之家-專注農村別墅/自建房設計18年,集合國內200余位經驗豐富的設計師,被評為口碑最好的農村建筑設計公司! |

經濟實用型二層農村小別墅設計圖,造價25萬內,外觀看起來時尚
占地:120平方米
一層農村必蓋戶型設計方案,養老自住兩相宜,經濟實惠又耐用!
占地:150.36平方米
70平農村小戶型二層別墅設計圖,小宅基地的福音
占地:70平方米
230平方米新農村二層自建別墅設計圖紙帶外觀圖,20X11米
占地:227平方米
帶架空層的一層自建房太香了!防潮、停車、儲物全兼顧
占地:152.06平方米
帶車庫四層別墅外觀效果圖及設計圖紙,戶型方正通透
占地:115平方米
農村宅基地建房二層別墅設計圖,適合回鄉自建!
占地:137.5平方米
12米×10米左右一層別墅平房戶型圖及設計圖,造價低
占地:110平方米
帶車庫的新中式風格一層別墅設計圖,鳥語花香回家建房
占地:184平方米
兩層中式三合院別墅設計圖紙,堂屋套臥全都有,蓋一棟面子十足
占地:181.93平方米
復式挑空二層別墅設計圖,占地175平米,建好住著很舒適
占地:175.44平方米
高端大氣三層雙拼自建房設計圖,外觀漂亮,240平左右
占地:240平方米
不帶廚房餐廳的二層別墅設計圖,農村建房很多人都這樣做
占地:124平方米左右
13×10米現代簡約風格三層別墅圖,坡屋頂和平屋頂完美結合
占地:120平方米
五開間農村豪華三層別墅設計圖,大格局大氣派,大家庭建房首選
占地:227.04平方米
面寬12米新中式三層別墅設計圖,回家建房就選它,全家人都愛的
占地:180平方米
新農村140平米樓房圖四層獨棟別墅設計圖,簡歐外觀風格設計
占地:141平方米
二層簡歐別墅設計圖挑空客廳+旋轉樓梯,看過的人都說氣派
占地:154.699平方米
160平小開間大進深農村三層別墅設計圖紙
占地:158.73平方米
240平農村二層自建別墅設計圖紙,帶你體驗家的溫馨
占地:240平方米
推薦:10套新農村自建房設計圖,2026年最新設計
閱讀次數:4825737次
100套鄉村別墅圖片大全,2026年最新設計
閱讀次數:2492203次
6款農村蓋一層平房的設計圖,10萬元就能建起來
閱讀次數:1852637次
這11個一層農村自建房別墅火爆了朋友圈!我最喜歡戶型十!你呢
閱讀次數:750268次
農村6萬元建一層小別墅圖,你敢相信嗎
閱讀次數:567686次
農村5萬塊就能自建房,6套普通房子設計圖分享,你沒看錯!
閱讀次數:419410次
8套農村漂亮三間平房圖片,非常適合在農村修建!
閱讀次數:411197次
農村自建房化糞池怎么做?附方案及施工過程
閱讀次數:391783次
農村一層三間平房設計圖,告別土氣養老房,讓人忍不住點贊
閱讀次數:350581次
新農村二層樓房圖片造價12萬,挑一套回家建房吧!
閱讀次數:349126次
