
|
現在不管是兩層的、三層的還是多層的別墅,頂層都喜歡做個大露臺,既能滿足農村生活需要的晾曬,也能夠提供一個室外的休閑平臺。
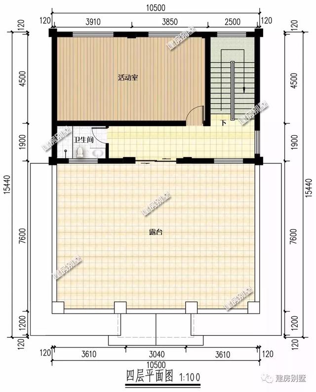
戶型信息:建房尺寸10.5×15.44米,占地面積150.20平方米,建筑面積486.79平方米,框架結構,外墻用小塊的白色面磚來裝飾,大門處的羅馬柱和裝飾柱都做的很氣派。
屋頂部分用藍色的琉璃瓦鋪蓋,且露臺的欄桿部分都處理的極巧妙的。
一層平面圖:客廳是復式的,一個帶獨衛的父母房,開放式的廚房和餐廳位于入戶的右側,樓梯下方做個洗衣間,內配一個休閑茶室。
二層平面圖:三室兩衛,主臥室配獨衛,直角樓梯設計,外設一個陽臺。
三層平面圖:一個帶獨衛的主臥室,兩個次臥室,還有一個休閑客廳和外觀景陽臺。
頂層平面圖:一間大型的室內活動室和室外休閑露臺。
一棟好別墅肯定是外觀看上去給人很舒服的感覺,室內住著更是生活方便。 圖紙之家-專注農村別墅/自建房設計18年,集合國內200余位經驗豐富的設計師,被評為口碑最好的農村建筑設計公司! |

兩層20萬農村自建房設計圖,經典農村建房款式,越看越有韻味
占地:160平方米
新中式三層豪華大氣三層別墅自建房屋設計圖,帶地下室,土豪專
占地:194平方米
帶庭院的農村一層別墅圖紙設計,外觀時尚好看
占地:多戶型可選
140平方米新農村四層房屋設計圖紙,農村自建推薦
占地:140平方米
農村二層小別墅圖片,二層別墅效果圖及設計圖
占地:153平方米
農村13萬元二層小樓圖,簡單易建,造價低
占地:110平方米
鄉村兩層半別墅設計圖,一層160平,主體30萬左右
占地:168平方米左右
農村自建超漂亮中式四合院別墅設計圖,22X25米
占地:473平方米
150平左右新農村自建房設計圖,含外觀效果圖
占地:150平方米
100來平復式旋轉樓梯二層簡歐別墅設計圖,戶型實用
占地:101.523平方米
農村三間一層別墅設計圖,經濟實用還好看
占地:139.56平方米
背面不開窗二層別墅設計圖,對稱設計簡單好看,眾多建房者的選
占地:183.79平方米
豪華大氣農村三層別墅圖紙,帶車庫、露臺,占地200平方米左右
占地:207平方米
農村三層帶地下室住宅設計圖及圖片,房內設計了兩個套間
占地:210平方米
最新小別墅設計圖,復式三層,外觀非常漂亮
占地:158平方米
小戶型兄弟雙拼別墅房屋設計圖,帶外觀效果圖
占地:150平方米
2026二層農村新款別墅戶型圖,占地不到110平米
占地:110平方米
120平方米新農村四層別墅設計圖紙12X10米50萬以內
占地:120平方米
160平方米農村三層別墅CAD設計圖紙及效果圖,13.7x12.6米
占地:160平方米
造型新穎漂亮的農村二層現代風別墅設計圖,老少皆宜的外觀
占地:144.54平方米
推薦:10套新農村自建房設計圖,2026年最新設計
閱讀次數:4825737次
100套鄉村別墅圖片大全,2026年最新設計
閱讀次數:2492203次
6款農村蓋一層平房的設計圖,10萬元就能建起來
閱讀次數:1852637次
這11個一層農村自建房別墅火爆了朋友圈!我最喜歡戶型十!你呢
閱讀次數:750268次
農村6萬元建一層小別墅圖,你敢相信嗎
閱讀次數:567686次
農村5萬塊就能自建房,6套普通房子設計圖分享,你沒看錯!
閱讀次數:419410次
8套農村漂亮三間平房圖片,非常適合在農村修建!
閱讀次數:411197次
農村自建房化糞池怎么做?附方案及施工過程
閱讀次數:391783次
農村一層三間平房設計圖,告別土氣養老房,讓人忍不住點贊
閱讀次數:350581次
新農村二層樓房圖片造價12萬,挑一套回家建房吧!
閱讀次數:349126次
