
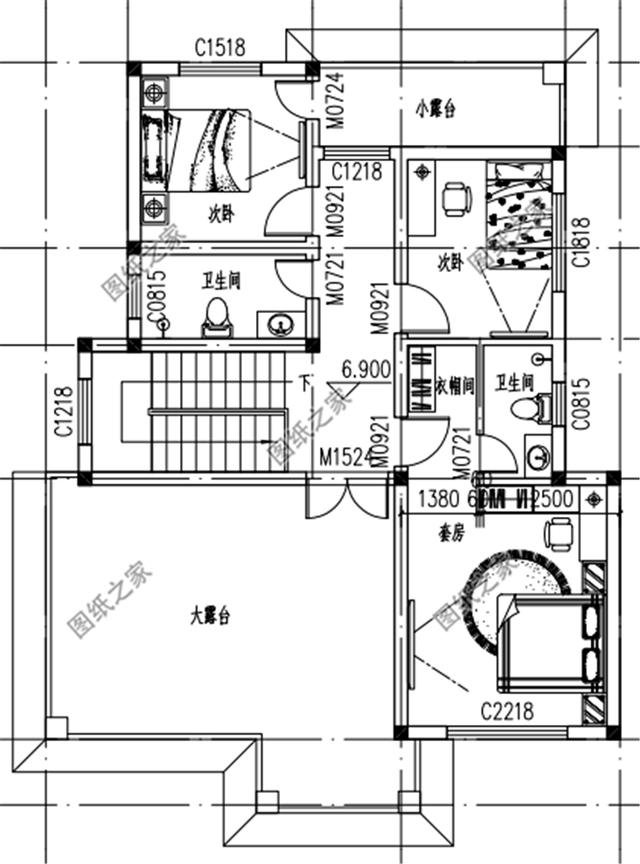
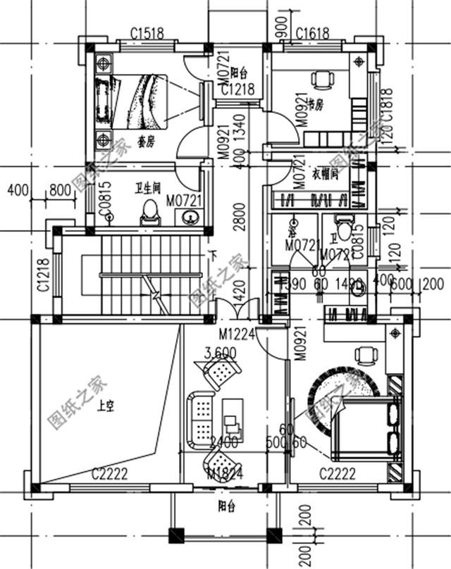
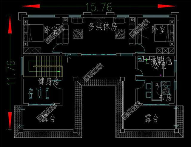
款式一:面寬9米的小別墅設計圖紙面寬9米二層農村自建房戶型圖,復式客廳,帶茶室和健身房。二層為主要的居住空間,設有三個臥室,朝南設置露臺,可以作為家中乘涼休閑的戶外空間,三層健身區可放置健身器材,方便父母鍛煉身體,茶室可以促進家人感覺和接待客人,露臺設在南面,無西曬,打造一個空中花園。 ![]() 占地面積:9m*13.2m,114.26平方米左右; 建筑層高:二層; 建筑高度:8.961米(含屋頂); ![]() ![]() ![]() 設計功能: 一層戶型:客廳、廚房、餐廳、父母房(帶衛生間)、衛生間; 二層戶型:客廳挑空、活動室、起居室、臥室(帶衛生間)、臥室、衛生間、露臺; 三層戶型:茶室、健身房、臥室、衛生間、露臺; 款式二:農村三層新中式農村別墅設計圖三層新中式農村別墅圖紙設計圖,二層有四間臥室且彼此不相鄰,能夠更好 ![]() 占地面積:15.76m*11.76m,133.64平方米左右; 建筑層高:三層; 建筑高度:12.322米(含屋頂); ![]() ![]() ![]() 設計功能: 一層戶型:客廳、神位、廚房、餐廳、儲物室、娛樂室、休息間、臥室(帶衛生間)、衛生間; 二層戶型:內庭上空、客廳、臥室x2、臥室(帶衛生間)x2、衛生間; 三層戶型:多媒體房、書房、健身房、衛生間、臥室x2、露臺x2; 款式三:115平方米農村三層別墅設計圖115平方米農村三層別墅設計圖,中式風格,客廳挑空設計,一層有專門為父母留出來的套房,三層帶有大露臺,室內布局好,空間利用率高,蓋一棟就是享受。 ![]() 占地面積:10.5m*13.6m,115平方米左右; 建筑層高:三層; 建筑高度:11.56米(含屋頂); ![]() ![]() ![]() 設計功能: 一層戶型:門廊、玄關、客廳、餐廳、廚房、儲物室、父母房(帶衛生間)、衛生間、洗衣房; 二層戶型:客廳上空、臥室(帶衛浴)、套房(帶陽臺)、書房、衣帽間、衛生間、陽臺; 三層戶型:套房(帶衣帽間、衛生間)、臥室x2、衛生間、大小露臺; 介紹完了100至140平米三層別墅圖片,大家比較鐘意哪款呢,歡迎下方留言討論。
圖紙之家-專注農村別墅/自建房設計18年,集合國內200余位經驗豐富的設計師,被評為口碑最好的農村建筑設計公司! |

豪華雙拼三層別墅設計圖,在農村建一棟,將是最靚的風景!
占地:186.85平方米
農村四間兩層樓房設計圖,外觀時尚,戶型實用
占地:180平方米
一層帶地下室雙拼別墅設計圖,理想鄉村生活的標配
占地:416平方米
客廳中空三層復式別墅房屋設計圖,帶外觀效果圖
占地:145平方米
實用型二層別墅設計方案,占地120平米簡單大方最耐看
占地:120平方米
方正對稱二層農村自建別墅施工圖,經濟實用舒適大氣
占地:129.6平方米
農村一層半房屋設計圖,帶外觀效果圖,外觀時尚
占地:155平方米
新農村三層小別墅設計圖紙,占地160平左右,好看不貴
占地:160平方米
農村二層半別墅設計圖,簡單實用,造價低
占地:140平方米
大面寬一層別墅設計圖紙,新中式風格兩款戶型
占地:多戶型可選
面寬11米超實用的農村一層別墅設計圖,南北通透造價不高
占地:110.47平方米
網紅中式一層三合院別墅設計圖,白墻黛瓦古典大氣,讓人心曠神
占地:248.82平方米
新中式風格農村自建房二層設計圖,15.5米乘12米
占地:186平方米
鄉下建房一層半戶型圖,占地160平米,帶閣樓
占地:多種戶型
最新網紅二層別墅,寬敞時尚沉穩大氣,布局實用正好滿足您的需
占地:110平方米
90平小戶型四層房屋設計圖,農村自建別墅推薦
占地:90平方米
農村三間四層樓房設計圖,農村輕奢型四層別墅
占地:160平方米
農村二層住宅樓圖紙及效果圖,帶地下室,戶型好
占地:220平方米
高端農村三層歐式房屋設計圖紙,帶車庫,帶露臺
占地:163平方米
帶車庫鄉下雙拼別墅設計圖,三層造型漂亮大全
占地:256平方米
推薦:10套新農村自建房設計圖,2026年最新設計
閱讀次數:4825737次
100套鄉村別墅圖片大全,2026年最新設計
閱讀次數:2492203次
6款農村蓋一層平房的設計圖,10萬元就能建起來
閱讀次數:1852637次
這11個一層農村自建房別墅火爆了朋友圈!我最喜歡戶型十!你呢
閱讀次數:750268次
農村6萬元建一層小別墅圖,你敢相信嗎
閱讀次數:567686次
農村5萬塊就能自建房,6套普通房子設計圖分享,你沒看錯!
閱讀次數:419410次
8套農村漂亮三間平房圖片,非常適合在農村修建!
閱讀次數:411197次
農村自建房化糞池怎么做?附方案及施工過程
閱讀次數:391783次
農村一層三間平房設計圖,告別土氣養老房,讓人忍不住點贊
閱讀次數:350581次
新農村二層樓房圖片造價12萬,挑一套回家建房吧!
閱讀次數:349126次
