
|
農村建房實用,簡潔大氣的戶型最受歡迎,雖說農村大多數是獨棟房屋,不過采光也是首要,要采光落地窗自然不能少,露臺也必須要有。下面小編要給大家分享一款40萬以內11×12米三層帶挑空客廳+露臺歐式農村別墅施工效果圖 圖紙詳情 層數: 三層 結構形式: 框架結構 主體造價: 32-40萬 開間: 10.8米(不含門柱) 進深: 11.5米 占地面積: 133.39平方米 總建筑面積: 325.84平方米
本戶型外墻采用淺黃色裝飾,屋頂坡面 設計,采用厚重的紅色,深淺合理搭配,設有有多個拱形落地窗,室內布局合理。一層客廳挑空設計,寬敞明亮,二層設有休息廳,每層樓的主臥均帶有獨立衛生,使用起來更方便,設有輕盈的采光窗,露臺、陽臺的設計和自然的互動,符合農村建房。 設計功能 及平面圖展示
一層平面圖 一層: 玄關、挑空客廳、廚房、餐廳、主臥(帶衛生間)、臥室、公衛
二層平面圖 二 層: 休息廳(帶陽臺)、主臥(帶衛生間)、次臥×2、公衛
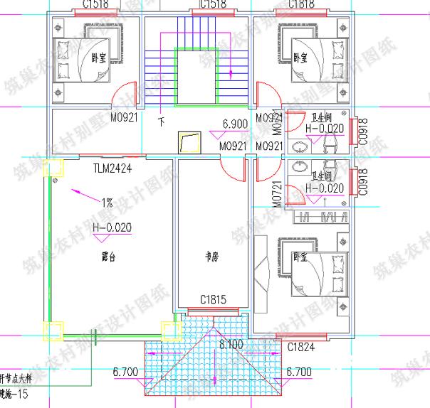
三層平面圖 三層: 主臥(帶衛生間)、次臥×2、書房、露臺、公衛 全套施工圖包括: 建 筑 圖: 包含各層平面圖、各立面圖、剖面圖、樓梯大樣圖、門窗尺寸、各節點大樣等 結 構 圖: 包含地基、梁、柱、樓板詳細配筋及做法、節點配筋圖等 給排水圖:包含每層給排水平面圖及大樣圖、說明等 電 氣 圖: 包含每層照明平面圖、插座平面圖、弱電平面圖及系統圖、說明等 圖紙之家-專注農村別墅/自建房設計18年,集合國內200余位經驗豐富的設計師,被評為口碑最好的農村建筑設計公司! |

四開間一層自建房設計圖,四臥二廳+棋牌室+書房
占地:181.29平方米
13x13米簡單二層帶閣樓最新別墅設計圖,精致美觀
占地:158.5平方米
帶小院新農村房屋設計圖紙,三層別墅推薦
占地:115平方米
2026最好看的農村三層樓房圖片及施工圖紙,客廳寬敞
占地:120平方米
120平方米新農村四層別墅設計圖紙12X10米50萬以內
占地:120平方米
帶堂屋新農村三層房屋別墅設計圖紙,帶外觀效果圖
占地:214平方米
100平米兩間三層樓房設計圖,農村蓋房舒服實用最重要
占地:100平方米
農村三層雙拼別墅戶型圖設計圖,整體外觀氣派
占地:220平方米
簡單實用二層自建房子設計圖,主體造價僅17萬
占地:106.387平方米
“L”字形二層別墅設計圖,獨立餐廚加連體露臺,太美了
占地:多戶型可選
歐式新農村三層復式樓自建房別墅圖紙,旋轉樓梯設計
占地:128平方米
165平方米農村帶陽光房的二層小別墅設計圖紙帶外觀圖18.16米*9.
占地:166平方米
二層簡歐別墅設計圖挑空客廳+旋轉樓梯,看過的人都說氣派
占地:154.699平方米
農村二層中式三合院設計圖,這才是國人該建的房子
占地:175.58平方米
豪華大氣三層農村房屋設計圖,對稱的主體設計大氣恢宏
占地:240平方米
古典韻味的四層房屋設計圖,占地140平米左右,這樣的外觀配上紅
占地:140平方米
帶地下室獨棟三層高端別墅房圖紙設計圖,復式客廳旋轉樓梯
占地:146.145平方米
最漂亮五間一層自建別墅設計圖,布局實用顏值高!
占地:多戶型可選
簡潔干練三層現代風平頂別墅設計圖,8X15米
占地:115.1平方米
二層歐式農村小別墅設計圖,9.5米乘13米,戶型好到鄰居求圖紙
占地:118.32平方米
推薦:10套新農村自建房設計圖,2026年最新設計
閱讀次數:4825737次
100套鄉村別墅圖片大全,2026年最新設計
閱讀次數:2492203次
6款農村蓋一層平房的設計圖,10萬元就能建起來
閱讀次數:1852637次
這11個一層農村自建房別墅火爆了朋友圈!我最喜歡戶型十!你呢
閱讀次數:750268次
農村6萬元建一層小別墅圖,你敢相信嗎
閱讀次數:567686次
農村5萬塊就能自建房,6套普通房子設計圖分享,你沒看錯!
閱讀次數:419410次
8套農村漂亮三間平房圖片,非常適合在農村修建!
閱讀次數:411197次
農村自建房化糞池怎么做?附方案及施工過程
閱讀次數:391783次
農村一層三間平房設計圖,告別土氣養老房,讓人忍不住點贊
閱讀次數:350581次
新農村二層樓房圖片造價12萬,挑一套回家建房吧!
閱讀次數:349126次
