
|
新農村建設持續推進,基礎設施建設不斷優化,可是很多人的住房仍然是八九十年代建造的,到現在已經有三十多年了,外觀早就已經破舊不堪,而且也無法保證安全性。所以很多家庭順應潮流,修建了精美的別墅,如果你還在坐等觀望,可能就要淘汰落伍了。 本期給大家推薦5套三層自建別墅設計,美觀大方、舒適實用,非常適合農村自建房! 第一套
別墅效果圖 占地面積:11.60m*11.90m,占地面積125平方米左右; 建筑高度:13.02米(含屋頂); 設計功能: 一層:堂房(隔斷可以去掉,更敞亮)、客廳、廚房、餐廳、臥室x2、衛生間; 二層:起居室、娛樂室、臥室x3、書房、衛生間、陽臺; 三層:起居室、娛樂室、臥室x3、儲藏間、衛生間、陽臺;
一層平面圖
二層平面圖
三層平面圖
立面圖 第二套
別墅效果圖 占地面積:9.90m*11.00m,110平方米左右; 建筑高度:12.34米(含屋頂); 設計功能: 一層:客廳、餐廳、廚房、臥室、衛生間、儲藏間(樓梯下)、車庫; 二層:客廳、臥室x3、衛生間、露臺; 三層:主臥(帶衣帽間和露臺)、臥室x2、衛生間、大露臺(屋頂花園);
一層平面圖
二層平面圖
三層平面圖
立面圖 第三套
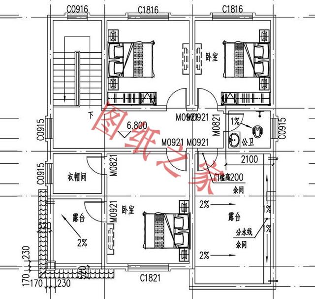
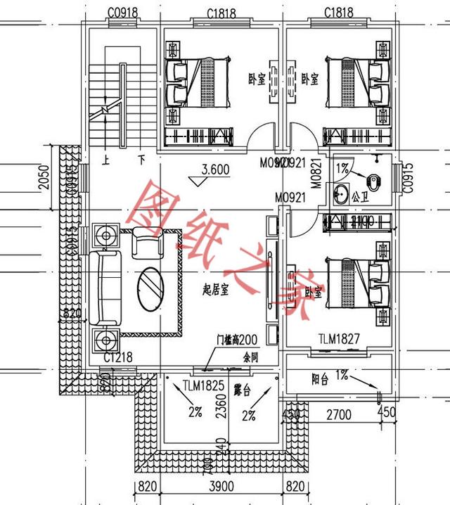
別墅效果圖 占地面積:11.40m*13.2m,占地150平左右; 建筑高度:11.325米(含屋頂); 設計功能: 一層:門廳、客廳、廚房、餐廳、衛生間、臥室X2; 二層:起居室、主臥(帶衣帽間、衛生間)、露臺、小臥室、陽臺、書房、衛生間、臥室; 三層:臥室X2、陽臺、露臺X2、活動室、衛生間; 一層平面圖
二層平面圖
三層平面圖
立面圖 第四套
別墅效果圖 占地面積:11.40m*12.00m,一層建筑面積130平方米左右; 建筑高度:11.54米(含屋頂); 設計功能: 一層:門廳、客廳、廚房、餐廳、臥室、衛生間、車庫; 二層:客廳上空、主臥、臥室x3、衛生間、陽臺; 三層:臥室x4、衛生間、曬衣間、露臺、陽臺;
一層平面圖
二層平面圖
三層平面圖
立面圖 第五套
別墅效果圖 占地面積:15.60m*9.50m(含車庫),占地148平左右;12.00m*9.50m(不含車庫),占地115平左右; 建筑高度:13.05米(含屋頂); 設計功能: 一層:堂屋、客廳、廚房、餐廳、主臥(帶衛生間)、衛生間、車庫; 二層:起居室(可以去掉隔斷)、主臥(帶衛生間)、臥室x3、衛生間、陽臺、陽光房(車庫上); 三層:起居室(可以去掉隔斷)、主臥(帶衛生間)、書房、娛樂廳、衛生間、陽臺、露臺;
一層平面圖
二層平面圖
三層平面圖
立面圖 這5套別墅的設計圖,你最喜歡哪一套? 圖紙之家-專注農村別墅/自建房設計18年,集合國內200余位經驗豐富的設計師,被評為口碑最好的農村建筑設計公司! |

新農村現代簡約別墅建筑設計圖紙(含外觀效果圖),28萬左右
占地:107平方米
一層鄉村別墅設計戶型圖,占地100平左右,外觀很時尚
占地:100平方米左右
獨棟兩層歐式別墅設計圖紙(效果圖+建筑施工圖)
占地:125平方米
13×16米農村自建樓房三層別墅戶型設計圖,大氣
占地:168平方米
獨棟經濟型二層小別墅房屋設計圖,含全套施工圖效果圖
占地:多種戶型
三層別墅40萬左右氣派的外觀效果圖,含全套施工設計圖
占地:161.46平方米
簡約而不簡單的二層新中式鄉墅設計圖,占地150平左右
占地:150.78平方米
180平方米漂亮大氣三層雙拼別墅設計圖,自建房圖片
占地:186平方米
2026帶車庫三層雙拼別墅房屋設計圖,配色淡雅低調
占地:224平方米
80多平米二層小型自建房設計圖,經濟舒適別具一格
占地:84.48平方米
別致美觀的簡歐二層別墅房屋設計圖,含外觀效果圖
占地:145平方米
145平方米新農村二層別墅設計效果圖及施工圖,12.6米x11.4米
占地:147平方米
新式帶挑空客廳三層鄉村別墅設計圖,占地170平左右
占地:170平方米
新中式高端豪宅三層別墅自建房設計圖,大戶型經典
占地:270平方米左右
帶大套間新農村二層別墅自建房設計圖紙帶效果圖
占地:185平方米
面寬8米的新農村三層自建房設計圖平屋頂,全套cad圖紙+效果圖
占地:115平方米
地中海風格二層別墅房屋設計圖,帶外觀效果圖
占地:150平方米
農村房子設計圖三層獨棟別墅方案,占地130平方米
占地:130平方米
預算30萬左右的新農村三層房屋設計圖推薦,含外觀效果圖
占地:117平方米
130平方米新農村三層房屋設計圖紙,外觀簡單大方
占地:130平方米
推薦:10套新農村自建房設計圖,2026年最新設計
閱讀次數:4825737次
100套鄉村別墅圖片大全,2026年最新設計
閱讀次數:2492203次
6款農村蓋一層平房的設計圖,10萬元就能建起來
閱讀次數:1852637次
這11個一層農村自建房別墅火爆了朋友圈!我最喜歡戶型十!你呢
閱讀次數:750268次
農村6萬元建一層小別墅圖,你敢相信嗎
閱讀次數:567686次
農村5萬塊就能自建房,6套普通房子設計圖分享,你沒看錯!
閱讀次數:419410次
8套農村漂亮三間平房圖片,非常適合在農村修建!
閱讀次數:411197次
農村自建房化糞池怎么做?附方案及施工過程
閱讀次數:391783次
農村一層三間平房設計圖,告別土氣養老房,讓人忍不住點贊
閱讀次數:350581次
新農村二層樓房圖片造價12萬,挑一套回家建房吧!
閱讀次數:349126次
