
|
簡單大氣的戶型總是比較符合農村建房者的口味的,對于普通的農村家庭來說,建一套房子,也許就耗費了大半輩子的積蓄,建房成本有限,豪華的戶型蓋不起,太簡單的戶型又不喜歡,今天小編就來給大家分享一款25萬9×11米帶車庫簡單大氣三層農村自建房施工圖,一起來看詳細介紹。 圖紙詳情 層數: 三層 結構形式: 磚混結構 主體造價: 25萬 開間: 9.2米 進深: 10.87米 占地面積: 100平方米 建筑面積: 280平方米
效果圖 這款自建房設計圖簡約大氣,采用比較低調的顏色裝飾,二三層白色和淡黃色對半裝飾,屋頂設計存在高差,使得外觀看起來具有高低錯落的層次感。一樓設有走廊,二樓有大陽臺,三樓有露臺,住戶擁有充足的活動空間。布局上合理利用空間,各功能分區明確,設有車庫,方便停放車輛。 設計功能
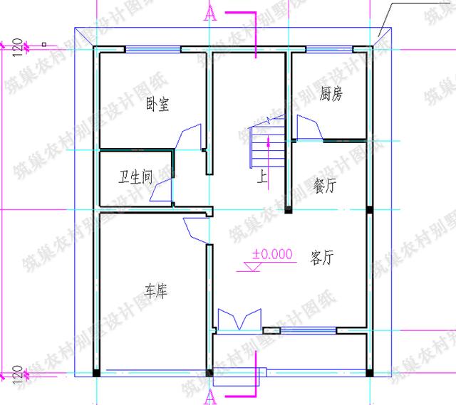
一層平面圖 一 層: 車庫,客廳,臥室,廚房,餐廳,公共衛生間
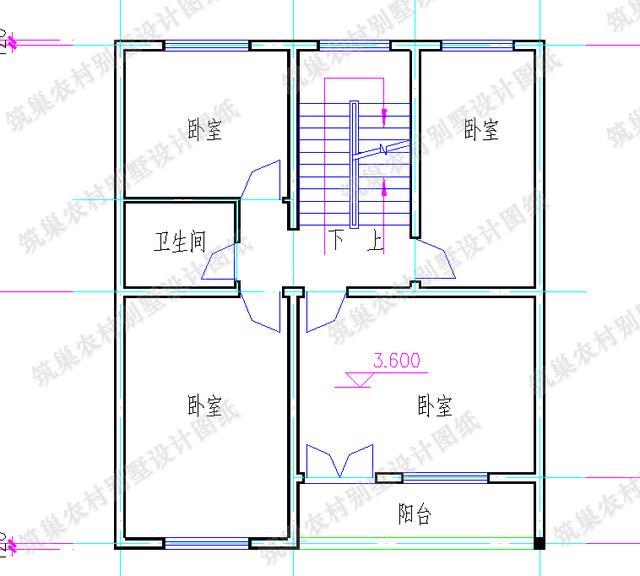
二層平面圖 二 層: 四間臥室(其中一個臥室帶陽臺)、公共衛生間
三層平面圖 三 層: 3臥室,露臺,公共衛生間 圖紙之家-專注農村別墅/自建房設計18年,集合國內200余位經驗豐富的設計師,被評為口碑最好的農村建筑設計公司! |

氣派的歐式風格三層房子設計圖紙,外觀圖太漂亮了
占地:132平方米
140平中式徽派一層別墅設計圖,一層照樣建這樣漂亮
占地:140平方米
二層復式樓房設計圖,平實接地氣的平面布局
占地:180平方米
三層兄弟雙拼別墅設計圖,外觀大氣漂亮,顏色搭配協調,一層為
占地:270平方米
農村10萬元一層小別墅設計圖紙,戶型實用又合理
占地:130平方米
經典三層雙拼樓房設計圖,經典外觀,經典戶型
占地:225平方米
農村一層平房別墅設計圖紙,130平米左右,主體十幾萬
占地:130平方米左右
二層歐式別墅設計圖,挑空客廳+柴火灶,12.5米乘12米
占地:131.25平方米
140平二層帶閣樓別墅設計方案圖,外觀圖片色彩明快
占地:140平方米
兄弟雙拼別墅設計戶型圖及設計方案圖,帶外觀效果圖,外觀好看
占地:185平方米(單棟)
鄉村三層簡單自建房子設計圖,全部建好34萬左右,外觀簡潔
占地:127.912平方米
農村120平方房子設計圖,三層房屋設計圖精選
占地:120平方米
經典實用的新農村三層房屋設計圖紙,推薦自建使用
占地:165平方米
帶堂屋設計一層5間平房新農村自建別墅效果圖全套施工圖
占地:198.41平方米
一層半小別墅設計圖帶效果圖,農村自建帶閣樓一層半方案
占地:155平方米
大開間小進深的一層別墅設計圖,進深僅8.7米,獨立餐廚照樣美觀
占地:130.32平方米
簡約現代的二層別墅自建房設計圖,13米乘9米
占地:124平方米
130平新農村三層房屋設計圖紙,預算30萬以內,蓋房推薦
占地:132平方米
140平方米清新別致新農村兩層房屋設計圖紙大全12x13米
占地:140平方米
新中式二層雙拼樓房設計圖,單戶面積100平米左右,實用美觀
占地:200平方米
推薦:10套新農村自建房設計圖,2026年最新設計
閱讀次數:4825737次
100套鄉村別墅圖片大全,2026年最新設計
閱讀次數:2492203次
6款農村蓋一層平房的設計圖,10萬元就能建起來
閱讀次數:1852637次
這11個一層農村自建房別墅火爆了朋友圈!我最喜歡戶型十!你呢
閱讀次數:750268次
農村6萬元建一層小別墅圖,你敢相信嗎
閱讀次數:567686次
農村5萬塊就能自建房,6套普通房子設計圖分享,你沒看錯!
閱讀次數:419410次
8套農村漂亮三間平房圖片,非常適合在農村修建!
閱讀次數:411197次
農村自建房化糞池怎么做?附方案及施工過程
閱讀次數:391783次
農村一層三間平房設計圖,告別土氣養老房,讓人忍不住點贊
閱讀次數:350581次
新農村二層樓房圖片造價12萬,挑一套回家建房吧!
閱讀次數:349126次
