
|
在城里隨便買一套100平米左右的房子,都需要100萬左右,而在鄉下建一座一層的小別墅只要20萬。這可真是一個讓城里人看哭的價格啊,只恨不是生在農村,只恨自己沒有宅基地。 今天給大家挑選了5套一層別墅設計,外觀精致漂亮,造價經濟實惠而且住著很舒服。 第一套
正面效果圖
背面效果圖
鳥瞰圖 占地面積:14.0m*9.8m,145平方米左右; 建筑高度:6.59米(含屋頂); 設計功能:客廳、餐廳、廚房、、臥室×4、衛生間×2;
平面圖 第二套
正面效果圖
背面效果圖
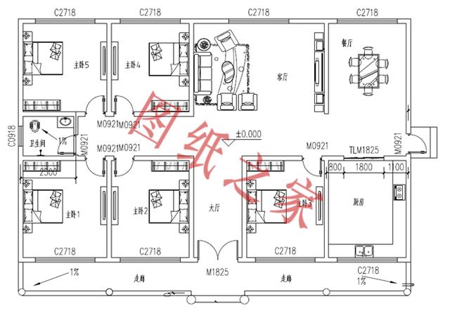
鳥瞰圖 占地面積:17.5m*12.3m,194平方米左右; 建筑高度:6.4米(含屋頂); 設計功能:過廳、客廳、餐廳、廚房、臥室×5、衛生間;
平面圖 第三套
正面效果圖
背面效果圖
鳥瞰圖 占地面積:16.2m*12.2m,200平方米左右; 建筑高度:5.6米(含屋頂); 設計功能:客廳、餐廳、廚房、、臥室(帶衛生間)、臥室×2、書房、衛生間;
平面圖 第四套
正面效果圖
背面效果圖
鳥瞰圖 占地面積:18.1m*12.1m,210平方米左右; 建筑高度:6.6米(含屋頂); 設計功能:客廳、餐廳、廚房、臥室×2、老人房×2、衛生間×2、洗衣房、棋牌室;
平面圖 第五套
正面效果圖
背面效果圖
鳥瞰圖 占地面積:16.0m*10.0m,160平方米左右; 建筑高度:6.0米(含屋頂); 設計功能:客廳、餐廳、廚房、、臥室(帶衛生間)×2、臥室×2、衛生間、儲藏間;
平面圖 這5套別墅的設計圖,你最喜歡哪一套? 圖紙之家-專注農村別墅/自建房設計18年,集合國內200余位經驗豐富的設計師,被評為口碑最好的農村建筑設計公司! |

12米面寬一層農村別墅設計圖,實用又舒適
占地:110.41平方米
100平左右鄉下三層樓房設計圖,戶型方正,小面積宅基地的福音
占地:100平方米
一層半帶閣樓別墅設計圖,悠閑舒適,養老度假皆可
占地:161.94平方米
農村自建一層房子設計圖,大開間小進深,20米x10米
占地:188平方米
農村三層樓房圖造價26萬,客廳中空,占地90平米
占地:90平方米
兄弟共建一層雙拼平房設計圖,省錢省心又可相互照應
占地:177.27平方米
高端大氣三層雙拼自建房設計圖,外觀漂亮,240平左右
占地:240平方米
帶屋頂平臺的一層農村小別墅圖,有閣樓有露臺
占地:152平方米
150平米二層鄉村小別墅圖,戶型合理,外觀清新淡雅
占地:150平方米
160平方米歐式一層半別墅施工設計圖紙13X13米
占地:160平方米
二開間二層別墅設計圖,面寬9米,不可多得的好選擇!
占地:93.24平方米
120平方米新農村四層房屋設計圖紙和效果圖
占地:120平方米
四層農村別墅設計圖,一二層都有廚房和餐廳的戶型方案
占地:128.52平方米
130平米帶小院一層自建房屋設計圖,省錢實用,養老房首選
占地:130平方米左右
經典小戶型新農村房屋住宅設計圖,10萬左右
占地:80平方米
高端大氣三層別墅設計圖,建好就是村里最靚的
占地:120平方米
150平方米自建現代二層別墅施工設計圖帶外觀圖,15x10米
占地:多戶型可選
經典美式風100平米二層小別墅設計方案,鄉村建房首選
占地:100.17平方米
歐式二層5大間別墅設計圖,新穎獨特的外觀,面寬20米
占地:180.14平方米
現代三層復式小別墅設計圖及外觀圖片,25萬造價
占地:105平方米
推薦:10套新農村自建房設計圖,2026年最新設計
閱讀次數:4825737次
100套鄉村別墅圖片大全,2026年最新設計
閱讀次數:2492203次
6款農村蓋一層平房的設計圖,10萬元就能建起來
閱讀次數:1852637次
這11個一層農村自建房別墅火爆了朋友圈!我最喜歡戶型十!你呢
閱讀次數:750268次
農村6萬元建一層小別墅圖,你敢相信嗎
閱讀次數:567686次
農村5萬塊就能自建房,6套普通房子設計圖分享,你沒看錯!
閱讀次數:419410次
8套農村漂亮三間平房圖片,非常適合在農村修建!
閱讀次數:411197次
農村自建房化糞池怎么做?附方案及施工過程
閱讀次數:391783次
農村一層三間平房設計圖,告別土氣養老房,讓人忍不住點贊
閱讀次數:350581次
新農村二層樓房圖片造價12萬,挑一套回家建房吧!
閱讀次數:349126次
