
|
每個人都希望自己家寬敞舒適,因為比起那些小戶型的房子,住在大房子里更能讓人心情愉悅,家里有小孩的話,也能給小孩子更多的活動空間,今天小編要給大家介紹的這款三層自建房設計圖,占地將近130平米,算是比較大的戶型,造價不高,30萬可建成主體,一起來看外觀設計及室內布局。 圖紙詳情 層數: 三層 結構形式: 磚混結構 主體造價: 30萬 開間: 12.5米 進深: 11.8米 占地面積: 126平方米 建筑面積: 346平方米
效果圖 本戶型配色比較簡單,一樓外墻采用鮮艷的紅色墻漆裝飾,二三層使用黃色墻漆涂刷,結構設計高低有序,錯落有致,二三層均設有露臺,擁有充足的活動空間。功能設計方面,一樓設有車庫,每層樓均設有客廳,室內采光透氣,布局合理,功能齊全。施工難度不高,適合農村建房。 設計功能
一層平面圖 一 層: 門廳,客廳,臥室,廚房,餐廳,公衛,車庫
二層平面圖 二 層: 起居室,二臥室,書房,雜物間,公衛,陽臺
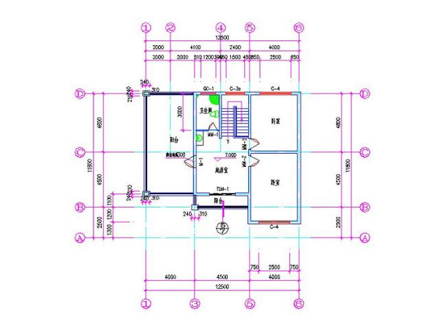
三層平面圖 三 層: 起居室,二臥室,公衛,露臺 圖紙之家-專注農村別墅/自建房設計18年,集合國內200余位經驗豐富的設計師,被評為口碑最好的農村建筑設計公司! |

簡歐二層別墅設計圖紙含效果圖片,寶家鄉墅經典風格
占地:137.34平方米
新中式120平米農村20萬元二層小樓圖,外觀柔和而雅致
占地:120平方米
10米×13米最好看的農村三層樓房圖,客廳中空
占地:124平方米
帶商鋪挑高的三層別墅房屋設計圖,商鋪挑高,層高比較高
占地:118平方米
雙拼豪華高端三層別墅設計圖,外觀效果圖大氣
占地:300平方米
20萬左右農村雙拼別墅住宅設計圖,簡單小戶型設計
占地:120平方米
二層農村雙拼別墅帶露臺設計圖,20×11.8米,單戶110平米
占地:220平方米
農村自建房三間設計圖,花錢少效果好12米乘9米,經濟適用性價比
占地:108.9平方米
現代風格四合院別墅設計圖,回老家建一棟吧
占地:177.89平方米
經典小戶型二層新農村房屋設計圖紙,客廳中空,造價20萬
占地:94平方米
農村仿古四合院設計圖自建房,外觀中式古樸典雅
占地:378平方米
12X14米四層農村自建別墅設計圖,功能設計豐富齊全
占地:157平方米
11x9三層別墅房屋設計圖,含效果圖片
占地:97平方米
一層帶架空層的農村別墅設計圖,防潮、停車、放農具全都滿足
占地:163.78平方米
兩開間自建別墅設計圖,占地小造型簡約,不愁宅基地面寬小了
占地:118.4平方米
125平方米新農村二層房屋施工設計CAD圖紙加效果圖
占地:125平方米
130平方米農村兩層別墅圖紙及效果圖12X11米
占地:133平方米
造價便宜的二層雙拼別墅設計圖,造型簡約大氣,進深10米
占地:SP23059
三層帶車庫樓中樓建房別墅圖紙,占地130平米左右,戶型室內布局
占地:130平方米
農村三層雙拼房屋建筑施工設計圖紙,帶車庫
占地:180平方米
推薦:10套新農村自建房設計圖,2026年最新設計
閱讀次數:4825737次
100套鄉村別墅圖片大全,2026年最新設計
閱讀次數:2492203次
6款農村蓋一層平房的設計圖,10萬元就能建起來
閱讀次數:1852637次
這11個一層農村自建房別墅火爆了朋友圈!我最喜歡戶型十!你呢
閱讀次數:750268次
農村6萬元建一層小別墅圖,你敢相信嗎
閱讀次數:567686次
農村5萬塊就能自建房,6套普通房子設計圖分享,你沒看錯!
閱讀次數:419410次
8套農村漂亮三間平房圖片,非常適合在農村修建!
閱讀次數:411197次
農村自建房化糞池怎么做?附方案及施工過程
閱讀次數:391783次
農村一層三間平房設計圖,告別土氣養老房,讓人忍不住點贊
閱讀次數:350581次
新農村二層樓房圖片造價12萬,挑一套回家建房吧!
閱讀次數:349126次
