
|
農村建房,有了宅基地沒有圖紙,不免有些遺憾,圖紙對于蓋房來說確實很重要,。在農村,并不是所有的別墅都特別的漂亮,受限于當地的設計和施工水平,難免會有點不倫不類。想要建出自己滿意的別墅,并不是件那么簡單的事情,所以農村建房有必要設計一份滿意的圖紙。 現在為大家介紹3款13x11米三層農村自建樓房戶型圖。 01 圖紙屬性 層數:二層帶閣樓 結構形式:磚混結構 主體造價:20-25萬 開間:12 米 進深:10.8米 占地面積:126.43平方米 建筑面積:312.77平方米
本戶型是磚混結構的農村建筑,外觀別致精美,室內清新舒適,功能齊全,空間分布均勻合理,是理想的住所。 平面布局圖:
一層平面圖 一層:門廳、走廊、客廳、餐廳(帶廚房)、臥室(帶儲藏室)、洗衣房(帶內衛)。
二層平面圖 二層:主臥室(帶內衛及書房)、客房(帶陽臺)、兒童臥室、走入式衣柜、公共衛生間。 閣樓層:二間客房、露臺。 02 房屋介紹 層數: 三層 結構形式: 框架結構 主體造價: 28-33萬 開間: 12.3米 進深:10.2米(含門柱進深12米) 占地面積: 130.91平方米 建筑面積:385.68平方米
本戶型是農村較為簡約房屋,露臺花園的設計增添了幾分大氣,采光效果極佳,是比較理想的農村別墅建房圖紙選擇。 功能設計
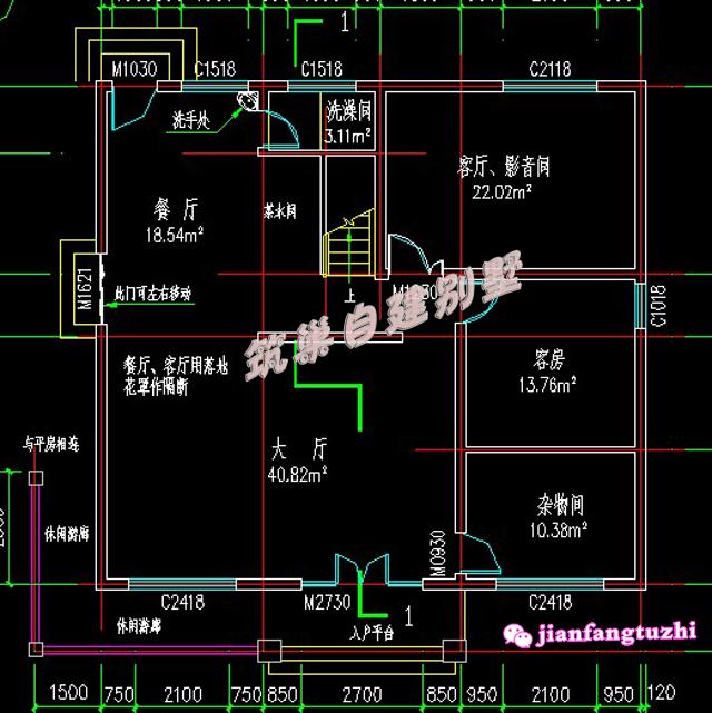
一層平面圖 一 層: 中堂、客廳、主網上、臥室、衛生間、餐廳(帶廚房)
二層平面圖 二 層: 客廳(帶陽臺)、臥室、主臥室(帶衣帽間)、臥室、書房、衛生間 三 層: 主臥室(帶衣帽間)、臥室、臥室、臥室(帶陽臺)、衛生間、露臺花園 03 戶型基本信息 開間:12米,進深:11米,一層使用面積:138.80平方米,建筑面積:367.2平方米。建筑高度:12.98m;屋頂形式:坡屋頂;建筑結構:磚混結構;
設計功能:
一層平面圖 一層,大廳、餐廳、客廳、客房、雜物間。 二層,主臥室、3個次臥室、起居室、衛生間、陽臺。 三層:2個臥室、健身房、客廳、屋頂花園、衛生間。 圖紙之家-專注農村別墅/自建房設計18年,集合國內200余位經驗豐富的設計師,被評為口碑最好的農村建筑設計公司! |

小型新中式二層小別墅圖紙設計方案,好看造價不高
占地:232.98平方米
自建一層農村別墅圖,經濟實用新選擇,建房必備參考戶型!
占地:142.88平方米
豪華三層別墅設計圖紙,全套施工方案帶效果圖
占地:130平方米
三層別墅40萬左右氣派的外觀效果圖,含全套施工設計圖
占地:161.46平方米
3款簡單舒適二層別墅設計圖,低調配色,造型簡單大氣
占地:多戶型可選
可以傳家的新中式二層別墅,經典耐看,再過幾十年也不過時
占地:146.81平方米
中式復古四層別墅房屋設計圖紙,含外觀效果圖
占地:90平方米
帶獨立廚房的二層自建房設計圖,大戶型方案
占地:233平方米
新農村兩層樓房設計圖,占地110平米,戶型簡單實用
占地:110平方米
農村三層雙拼別墅戶型圖設計圖,整體外觀氣派
占地:220平方米
面寬8米多小開間三層農村別墅設計圖,占地不足百平
占地:95.21
120平二層別墅房屋設計圖,造型美觀、現代
占地:120平方米
2026最新兄弟簡歐雙拼別墅設計圖紙,單戶130平米左右
占地:260平方米
155平方米新三層全套別墅設計資料,15x10米
占地:158平方米
經典美式風100平米二層小別墅設計方案,鄉村建房首選
占地:100.17平方米
小開間三層新中式小別墅設計圖,外觀圖優雅大氣,讓人心動!
占地:103.18平方米
面寬12米新中式三層別墅設計圖,回家建房就選它,全家人都愛的
占地:180平方米
三層帶露臺21萬別墅設計圖,占地面積100平米左右
占地:106平方米
100平方三層樓房設計圖及圖片,戶型設計簡約時尚
占地:100平方米
豪華雙拼三層別墅設計圖,在農村建一棟,將是最靚的風景!
占地:186.85平方米
推薦:10套新農村自建房設計圖,2026年最新設計
閱讀次數:4825737次
100套鄉村別墅圖片大全,2026年最新設計
閱讀次數:2492203次
6款農村蓋一層平房的設計圖,10萬元就能建起來
閱讀次數:1852637次
這11個一層農村自建房別墅火爆了朋友圈!我最喜歡戶型十!你呢
閱讀次數:750268次
農村6萬元建一層小別墅圖,你敢相信嗎
閱讀次數:567686次
農村5萬塊就能自建房,6套普通房子設計圖分享,你沒看錯!
閱讀次數:419410次
8套農村漂亮三間平房圖片,非常適合在農村修建!
閱讀次數:411197次
農村自建房化糞池怎么做?附方案及施工過程
閱讀次數:391783次
農村一層三間平房設計圖,告別土氣養老房,讓人忍不住點贊
閱讀次數:350581次
新農村二層樓房圖片造價12萬,挑一套回家建房吧!
閱讀次數:349126次
