
|
今天要給大家分享的這款35萬以內三層帶車庫12×11米4廳9臥農村自建房全套施工效果圖,戶型設計比較簡單,施工難度不高,對于農村建房來說,這種戶型是比較實際的,也受到很多人的歡迎,一起來看該戶型詳細介紹。 圖紙詳情 層數: 三層 結構形式: 磚混結構 主體造價: 32萬 開間: 12.34米 進深: 10.5米 占地面積: 120平方米 建筑面積: 360平方米
效果圖 該戶型設計規整大氣,正立面設有飄窗門廊,立體感極強,屋頂坡面設計,利于排水,一樓帶有車庫,二三層布局相同,公共設有9間臥室,對于大家庭來說居住空間綽綽有余,活動空間也很充足,有陽臺還有露臺,居住舒適。 設計功能
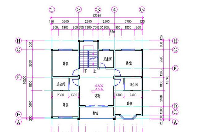
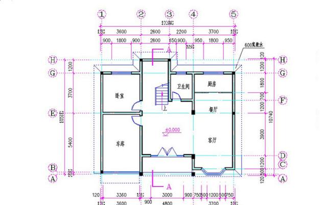
一層平面圖 一 層: 車庫、臥室、樓梯間、客廳、廚房、餐廳、衛生間
二層平面圖 二 層: 客廳、陽臺、臥室、臥室、衛生間、臥室(附衛生間)、臥室(附衛生間)
三層平面圖
三 層: 客廳、陽臺、臥室、臥室、衛生間、臥室(附衛生間)、臥室(附衛生間) 圖紙之家-專注農村別墅/自建房設計18年,集合國內200余位經驗豐富的設計師,被評為口碑最好的農村建筑設計公司! |

120平方米新農村四層房屋設計圖紙和效果圖
占地:120平方米
預算20萬左右三層別墅設計圖紙,新農村自建房推薦
占地:118平方米
現代風格二層別墅設計圖,外觀時尚、大氣
占地:153平方米
農村25萬別墅款式二層自建房設計圖,外觀簡約大氣
占地:多種戶型
巴洛克風格農村二層別墅設計圖(偏法式),對稱式設計,太講究
占地:210.25平方米
高端農村三層歐式房屋設計圖紙,帶車庫,帶露臺
占地:163平方米
帶堂屋二層小別墅設計圖紙帶外觀圖,13.6米x9米
占地:122.4平方米
120平方米新農村二層自建房屋設計圖紙大全14x9米
占地:120平方米
四間兩層農村別墅戶型圖,外觀時尚色調搭配和諧,占地超200平米
占地:212.95平方米
新中式三層雙拼別墅設計圖,外觀圖片美觀、大氣
占地:176平方米
歐式小別墅設計圖紙帶效果圖,二層歐式小別墅設計方案展示
占地:166平方米
農村一層帶小院房屋設計圖,帶院子一層自建房別墅戶型圖
占地:161.16平方米
鄉村一層房屋設計圖,養老還是一層好,多臥室的設計
占地:195平方米
230平(單戶115平)雙拼別墅房屋設計圖及效果圖大全
占地:230平方米
新中式二層別墅設計圖,農村最適合建的兩層小樓,13×12米
占地:143平方米
簡單大方四間二層小樓房設計圖,帶車庫,帶大露臺
占地:180平方米
農村現代新中式三合院設計圖及效果圖片,外觀好看極了
占地:多戶型可選
獨立餐廳廚房,平屋頂現代風格三層別墅設計圖
占地:159.02平方米
歐式三層別墅設計圖,低調奢華,實用布局,好設計不容錯過
占地:134.1平方米
農村16萬一層平房小院設計圖,左右對稱布局好,南北方都能建
占地:195.9平方米
推薦:10套新農村自建房設計圖,2026年最新設計
閱讀次數:4825737次
100套鄉村別墅圖片大全,2026年最新設計
閱讀次數:2492203次
6款農村蓋一層平房的設計圖,10萬元就能建起來
閱讀次數:1852637次
這11個一層農村自建房別墅火爆了朋友圈!我最喜歡戶型十!你呢
閱讀次數:750268次
農村6萬元建一層小別墅圖,你敢相信嗎
閱讀次數:567686次
農村5萬塊就能自建房,6套普通房子設計圖分享,你沒看錯!
閱讀次數:419410次
8套農村漂亮三間平房圖片,非常適合在農村修建!
閱讀次數:411197次
農村自建房化糞池怎么做?附方案及施工過程
閱讀次數:391783次
農村一層三間平房設計圖,告別土氣養老房,讓人忍不住點贊
閱讀次數:350581次
新農村二層樓房圖片造價12萬,挑一套回家建房吧!
閱讀次數:349126次
