
|
這套建房圖紙設計采用簡單的歐式風格,外墻使用清新 淡雅的淺綠色衛主色,搭配純凈的白色,雅致美觀,與周邊環境融為一體,屋頂大露臺設計為住戶提供充足活動空間,逢年過節還可以再樓頂組織燒烤等聚會。本戶型共設有8間臥室,滿足農村大家庭住房需求。
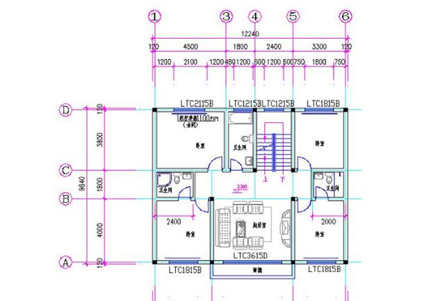
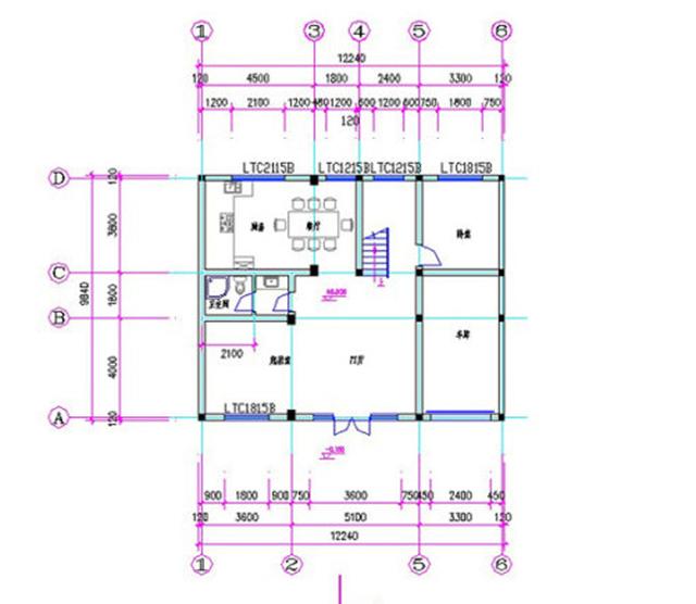
效果圖 層數: 三層 結構形式: 磚混結構 主體造價: 30萬 開間: 12.24米 進深: 9.84米 占地面積: 120平方米 建筑面積: 327平方米 設計功能
一層平面圖 一 層: 門廳、起居室、車庫、臥室、樓梯、廚房、餐廳、衛生間 門廳與客廳相連,這樣可以擴大空間感,車庫的位置可以開設一個小門通入室內,把車庫當臥室使用也是不錯的,廚房餐廳一體化設計,兩個功能區域連接在一起,方便下廚用餐。
二層平面圖 二 層: 起居室、臥室(附衛生間)、臥室、樓梯、衛生間、臥室、臥室(附衛生間) 二樓共設有4間臥室,南面的臥室均帶有獨立衛生間,十分方便。起居室可以擺放沙發電視,空間充足。
三層平面圖 三 層: 露臺、臥室(附衛生間)、樓梯、衛生間、臥室、臥室(附衛生間) 三樓共設有3間臥室,其中兩間帶有獨立衛生間,屋外有大露臺,方便農家晾曬。 圖紙之家-專注農村別墅/自建房設計18年,集合國內200余位經驗豐富的設計師,被評為口碑最好的農村建筑設計公司! |

豪華農村帶露臺三層樓房別墅設計圖紙,占地200平方米左右
占地:200平方米
農村四層樓房設計圖,含外觀圖片,自建四層房屋推薦
占地:140平方米
2026新款農村三層雙拼自建房設計圖,占地150平米左右
占地:150平方米
新農村一層平屋頂簡單自建房別墅設計圖紙,全套設計
占地:130平方米
面寬8米兩開間四層歐式風別墅,布局實用,小占地大精彩!
占地:100.86平方米
160平方米二層平屋頂房屋設計圖紙及效果圖17x11米
占地:164平方米
3款簡單舒適二層別墅設計圖,低調配色,造型簡單大氣
占地:多戶型可選
農村20萬元二層小樓圖片及全套圖紙,外型美造價低
占地:多種戶型
300平大戶型豪華三層別墅設計圖,帶總統套房
占地:300平方米
簡單大方四間二層小樓房設計圖,帶車庫,帶大露臺
占地:180平方米
簡約現代的二層別墅自建房設計圖,13米乘9米
占地:124平方米
五開間一層農村平房設計圖,200平米大戶型,五間臥房足夠用了
占地:200.7平方米
人字坡房屋一層別墅設計圖,簡約低調超實用,、
占地:101.17平方米
鄉下三層大氣房子設計圖,外觀挺高大上的,主體29萬多
占地:132.48平方米
四開間一層自建房設計圖,四臥二廳+棋牌室+書房
占地:181.29平方米
三層平屋頂別墅房屋設計圖及外觀效果圖
占地:150平方米
150平米一層農村別墅設計圖,養老自住都很不錯,關鍵是造價也很
占地:156平方米
堂屋共用五間雙拼別墅設計圖,適合二兄弟的二層別墅
占地:292.5平方米左右
造價30萬左右的三層樓房設計圖,占地120平米左右
占地:120平方米
新中式農村三層樓房設計圖紙,全套圖紙設計,線條錯落有致
占地:130平方米
推薦:10套新農村自建房設計圖,2026年最新設計
閱讀次數:4825737次
100套鄉村別墅圖片大全,2026年最新設計
閱讀次數:2492203次
6款農村蓋一層平房的設計圖,10萬元就能建起來
閱讀次數:1852637次
這11個一層農村自建房別墅火爆了朋友圈!我最喜歡戶型十!你呢
閱讀次數:750268次
農村6萬元建一層小別墅圖,你敢相信嗎
閱讀次數:567686次
農村5萬塊就能自建房,6套普通房子設計圖分享,你沒看錯!
閱讀次數:419410次
8套農村漂亮三間平房圖片,非常適合在農村修建!
閱讀次數:411197次
農村自建房化糞池怎么做?附方案及施工過程
閱讀次數:391783次
農村一層三間平房設計圖,告別土氣養老房,讓人忍不住點贊
閱讀次數:350581次
新農村二層樓房圖片造價12萬,挑一套回家建房吧!
閱讀次數:349126次
